空き家になっている、郊外や地方の広すぎる実家。相続した人にとっては、悩ましい問題です。テレワークが一般的になってきた今、処分するのではなく、リノベしてうまく住みこなすという方法も。実際に実家をリノベーションして、職住近接の快適な暮らしを実現した家族を編集部が取材しました。
すべての画像を見る(全20枚)両親や祖父母と暮らした家を受け継ぎ快適に暮らす住まいに
神奈川県川崎市内に建つHさんのお宅は、妻の実家だった家。約40年前に建てられた注文住宅で、延床面積約200㎡の木造2階建て。妻の家族と祖父母の7人が住む二世帯住宅でした。
「大家族だったので、あまり広いとは感じていなかったです」と妻。夫妻は、以前勤めていた会社を退職後に世界や日本を一周したほどの旅好き。旅で出合ったのは、建物を住み継いでいく文化や暮らし。
「あるものを生かして現代的に暮らす古民家の姿に魅せられました」(夫)
その後夫妻は起業し、賃貸住宅を自宅兼仕事場としましたが、子どもを授かり手狭に。両親のすすめで、当時空き家になっていた実家をリノベーションして住むことにしました。
「両親や祖父母と暮らした家を受け継ぎ、夫や子どもたちと快適に暮らせる住まいができたのが、なによりうれしい」と語る妻です。
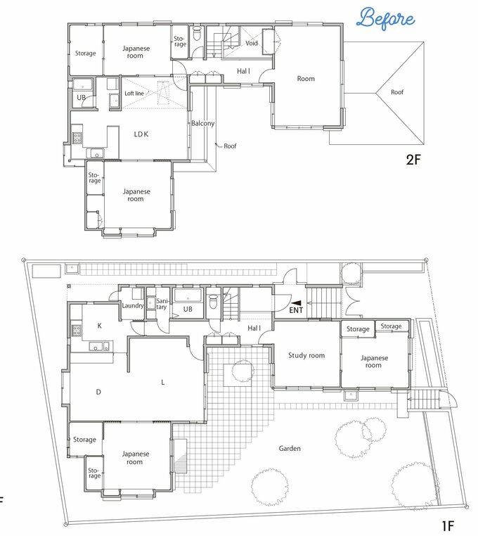
リノベーション前後の間取りと外観
リノベーション前
計7人で暮らした妻の実家。1階にLDKや水回り、ピアノ教室を開いていた母のレッスン室、2階に個室と祖父母の部屋がありました。「1階は細かく仕切られていて、動線もあまりよくありませんでした」(妻)
リノベーション前の外観。凹凸が多かった既存に、スクエアなルーフバルコニーを加えることで外観が大変身することに。
リノベーション後
現在はHさん家族が4人で生活中。2階で暮らしを完結できるようにし、1階に仕事場を設けて公私を分けました。1階の西側ゾーンはゲストルーム兼大勢の集まりや、家族構成の変化にも対応できる空間に。
1枚のラフチケッチが運命を変えた
当初の打ち合わせでは、1階に家族が集うLDK 空間と仕事場、2階に子ども部屋や寝室を充てたプランをリノベーション会社から提案されました。その間取りは、夫妻からのざっくりした要望に沿ったものだったそうです。
「説明を聞きながら、リビングダイニングが1階なのはやはり寒いかも、と少し不安を感じていました。仕事場を設けるとしても、4人が暮らす家としては広すぎる。思わず『こんなに広くなくてもいいかも…』とつぶやいたら、プランナーさんがサッと『こんなのもできます』と出してくれたのが、本当は「捨て案」で見せないつもりだった、というラフスケッチでした」
パッと見て、「これだ!」と夫は感じたそう。捨てずにすんだラフスケッチに描かれていたのは、2階をすべて家族の居住スペースにするプランでした。
ワンフロアで完結しているので家事ラクで、子どもたちにも目が届きやすいレイアウト。
1階は、かつて妻の母がピアノを教えていたレッスン室を仕事場に。キッチンやリビングダイニングがあった空間は、水回りの位置を少し変更し、客室兼大勢で集まれるスペースとする内容でした。
「2階は階段の位置を変えて、センターにキッチン、いちばん日当たりのいい場所をリビングダイニングに。最初は、リノベでどこまでできるのかわからなかったのですが、こんなにガラッと変えられるんだ、と驚きでした」(妻)。
プレイルームとして使っている子ども部屋は、以前は祖父母のLDKだったスペース。将来は2室に分ける予定。キッチンと直角に交わり、お互いに様子がうかがえるベストな位置関係です。
廊下の壁に、既存の防音仕様の窓を移設し明かり取りに。
カウンターが広くて使いやすい洗面台。その隣に洗濯コーナー、浴室と連続し、身支度も家事も効率よくできるようになりました。









