ほとんどの住宅で、最小限のスペースしか与えられていないのが脱衣室。しかし、洗濯機を置いてランドリーとなったり、洗面台を置いて洗面室として使ったりと、多目的に使われる部屋でもあります。今回、2024年8月に建てた新居で、わずか2畳の脱衣室にランドリー機能を盛り込んだライターが、浴室選びのポイントとともに、その体験談を語ります。
すべての画像を見る(全5枚)家電と壁のわずかな隙間を収納スペースに
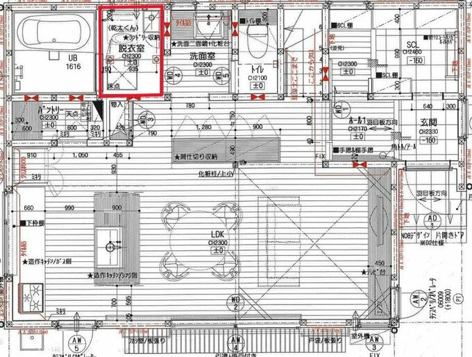
わが家は延べ床面積29坪の2階建て。1階にはLDK、パントリー、洗面所、脱衣室・浴室、トイレ。そして、2階に主寝室、個室(2部屋)、ファミリークローゼット、書斎がある間取りです。この家で妻と1歳になる息子の3人で暮らしています。
さて、問題の脱衣室の広さはわずか2畳。明らかに狭いのですが、洗濯機とガス乾燥機、収納、部屋干し用のバーといった機能を盛り込みました。
ポイントは家電と壁のわずかな隙間に造作の収納家具を仕込んだこと。これによって、十分な収納量を確保できたので、洗剤やタオル、洗ったあとの下着類などをすっきりとしまえるようになりました。
掃除しやすくするために床と家具にひと工夫
脱衣室を計画するときに、収納とともに気をつけたのが掃除のしやすさです。わが家ではリビングなどの居室には基本的に無垢の木材を床にはっていますが、脱衣室については、抗菌・防汚性があるビニル床シートを採用しています。
このシートはサイザル麻という素材を模したもので、ある程度であれば水も弾いてくれます。普段は浴室前に足ふきマットを置いていますが、そこから水が飛んでしまってもさっとふけば、しみ込むことも水の跡がつくこともなく、問題なし。
また、洗濯機の買い替えのときに大変なのが排水管との接続です。狭い脱衣室でこれを簡単にするために、造作家具に工夫を施しました。造作収納の最下段に空間をつくり、そこで排水ホースを接続できるようにしているのです。棚板をあけるだけで排水管にアクセスできるので、排水の詰まりの掃除などのメンテナンスも簡単です。
収納とともに掃除しやすい内装、配管を考慮すると、脱衣室はすっきりと使いやすいスペースになります。ぜひ参考にしてみてください。


