ストック食品を保管する場所として人気のパントリーを、さらに便利な場所にするアイデアを紹介します。3年前にハウスメーカーで家を建てた日刊住まいライターは、キッチン横に1.5畳のパントリーをプラン。入り口には掃除もしやすいつり引き戸を設置し、すっきり隠せる収納を実現しました。サブ調理家電を置く可動棚にはコンセントもしっかり計画。また、LDKで悪目立ちするモニターやリモコン類もこの場所に。まさに至れり尽くせりのパントリーです。
すべての画像を見る(全9枚)休日にまとめ買い。新しい家ではパントリーが欲しい!
筆者は、妻と2匹のネコと暮らし共働き世帯です。3年前にハウスメーカーで注文住宅を建てました。延床面積27坪の総2階でコンパクトな家です。
わが家は、夫婦でシフト勤務の仕事のため、買い物時間があまりなく、休日にまとめ買いをしています。
以前、賃貸住まいをしていたときは、収納がたりずキッチンにワイヤーラックを置いていました。ワイヤーラックは、調理家電やまとめ買いをしたストック食品の置き場所に。便利でよかったのですが、買ったものを次々と置いてしまうと、統一感がなく乱雑に見えていました。
統一感を出すために、カゴや箱を使った収納にチャレンジしたことも。しかし、購入品によってカゴからはみ出してしまうなど、見せる収納の難しさを実感。その経験から、家を建てるときには、すっきり隠すことのできるパントリーをつくろうと決めていました。
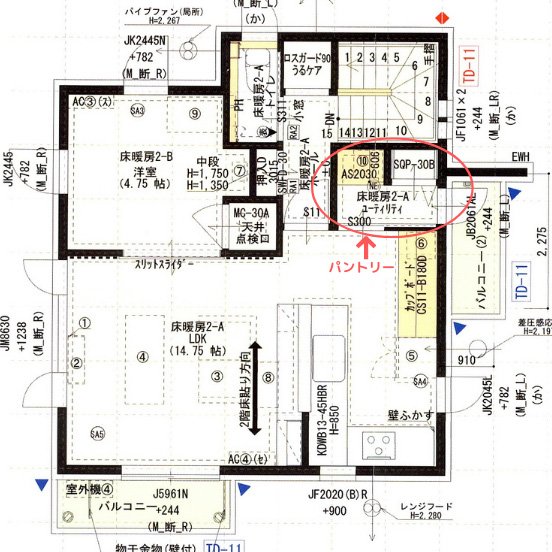
生活感を隠せる1.5畳のパントリー
わが家は2階リビングのプランを採用しました。LDKは14.75畳です。このLDKの入り口に近い、キッチン横に1.5畳のパントリーをつくりました。
パントリーは1.5畳ですが、人が出入りするには十分な広さです。入り口につり引き戸を設けたので、引き戸を閉めれば見えなくなる「隠せる収納」に。
忙しくて整理整頓できないときでも、引き戸を閉めさえすれば気にならなくなり、キッチンやリビングからの視界もすっきり! 急な来客時でも安心です。なにかとあわただしい日々において、収納のハードルを下げておいたのは、生活がとてもラクになりよかったと思っています。
わが家には2匹のネコがいるため、引き戸があることでイタズラ防止にもなっています。上つり引き戸は、床にレールがないので掃除がしやすい点もよかったです。



