二世帯住宅だった築25年の実家のワンフロアをリノベーションした事例です。住んでいるのは30代の夫婦と子ども2人の4人家族。寒くて色づかいも暗かった2階に、ロフトとつくることで明るさと開放感が生まれました。子どもの様子が見守れるキッチン、階段や水回りへの近道も兼ねるパントリー、ウォークインクローゼットも。家事ラクで子育てしやすい間取りです。
すべての画像を見る(全18枚)二世帯住宅だった実家の2階を、家事も子育てもしやすい間取りに
●この家のプロフィール
- Mさんの家 千葉県
・家族構成:夫35歳 妻32歳 長女7歳 長男3歳
・築年数:25年(1997年築)
・リノベーション面積:約100㎡
・工事費:1500万円(税・設計料込み)
・設計・施工:SHUKEN Re
Mさん一家の住まいは、2階建て住宅の2階部分。もともと妻の祖父母が1階、妻と妹、両親が2階で暮らしていた二世帯住宅で、現在は1階に両親が住んでいます。
夫妻は長女の誕生後、借りていたアパートが狭くなり、土地を入手して家を建てることを考えたそうですが、予算的に難しく断念。そうこうするうちに祖父母が介護施設に入ることになり、2階に住んではどうかという両親の提案を喜んで受け入れ、リノベーションすることになりました。
設計担当者には、キッチンから見渡しやすく広いリビングダイニングをはじめ、パントリーやウォークインクーロゼット、洗濯が効率よくこなせる空間、さらに家のどこかにスキップフロアの仕様を取り入れたいと伝えました。
以前は奥まった位置にあったキッチンは、向きを変えてリビングダイニングやワークスペースが見渡せるオープンスタイルに変更。新設したパントリーからは、階段や水回りに近道できて便利です。
パントリーの窓からは階段室や両親と共有する玄関が見えるため、家族の出入りが一目瞭然で安心!
天井板の撤去で、視線が上に伸びてより広く感じられるリビング。バルコニーに面した窓にインナーサッシを設置し、断熱性能を向上しました。
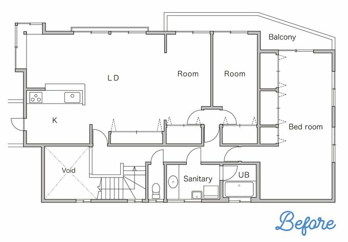
間取り(リノベーション前後)
リノベーション前
リノベーション後
キッチンの向きを変えてリビングダイニングやその奥まで視線が届くレイアウトに。主寝室はダイニングの背面に設置し、既存の東側にあった大きな寝室は、子ども部屋とウォークインクローゼットに変更。
スキップフロアにして、階段を上がってパントリー経由でキッチンに回れる回遊動線も実現しました。






