寝室は天井高を抑えつつ2面の横長の窓が、広がりを演出
すべての画像を見る(全26枚)黒い鉄の玄関扉を開けると、明るさを抑えた細長いホールが。右手の壁面には長い収納カウンターが設置され、間接照明が落ち着いた雰囲気を演出しています。ホールをあえて暗くすることで、その先に待ち受けるLDKの開放感を際立たせています。
LDKの一角に設けられたサンルーム。この家のインテリアにもなっている植物の保管場所として設けられています。
北と東の2面に窓を設けた2階の寝室。リビングに比べると天井高は2.3mと抑えめですが、横長の窓からのワイドな眺めが開放感をもたらしています。
階段上部からの眺め。左手の階段の壁には、ダークグレーのグラデーション模様のクロスを採用。
LDKの床がタイルなのに対し、プライベートな空間が配された2階の床にはフローリングを採用。
周囲の街並みに配慮し、黒やダークグレーの塗り壁、コンクリート打ち放し壁など、控えめな素材で構成した北側外観。
駐車場の屋根を支える4本の柱は、個性的な石貼りに。柱の内部はすべて物入に利用しています 。
駐車場からの眺め。遠くまで見渡すことができ、高台に住むことの開放感を体感できます。
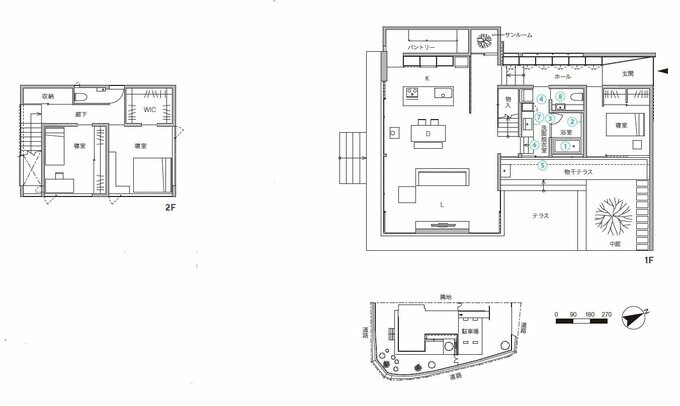
間取り図
Data
敷地面積/554.64㎡(168.07坪)
延床面積/209.76㎡(63.56坪)
1 階/165.13㎡(50.04坪)
2 階/44.63㎡(13.52坪)
用途地域/第2種中高層住居専用地域
建ぺい率/60%
容積率/200%
構造/鉄骨造
竣工/2019年9月
素材
[外部仕上げ]
屋根/塩ビシート防水
外壁/防火サイディング+塗装、磁器タイル、石貼り
[内部仕上げ]
1階 床/磁器タイル、チーク
壁/クロス、ポリ合板、磁器タイル
天井/クロス
2階 床/チーク
壁/クロス、ポリ合板
天井/クロス
設備
厨房機器/キッチンマインド
窓・サッシ/ LIXIL、オリジナル
施工/大宗建設
設計/山下和哉(建築デザイン研究所)
※情報は「住まいの設計2021年12月号」取材時のものです








