周囲を家に囲まれた、宮城県の旗竿地に建つSさんの家。一見窓のない閉鎖的な印象ですが、光と熱を上手にコントロールし、のびやかな空間と一年じゅう快適な室内環境を両立しています。「以前マンションで暮らしていたときより家族そろって過ごす時間が増えました」とSさん夫妻。中央に見えるのは衣類をすべて収納するクロゼット。「出入り口が両端にあって通り抜けられるので、家事が効率的になりました」と妻も喜ぶ間取りです。街なかでもゆったり感じられる、S邸の様子を紹介していきます。
すべての画像を見る(全26枚)断熱と採光を工夫して、街なかでも省エネを実現
Sさんの家 宮城県 家族構成/夫40歳 妻33歳 長女5歳 次女3歳
設計/都市建築設計集団/UAPP
Sさんの家のこだわりポイント
- 開口部を減らしても明るい空間に
- 夏涼しく、冬暖かい住まい
- 一直線に並んだ家事動線
- 広くて使いやすい玄関土間
ダイニングテーブルの上にともった照明はジャン・プルーヴェの名作、ポテンス。アームに電球を取りつけた簡素な形。「シンプルだけど存在感があるところが気に入っています」とSさん。
穏やかな光と熱環境でのびやかな暮らしを実現
Sさんの住まいはトップライトからの光と熱を上手にコントロールし、夏涼しく、冬暖かい快適な住環境を実現した環境共生住宅です。
「妻が寒がりなので、冬暖かい家が理想でした。この家は、冬はトップライトからの熱をダクトで床下に送っているため、足元から冷える感じがありません。逆に夏は、トップライトの開口部を開けて熱気を逃がし、天井の裏に塗られた特殊な塗料で赤外線を吸収するため、暑くなりません。年間を通して心地よいことが、この家の自慢ですね」(夫)
白を基調にしたトップライトからの間接光に照らされた空間には、ハンス・J・ウェグナーのデイベッドやジャン・プルーヴェのチェアなど、そうそうたる銘品がレイアウトされています。
「独身時代から家具や建築が大好きで、建てる予定もないのに建築家の催すオープンハウスにも足繁く通ってました。ある程度の広さがないと、家具も生きないので、ゆったりしたLDKが実現できてとてもうれしい」(夫)
一方、建築には興味がない妻は、家づくりのほとんどを夫に任せていたのだそう。それでも使い勝手は抜群のようです。絶賛する様子が印象的でした。
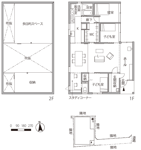
「キッチンを中心に、南側に家族のスタディスペース、北には洗濯機のある洗面室があって、物干しまで併設されています。衣服は通り抜けできるクローゼットにすべて収納できるし、効率的な家事動線でとても使いやすい」(妻)
トップライトがどこにいても明るく心地よい温度を実現
トップライトからの光が白い壁面を照らすギャラリーのようなLD。ソファとダイニングテーブルだけで構成されたシンプルな空間にはSさんの美意識が反映されています。
住まいを満たすのは、熱を除去した光だけ
周囲を住宅に囲まれたSさんの家は壁に開口部を設けても眺望は望めず、プライバシーも保てません。そこで常に光を取り込めるトップライトを採用し、明るい室内空間を実現。
切妻屋根のトップに四角い窓を並べ家全体の採光装置としています。南端の窓は開閉でき、夏の熱気を逃がします。
東側の天井がトップライトを覆うようにせり出しています。この部分に赤外線などの熱線を吸収する塗料が塗られていて、光から熱を除去しています。
取り込んだ熱は夏は放出。冬はダクトで床下へ
玄関収納の床下に温熱環境を測定するデータロガーが設置されていています。設計者の手島さんと東北大学准教授の小林光さんが、環境共生住宅をテーマにSさんの住まいで実証実験を進行中。
冬季は天井付近の暖気が基礎断熱された床下へダクトで送られ、各居室の床にあるスリットから吹き出す仕組み。「この装置のおかげで、冬はどの部屋も同じくらいの温度に保たれています」(夫)。
天井付近の暖気は銀色のダクトで床下まで送られます。
火を楽しむなら環境負荷も低いペレットストーブがオススメです
「ベビーカーを家に入れるのに、この広さがとても助かっています」と妻も絶賛の玄関土間。
「本当は薪ストーブに憧れたのですが、住宅密集地で煙の問題があるのと、燃料の薪を手配するのが大変そうで。その点ペレットストーブだと煙は点火のときに少し出るだけ。それにペレットを燃料にすることで間伐材利活用に役立つし、入手も楽です」(夫)。
構造には県産材の杉を活用
構造材には宮城県産出の杉材を用いています。Sさんの家は県産材の使用率が高いため、補助金の交付を受けているそう。サスティナブルな建築を考えるうえでも、県産材利用はポイントに。
建物の南北に配置された個室を内包する2つの箱
「周囲を住宅に囲まれた旗竿地なので、プライバシーを保ちながら光を取り込む手段を設計者の手島浩之さんと考え、行き着いたのがトップライトでした」とSさん。見上げると、天井には南北に四角いトップライトが連続して、光が差し込んでいるのがわかります。
特徴的なのは、湾曲した東側の天井がトップライトを覆うようにせり出しているので、空間を照らす光は反射光になっているということ。
「反射板は熱線吸収塗装されていて赤外線と熱が吸収されるせいか、少し青白い光なのも気に入っています。時間の移り変わりとともに光の表情が変わるのも楽しい」(Sさん)
もとから建築好きで、オリジナリティの高い住空間を求めていただけに、住み心地に加えてデザイン面でもこの家が気に入っている様子がうかがえます。
住まいを特徴づけるポイントとして空間の取り方も挙げられます。切妻屋根の家の中心にLDがあり、その南北に四角い箱を配置。南側の箱には子ども部屋とトイレ、北側の箱には浴室、寝室、クロゼット、子ども部屋が入っています。個室は天井高2.1mとやや圧迫感を感じますが、これにも理由が。
「将来、子どもたちが自室に閉じこもらないように、必要最小限の空間にしました。ダイニングの隣はオープンなスタディルームとして使えるようにつくったので、勉強もここでしてもらいたいですね」(夫)
また、個室の上は平らな床だけの空間です。「今は単に物置ですが、家族構成の変化で部屋に替えるというのもありかもしれませんね」とSさん。可変性も兼ね備えた住まいになっているのでした。
共働きの夫婦だから、家事動線は一直線で効率的に
「共働きで妻の負担を少なくするために、家事動線の効率化はこだわりました」と夫が言うように、ダイニングから洗面・洗濯室まで一直線の動線が伸びています。
玄関土間とはちょうど対をなすような配置になっていて、帰宅した家族はLDを通ることもポイント。「この家で暮らし始めてから家族で過ごす時間が増えました」(Sさん)。
必要最小限の個室が家族の時間を豊かにします
「トップライトから入る光は、朝は洗面室やキッチンを中心に照らし出し、南中すると家全体が明るくなるというふうに、時間によって明るさの中心やその表情が変わります。窓が少ない分、光の変化で時間の経過を感じるようになりました」(夫)。
ダイニングの南側に位置する家族共用のスタディスペース。「2人の娘が入学したら、ここで勉強してくれるようになるといいですね」(夫)。本棚の収納量も十分にありそう。
シンプルなシルバーのキッチンはIKEAの製品。「夫が見つけたものですが、大型の食洗機が便利で私も気に入っています」と妻。
キッチンの北側にある洗面・洗濯室。洗濯機の上には物干し用のバーがあり、雨の日でも洗濯物を干せます。
ほかの空間と同様に白一色に統一された、明るく開放感ある浴室。
子ども部屋や寝室など、個室は天井高が抑えられ、ラワンベニヤ仕上げで、LDとは違った趣になっています。「必要最小限の面積と仕上げにすることで、部屋に閉じこもらないようにしています」(夫)。
南北に分かれた個室を内含する箱の上は、今のところ手つかずです。「ここの使い道は未知数。可変性のある空間です」(夫)。
幼い子ども2人がはしごを使って箱の上で遊ぶのはもう少し先の話になりそう。それまではオープン収納として活用できそうです。
副都心と呼ばれる住宅地の旗竿型の敷地に建つSさんの家。
現況では西側の隣地が畑に使われていて開けていますが、ここにもやがて住宅が建つはずです。それを見越して壁面の開口部はご覧のとおり最小限。光はトップライトから取り入れます。
キッチンの背後にあるクローゼットは、リビングと寝室側に出入り口があって、家事動線とつながり回遊できるようにプランニングされています。
間取図
DATA
敷地面積/184.59㎡(55.94坪)
延床面積/136.21㎡(41.28坪)
1階/93.83㎡(28.43坪)
2階/42.38㎡(12.84坪)
用途地域/第2種住居地域
建ぺい率/60%
容積率/200%
構造/木造軸組工法
竣工/2019年12月
素材
[外部仕上げ]
屋根/ガルバリウム鋼板縦ハゼ葺き
外壁/ガルバリウム鋼板、一部フレキシブルボード
ウレタン塗装仕上げ
[内部仕上げ]
1階 床/複合フローリング、塩ビシート
壁・天井/蓄熱塗り壁、ラワンベニヤ
2階 床/ラワンベニヤ
設備
厨房機器:IKEA
衛生機器:TOTO
窓・サッシ:ATOM
施工/気仙沼工務店
設計/手島浩之(都市建築設計集団/UAPP)
設計協力/小林 光(東北大学大学院工学研究科 都市建築学専攻 サステナブル環境構成学分野 准教授)
撮影/中村風詩人 ※情報は「住まいの設計2021年10月号」取材時のものです

























