あこがれの切妻屋根の家を、温もりのある2階リビングにリノベーション。そんな住宅実例を紹介します。「切妻屋根で四角い形状」の中古の戸建てを探していたというYさん夫妻。5~6軒内見したところで、ついに理想の物件に巡り合います。築23年の建物には、リビングを2階へ移設するなど、大幅に手が加えられました。そして、Yさん家族のための家としてガラリと生まれ変わったのです。上の写真は、ダイニングの様子。南東からの光で、朝食時も気持ちよく過ごせます。キッチンからの配膳もラクラク。右側の掃き出し窓はデッキバルコニーにつながります。
すべての画像を見る(全17枚)目次:
LDKを1階から2階へ。既存の天井を表しにして、木の温もりを自然素材を使ったナチュラルな2階リビングに2人で作業をしやすい、ストレスゼロのキッチンにお気に入りのものに囲まれる楽しい暮らし間取図(リノベ前後)LDKを1階から2階へ。既存の天井を表しにして、木の温もりを
Yさんの家 神奈川県 家族構成/夫40代 妻30代 長女5歳
設計・施工/スタイル工房
工事費 1600万円(税・設計料込)
《この家のこだわりポイント》
- 希望していた切妻屋根の家をリノベ
- こだわり抜いた玄関ドアなどの建材・設備
- キッチンをすっきり保てるパントリー
- コストも削減!DIYで棚づくりに挑戦
角地に建つ切妻屋根の家。外観は全面塗り直して一新。左官壁は住宅番組で見た家の外壁の色が気に入り、近い色を探したそう。
玄関ドアは天然木にしたかったけれど、防火戸にする必要があったため、木の風合いが感じられる既製のドアを探しました。周囲の壁・天井をドアと同色でそろえたのも夫妻のこだわりです。
2階は2部屋の壁を取り払って、開放的なLDKに。「床は杉の足場板と迷いましたが、子どもがケガをしないよう無垢のオークを選びました」。
自然素材を使ったナチュラルな2階リビングに
屋根勾配を生かしたのびやかさに木の温もりが相まって、どこかホッとするY邸のリビング。「LDKはスペースをより広く取れる2階に移設しました。内装は自然素材を使ったナチュラルなテイストに。それは妻も同じ思いでした」(夫)。
既存の木の天井をそのまま表しにして、床はオークの無垢材を採用。2室に仕切っていた壁を取り払ってオープンにすることで、視線も抜ける広がりと明るさを得ました。
そんな夫妻がパートナーに選んだのは、一戸建てリノベも数多く手掛けるスタイル工房。物件探しから相談し、理想の「切妻屋根で四角い家」を手に入れることができました。正方形の間取りは家族の暮らしを思い描きやすく、夫が間取り図を描き提案したとか。その中には、妻の要望である「2人で立てる広いキッチン」も含まれていました。
素材や設備、インテリアにもこだわった夫妻は、毎週ショールームに通ったといいます。
「納得するものが見つかるまで探しました。玄関ドアは3社ほど回りましたね」(妻)
そんな家づくりの姿勢が功を奏してか、「家は3軒建てて満足できるとよく聞きますが、慎重に取り組んだだけあって、1軒目で十分満足できるものとなりました」と夫妻は語ります。
そして現在、じっくり選んだソファは5か月後に納品される予定。妥協のないもの選びが、暮らしにより充足感を与えてくれるようです。
2人で作業をしやすい、ストレスゼロのキッチンに
たっぷりスペースを取ったキッチンには、右手にパントリーも設置。コンロ周りは色合いが絶妙なLIXILのタイルを貼り、古材で造作したカウンターテーブルを置いてカフェのような雰囲気にも。
リビングダイニングの全景。吹き抜けの上部はロフトになっており、収納スペースとして活用しています。
腰ほどの高さのカウンターテーブルは配膳をしたり、花を飾ったり、空間を仕切ったりと便利に活用。
「食品をたっぷりストックできるパントリーが欲しかった」と妻。パントリー内の可動式の棚は夫のお手製です。食べることも飲むことも好きという夫妻。カウンターに立ってお酒を飲むこともあるのだとか。カウンターはギャラップ。
ペンダント照明は羽生直記さん作。
料理が得意な夫と一緒に立てるキッチンを要望。「以前のキッチンは狭かったので移動したときにぶつかることがよくありました。今はストレスなく作業ができています」(妻)。キッチンはサンワカンパニーのフレームキッチンに決めていたそう。
お気に入りのものに囲まれる楽しい暮らし
「洗面室には大きな鏡を張りたかった」と妻。鏡はスクエアファニチャーのもので、この鏡に合わせて洗面台がデザインされました。洗面ボウルの正面にはタイルを貼ることが多いのですが、シンプルにしたかった夫妻は木を張ってもらいました。
土間玄関は趣味のバイクも置けるよう広々と。夫作の棚には収集したスニーカーを飾るように収納。
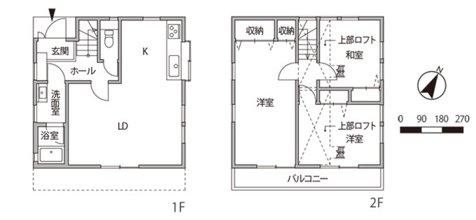
間取図(リノベ前後)
リノベーション前
リノベーション後
リノベーション前の様子。キッチンの手前にリビングダイニングが続いていましたが、より広い空間を求めて2階に移設。
2階は3部屋に仕切られた間取り。ロフトはそのまま生かしました。
DATA
延床面積/79.31m2(24.03坪)
1階/38.83m2(11.77坪)
2階/40.48m2(12.27坪)
用途地域/第1種中高層住居専用地域
建ぺい率/60%
容積率/200%
構造/木造軸組工法
リノベーション竣工/2020年4月
工事費/1600万円
素材
[外部仕上げ]
屋根/塗装
外壁/ジョリパッド左官仕上げ
[内部仕上げ]
1階 床/土間コンクリート、ホワイトオーク、フロアタイル
壁/塗装、クロス
天井/クロス、塗装
2階 床/ホワイトオーク、クッションフロア
壁/塗装、タイル、クロス
天井/クロス、塗装
設備
厨房機器:サンワカンパニー
衛生機器:TOTO
窓・サッシ:YKK AP
設計・施工/スタイル工房
撮影/大槻 茂 ※情報は「住まいの設計2021年6月号」取材時のものです
















