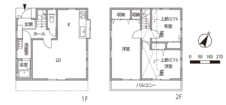
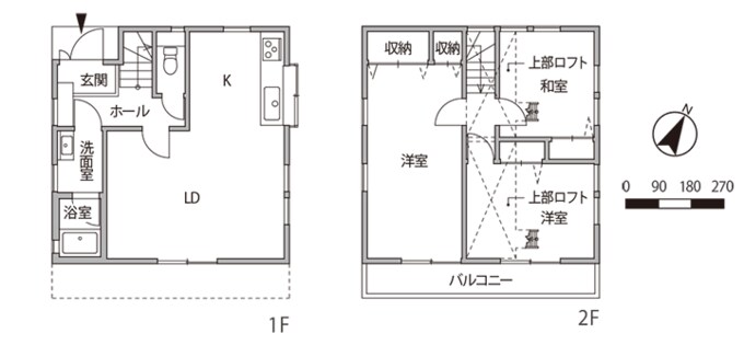
工事費1600万円、戸建てリノベ実例:四方から光が注ぐ、ナチュラルな空間に癒やされています 記事に戻る スクロールで次の画像 (画像 1/17) この記事を読む (画像 2/17) この記事を読む (画像 3/17) この記事を読む (画像 4/17) この記事を読む (画像 5/17) この記事を読む (画像 6/17) この記事を読む (画像 7/17) この記事を読む (画像 8/17) この記事を読む (画像 9/17) この記事を読む (画像 10/17) この記事を読む (画像 11/17) この記事を読む (画像 12/17) この記事を読む (画像 13/17) この記事を読む (画像 14/17) この記事を読む (画像 15/17) この記事を読む (画像 16/17) この記事を読む (画像 17/17) この記事を読む
NEW <プレゼント>Laka「Washful Tint Remover(ウォッシュフル ティント リムーバー)またはデビルリップ #801 モルモル」が抽選で当たる。アンケートに答えよう(所要時間2分)