細かく仕切られた平成2年築の中古一戸建てを購入し、廊下のない開放的な空間にリノベーション。リビングダイニングの天井部分を1畳ほど吹き抜けにしたことで、上下階のつながりが生まれ、1階には光も風も届くようになりました。戸建てならではの高さを生かした空間に自然素材をたっぷりプラスした、心地よく快適な住まいです。
すべての画像を見る(全16枚)目次:
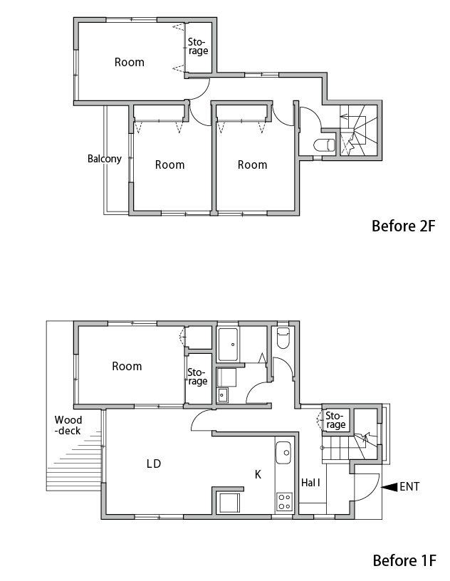
リビングダイニングの天井部分に設けた吹き抜けが、光と風をもたらす既存のキッチンを生かし面材を木に。大工工事でカウンターもプラス2階プライベートスペースには妻の仕事部屋兼長男の遊び場も玄関とサニタリーにも素材感をたっぷりと移設したオリーブの木をシンボルツリーに間取り(リノベーション前後)リビングダイニングの天井部分に設けた吹き抜けが、光と風をもたらす
設計を依頼した建築家・田邉雄之さんからの提案で、リビングダイニングの天井部分に吹き抜けが誕生。高めのフェンスを付けて、安全性にもしっかり配慮がされています。
吹き抜けは1階に光や風をもたらすだけでなく、上下階のコミュニケーションが取りやすいというメリットも。
吹き抜けから自然光が降り注ぐLDKをはじめ、家じゅうのほとんどの床に長野産のカラ松を採用。田邉さんが長野の指物師の自宅を設計したことを機に、施主、田邉さん、建材メーカーの3社で開発した床材です。
また、「できるだけCO
2
を排出しない家、できるだけエアコンを使わずにすむ家にしたい」という夫の希望から、1階のみ室内側にガラスを追加してペアガラス仕様に変更。2階も屋根の断熱工事を十分に行い、窓に断熱ブラインドを採用しました。
【この住まいのデータ】
▼家族構成
夫42歳、妻40歳、長男7歳
▼リノベを選んだ理由
長男の小学校入学を見越して、同じ鎌倉市内で賃貸からの住み替えを検討。もともと古い家が好きで、自分たちの生活に合わせて変えられる中古物件のリノベーションに魅力を感じていたことから、中古物件を中心に探して購入した。知人でもあった建築家の田邉雄之さんに依頼してリノベーションをすることに。
▼住宅の面積やコスト
延床面積 91.93㎡
既存のキッチンを生かし面材を木に。大工工事でカウンターもプラス
新品だったという既存のキッチンはそのまま生かしつつ、向きを90°変えて、コミュニケーションを取りやすくしました。大工工事でカウンターを追加したほか、キッチンの面材を木にチェンジ。
さらに壁の1面は個性的なタイル貼りにしてイメージを一新。JR新橋駅構内のスターバックスコーヒーでも使われているそう。1枚ごとに表情の異なる濃い色のタイルが、空間の引き締め役になっています。
2階プライベートスペースには妻の仕事部屋兼長男の遊び場も
湿気が多いことから、壁は調湿効果のある漆喰を希望した伊藤さん夫妻。コスト調整のために夫がDIYで自ら塗装しました。
2階に上がると、2室をつなげて天井板もはずしたという大らかな空間が広がります。このスペースは、イラストレーターとして活躍する妻の仕事部屋兼長男の遊び場として活用。
大工工事によるカウンターは横幅があり、資料や画材を広げて仕事ができます。「窓から山が見えて、自然光がたっぷり入るのも気持ちがいいんです。締め切り前でも明るい気持ちになります」(妻)
その背面には新設したロフトへの階段があり、長男の格好の遊び場に。
「現しにした梁や壁のあった場所に残る柱&筋交いなど、木が多い空間が新鮮だったようで、息子の友達が『すげー!』と驚いていました」(妻)
また、ロフト下には既存の個室をそのまま生かした寝室があります。天井高も以前のまま。和室から洋室へリフォーム済みだったため、床材だけ張り替えを行いました。開放的な仕事部屋とは対照的に、こもれる感じが落ち着けます。
玄関とサニタリーにも素材感をたっぷりと
玄関にあった既存の下駄箱は撤去し、夫がラフデザインを描いてオーダーしたアイアン×古材の棚を設置。右手の壁のオブジェとペンダント照明は、友人でもある金属造形作家・渡辺遼さんの作品です。
水回りは1階にまとまっています。洗面所は広さが十分でないため、洗面台を必要最小限のサイズ・機能に抑えました。田邉さんの提案でモールテックス仕上げにし、白い壁×木の空間のアクセントに。
トイレは新品だった既存のものをそのまま使用。壁は夫がDIYで漆喰を塗る前の下地だけ塗り終えた状態です。「狭いのできつい体勢で作業することになってしまい、ここだけは本当に大変でした」と振り返ります。
移設したオリーブの木をシンボルツリーに
以前の住まいから移したオリーブの木が迎えてくれるアプローチ。閉塞感があった既存のブロック塀をなくし、木製の杭を並べて開放的なエクステリアに変更しました。田邉さんは最初に相談を受けて内見した際、面白そうな物件だなと思ったそう。
断熱工事をしっかり施し、自然素材をたっぷり使った伊藤邸は、見違えるほど快適な空間に生まれ変わりました。冬でも長男は裸足で過ごしているとのこと。そして、伊藤家のリノベーションはまだ途中。DIYで壁と天井の漆喰塗りをする夫の挑戦は続きます。
間取り(リノベーション前後)
リノベーション前
リノベーション後
設計/田邉雄之建築設計事務所
1975年神奈川県鎌倉市生まれ。ロンドンの設計事務所などを経て2008年に独立。コストパフォーマンスに優れた平屋風の2階建て住宅「ペッタンコハウス」が好評のほか、父島で賃貸物件のプロジェクトも進行中。住宅のほか「鎌倉笹目座」などの商業施設も手掛ける
※情報は「リライフプラスvol.36」取材時のものです 撮影/飯貝拓司















