玄関に土間収納をつくると、すっきり暮らせます。アウトドア好きなライターは、自宅に趣味の道具や子育てアイテムが効率的に収納できる、3畳のシューズクロークをプラン。見せる収納とウォークスルーの裏動線を設け、日々の準備や片づけがスムーズになりました。
すべての画像を見る(全6枚)玄関脇に3畳のシューズクロークをプラン
筆者は、2024年8月に工務店で、2階建ての注文住宅を建てました。この家で妻と1歳になる息子の3人で暮らしています。
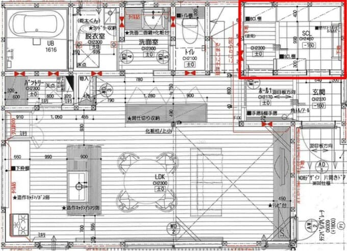
家全体の面積が、30坪に満たないコンパクトなわが家。それでも玄関ホールとシューズクロークは合わせて約5畳と、比較的広いスペースを確保しました。
そのうちシューズクロークで約3畳(間取り図の赤枠部分)の広さを確保。理由は、筆者の趣味である、アウトドアの道具を収納するためです。結果、キャンプや登山、沢登りなどの道具を、効率よく収納する場所ができました。
焚き火にいぶされたギアや、泥だらけの道具を家に持ち込まずに収納し、必要なときに素早く取り出せるこの空間は、アウトドアの趣味を支える「ベースキャンプ」として大活躍しています。

