洗濯物をカラッと干したいために2階にバルコニーを設け、その隣の部屋に大きなクローゼットがある家を建てたものの…。住み始めると誤算の連続。生活動線が悪くて、衣類がまったく片づかない! そんな体験をしているライターが、後悔していることを語ります。「洗濯する」「干す」「しまう」の3つの場所をどこにするかで、家事の負担が大きく変わる!
すべての画像を見る(全10枚)わが家は1階に水回り、2階に物干しスペースがある間取り
筆者は夫とふたり暮らし。4年ほど前に地元工務店で、延床面積35坪の2階建ての注文住宅を建てました。
上は1階の間取り図です。LDKと小上がりの和室、そして、洗面脱衣所と浴室もこのフロアにつくりました。ちなみに洗濯機は、こちらの洗面脱衣所にあります。
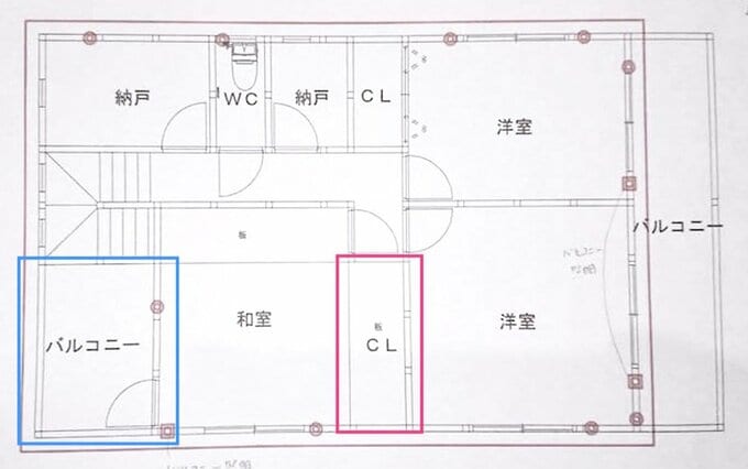
そしてこちらが、2階の間取りです。
2階には、洗濯物を干すためのインナーバルコニー(青枠の部分)と、隣の部屋に大きなオープンクローゼット(赤枠の部分)があります。
この間取りにした理由は、わが家が外干し派だからです。風通しがよく、日がよく当たる場所で、洗濯物を干したいと思い、2階にインナーバルコニーをつくりました。


