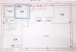
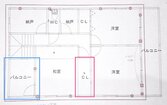
家づくり失敗談:洗濯&収納動線が悪すぎて衣類が永遠に片づかない間取り 記事に戻る スクロールで次の画像 (画像 1/10) この記事を読む 外から見えない場所に物干しができて満足していたのに…次々と誤算が! (画像 2/10) この記事を読む (画像 3/10) この記事を読む (画像 4/10) この記事を読む (画像 5/10) この記事を読む 引き渡し時のもの。プライバシー保護のため一部加工しています (画像 6/10) この記事を読む (画像 7/10) この記事を読む (画像 8/10) この記事を読む (画像 9/10) この記事を読む (画像 10/10) この記事を読む