味のある中古住宅を購入し、古家の素材を生かしながら、自分の好きな色に染めていく。リノベーションにはそんな魅力があります。今回紹介するのは、築50年の家をリノベーションしたケースです。デザインに関わる仕事の傍ら、工作機器での木工やキャンプを趣味とするNさん。内見した時点で「この建物はリノベでおもしろくよみがえりそうだ」と直感して建物を購入。新たな生活の拠点としました。写真上は、リノベ後の地下のアトリエ。1階のLDKは吹き抜けでつながります。1階の間仕切りにはオリジナルの内窓を採用。一部を開閉式にして、声が通りやすく家族の気配が感じられる仕掛けになっています。
すべての画像を見る(全20枚)目次:
新旧の素材をミクスチャーし、自分テイストにリノベーションプライベートを満喫できるアトリエ、庭、ルーフテラス新旧の素材をミクスチャーし、自分テイストにリノベーション新旧の素材を組み合わせて愛着が持てる空間に古家の記憶を残す眺めを大切に受け継ぎ住み継ぐ間取図(リノベ前後)新旧の素材をミクスチャーし、自分テイストにリノベーション
Nさんの家 東京都 家族構成/夫40代 妻40代 長女9歳
工事費 約2200万円
設計/須藤剛(Tsudou Design Studio/須藤剛建築設計事務所)
《この家のこだわりポイント》
- 公私の動線を分けた回遊プラン
- 趣味に没頭できるアトリエ空間
- 古家の素材を極力生かす
- 愛車の駐車スペースはしっかり確保
- 室内外をぐるぐる回る複数の出入り口
プライベートを満喫できるアトリエ、庭、ルーフテラス
かつて水害があった地域のため、既存は道路面からかさ上げされた地上2階の建物と地下車庫という構成。そこで2層の建物のずれたボリュームと2階のバルコニーはそのまま生かし、地下車庫は木工作業をするガレージにしました。
既存の庭は、なだらかな斜面の築山に変更。
(写真左)玄関へ続く既存の外階段を生かしながら、塗装をし直し、玄関ドアを新調することで新たな表情を演出。軒天も木張りにして、シンプルな印象に整えました。
(写真右)駐車スペース上のルーフテラスからの眺め。リビングに面したテラスは、のんびりできるくつろぎのスペースです。その横の階段はルーフテラスへ続き、室内外の一体感を楽しめるプランになっています。
既存の庭の一部に設けた駐車スペース。上部には雨よけの屋根を兼ねるルーフテラスを設置しています。
新旧の素材をミクスチャーし、自分テイストにリノベーション
「ヴィンテージ家具など、長く使われてきたものが好き」というNさん。住まいも既存の歴史を受け継ぎたいと考えて古家を購入、改修しました。
希望したのは、趣味の木工ができるアトリエと、愛車の駐車スペース、そしてアウトドア気分を味わえること。設計の依頼先である建築家の須藤剛さんは、地下にあった既存の車庫をアトリエガレージに変更。駐車スペースは庭の一部に新設し、上部にデッキの屋根を設けてLDKからつながるルーフテラスとして活用できるようにしました。
このルーフテラスはバーベキューなどを楽しむ場。30年来のキャンパーであるNさんの「家でもキャンプ感覚を楽しみたい」という希望をかなえた場所です。
1階は、既存の和室を取り払って広いLDKに。親子3人で料理をすることもあるため、キッチンはアイランドカウンターと壁付けのセパレートにして、調理や盛りつけなどをスムーズにこなせるようにしています。さらに、玄関からLDKへダイレクトにつながる動線と、水回りなどにアクセスする動線を設けて回遊できるようにしました。
またLDKの天井は既存のコンクリートを表しに、2階の壁と天井も既存の材を表しにして古家の記憶を受け継ぎつつ、オークのフローリングや高圧の木毛セメント板などの素材を新たに使い、新旧が呼応するインテリアにまとめました。
「時を経たものを受け継ぐことは、とても奥深いと思うのです」
N邸には、歴史を重ねた味わいを大切にしたいという深い思いが込められていました。
新旧の素材を組み合わせて愛着が持てる空間に
LDKの天井は既存のコンクリートを表しに。壁は高圧木毛セメント板を採用し、床はオーク材を用いて、古家の記憶と融合する空間に仕上げました。
キッチンは、アイランドカウンターと壁つけのセパレートタイプを採用。アイランドの天板はルールテラスと同じ高さに設定して、バーベキューなどの際に料理を手渡しやすいように配慮しました。
オープンキッチンの横にパントリーを設け、ストック食材などを収めるようにしています。
リビングからの眺め。写真左手の階段は駐車スペース上部のルーフテラスへと続き、室内外を緩やかにつなぐようにしています。
インテリアは、コンクリートやモルタルのグレー、木部のブラウン、アイアンのブラックと3色に絞り、シンプルにまとめました。
LDKからダイレクトにトイレや洗面につながるゲスト用の動線(写真左手)と、キッチンにつながる家族用の動線(写真右手)の2つのルートを設置。洗面の鏡は古家にあった姿見を再利用し、台座はNさん手持ちの古材を使用したリサイクル品。
LDKの収納は造作。テレビ横の扉を開けると洗面室があり、隠し扉のようなプランとなっています。
古家の記憶を残す眺めを大切に受け継ぎ住み継ぐ
地下のアトリエから1階LDKへ続く階段を新設し、踏み板にはサイザル麻を使用。大きな作業台はNさんが製作。
外壁やベランダの手すりは既存のままで、塗装し直して新たな表情に。キャンプに欠かせない愛車のスペースと築山の庭を新たにつくり、Nさん自身のライフスタイルにマッチするようにリノベしました。
造作収納や内窓の桟にラワン材を使用しました。「この素材は加工しやすく、さまざまな素材との相性もいいです」と設計者の須藤さん。長年愛用しているソファの色ともマッチしています。
寝室の天井は既存の梁を表しにしました。
2階から見下ろしたこの眺めがNさんの感性に響き、「この家に住みたい!」という思いを抱かせたそうです。
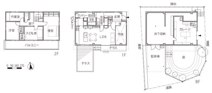
間取図(リノベ前後)
リノベーション前
リノベーション後
上2つの写真は、リノベーション前の様子。車庫があった地下にアトリエと、床下収納を新設。1階はオープンなLDKに変更しました。寝室と子ども部屋は2階に配置。駐車スペース上部はルーフテラスにしました。
DATA
敷地面積/175.63㎡(53.22坪)
延床面積/128.52㎡(38.95坪)
地下1階/19.81㎡(6.00坪)
1階/52.79㎡(16.00坪)
2階/55.92㎡(16.95坪)
用途地域/第1種低層住居専用地域
建ぺい率/50%
容積率/80%
構造/RC造、一部木造軸組工法
リノベーション竣工/2018年6月
工事費/約2200万円
素材
[外部仕上げ]
屋根/既存+塗装
外壁/既存+塗装
[内部仕上げ]
地階 床/モルタル+塗装
壁/躯体表し、高圧木毛セメント板
天井/躯体表し
1階 床/積層フローリング、モルタル+塗装
壁/高圧木毛セメント板、モルタル+塗装
天井/躯体表し、モルタル+塗装
2階 床/オーク、モルタル+塗装
壁/プラスター表し
天井/躯体表し
設備
厨房機器/ベルタゾーニ、リンナイ、
サンワカンパニー
衛生機器/大洋金物、パナソニック、TOTO
窓・サッシ/LIXIL
施工/バレッグス
設計/須藤 剛(Tsudou Design Studio/須藤剛建築設計事務所)
撮影/中村風詩人 ※情報は「住まいの設計2021年6月号」取材時のものです



















