マンション1階の住戸で約25㎡の専用庭付き。庭に面したリビングは明るく広々。そのベースは大きく変えずに、回遊できる動線や、フレキシブルに活用できる収納などをプラス。壁一面に取り入れた大谷石が、リビングを明るくモダンな印象にしています。より暮らしやすい住まいにアップグレードした山際さんのお宅を訪ねました。
すべての画像を見る(全16枚)専用庭付きマンションを、自然素材の温もりあふれる空間に
この家は、リノベーション会社・リノキューブの社員としてたくさんのリノベーションを手掛けてきた山際智浩さんの住まい。設計は、智浩さん自らが行いました。
庭が身近な1階というロケーションに合わせて、ナラ無垢材の床やシナベニアの天井など、「天然素材の温もり」をテーマにプランニング。なかでも、壁一面に取り入れたかったと話すのが、栃木県産の大谷石です。
「私の父が昨年退職するまで、栃木県・宇都宮に赴任していました。昨年の夏、父が戻る前に家族みんなで宇都宮を訪ね、大谷石資料館にも見学に行ったんです。そうした背景もあり、リノベーションでぜひ大谷石を取り入れたいと思っていました」(智浩さん)。リノベーション後、大谷石の壁を目にした父は、宇都宮を懐かしんでとても喜んだといいます。
庭に面したリビングの床はモルタルにし、内と外をつなぐ場所に。
リビングのドアを開けると、広々とした専用庭を通って駐車場まで抜けられます。
【この住まいのデータ】
▼家族構成
夫33歳 妻32歳 長男1歳
▼リノベを選んだ理由
1年前に長男が誕生し、当時住んでいたアパートが手狭になったため、物件探しをスタート。以前から目をつけていた実家近くのマンションにたまたま空きがあり即決。もともと住みやすい間取りだったため、ベースは大きく変えずに、 庭が身近な1階というロケーションに合わせて、天然素材の温もりを感じる空間にリノベーションすることに。
▼住宅の面積やコスト
専有面積/80.66㎡ 築18年(平成12年築) 物件価格/2430万円(購入時)
家具が映えるように空間はなるべくシンプルに
以前から愛用しているオリジナルの家具や北欧家具が映えるよう、空間はなるべくシンプルに、というのがリノベのもうひとつのテーマ。床にはナラの無垢材を、ダイニング側の壁は、躯体現しの梁に合わせてモルタルで仕上げました。
ショールームでほれ込んだ、トーヨーキッチンのステンレスの箱のようなキッチンが存在感を放ちます。背後には、お気に入りの器などが飾れるよう、棚板だけを造作。下には、無印良品の収納棚がぴったりと収まっています。
キッチンと洗面の間にある壁を少し厚くし、引き戸を収められるように変更。普段はオープンに、寒いときや長男を遊ばせるときは閉めるようにしています。
飾るようにしまえるオープン棚を廊下の壁一面に
廊下の幅を広げ、オープン棚を一面に造り付けました。スニーカーや本などのコレクションを、飾るように収納しています。生活や収納物の変化に対応できるよう、棚板は可動式に。
靴が並ぶラフな雰囲気に合わせ、天井には木毛セメントを採用。そこにライティングレールを取り付け、ショップのように照明をランダムに配置しています。
深いグリーンの建具は、すべてオリジナル。一枚一枚デザインや金具を替えて、遊び心をプラスしました。
トイレのクロスも、モルタルのようなシックな色合いに。
大きなスクエアの鏡の左右には、調光できる縦型のランプを配置。壁の白いタイルとシンプルなデザインの洗面台が、清潔感を演出しています。洗面台下にはIKEAの棚を置いて、タオルなどを収納しています。
寝室の壁にはナラの無垢板を採用。ウォークインクロゼットとの間の壁はあえて上部まで仕切らず、光と風が抜けるようにしました。床にはやわらかいカーペットを敷いてやすらぎを演出。「寝室に子どもを寝かせてリビングで過ごしていても、気配を感じられます」と妻。
リビングの一角にある畳スペース。隣接するウォークインクロゼットとの間には建具を付けず、出入りがしやすいように工夫されています。
山際さんのマンションから智浩さんの実家までは歩いて10分ほど。近くに暮らす安心感と、つかず離れずの程よい距離感が、とても気に入っているそう。「先日は両親に子どもを見てもらい、僕たち夫婦は共通の趣味であるジョギングを久しぶりに満喫しました」と夫妻は楽しそうに話してくれました。
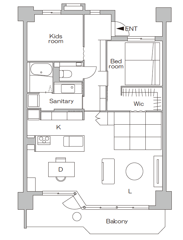
間取り(リノベーション前後)
リノベーション前
リノベーション後
設計・施工/リノキューブ
名古屋市を中心にリノベーションを専門に手掛ける一級建築士事務所。施工実績も豊富で、中古物件探しからデザイン、アフターサービスまで、ワンストップで専任スタッフがサポートする
撮影/山田耕司 ※情報は「リライフプラスvol.32」取材時のものです















