リノベーションされたマンションの一角にある、L字型のカウンターが設置されたアトリエ。ここは妻が趣味の洋裁を楽しむ空間です。アトリエ以外にも、家族全員の衣類を1か所にまとめて収納できるウォークインクロゼットや、動線のよい玄関収納、モールテックス仕上げの腰壁やヘリンボーン貼りのタイル壁など、細かな部分までこだわりが満載のM邸。美しさと暮らしやすさを両立させた住まいを見せていただきました。
すべての画像を見る(全29枚)目次:
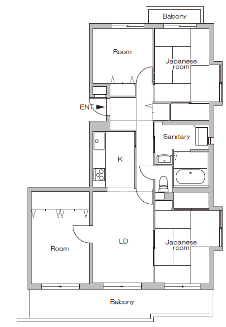
LDKが見渡せる室内窓が付いたアトリエ和室をリビングと一体化して開放的なDKにテレビは壁掛けにして、空間をすっきり見せる小屋裏収納は子どもたちに大人気家族4人の衣類をまとめて収納するウォークインクロゼット部屋のトーンに合わせて建具や家具をオーダー間取り(リノベーション前後)LDKが見渡せる室内窓が付いたアトリエ
「アトリエの室内窓は、リノベを依頼したアネストワンさんの施工例を見て、ぜひ取り入れたいと思っていたアイテムのひとつ。イメージどおりに仕上がって、とても満足しています」と妻。
ガラス越しにLDKを見渡せるアトリエは、「仕事で夜遅く帰ってきて、ひとりでパソコンをチェックしたり、テレビでサッカーを観たりしていると、とてもリラックスできます」と、夫もかなりお気に入りの様子。子どもたちの勉強スペースとしても使えます。
【この住まいのデータ】
▼家族構成
30代夫婦、長女5歳 長男2歳
▼リノベを選んだ理由
リノベーションにはもともと興味があり、長女が小学校に入る前には住むところをしっかり決めたいと考え、便利なエリアの中古マンションを買ってリノベすることした。
▼住宅の面積やコスト
88.24㎡(3LDK+WIC) 工事費 1400万円(税・設計料込み、施主支給品は別途)
和室をリビングと一体化して開放的なDKに
最上階の角部屋で、3面採光のため明るく、出窓も2つあったこと。また小屋裏収納があり、トランクルームも付いていたことなど、想定外のプラス要素がマンション購入の決め手になったというMさん。リノベでは、LDの隣にあった和室をリビングと一体化して開放的なDKに変更。
キッチンのあった場所は、室内窓によりLDKと一体化するアトリエに。北側の和室と洋室をつなげて子ども室としました。配管のために床が一段高くなったキッチンは、腰壁の仕上げにインテリア性の高いモールテックスを採用しました。
オリジナルのキッチンはリビングの建具や床材とトーンを合わせて洗練された空間に。
キッチン背面には吊り戸棚を造り付け、パイプスペースのために出っ張った手前部分には、奥行きの浅い棚を2段設置。壁面のタイルはヘリンボーン貼りに。
背面収納は引き出し式で、奥行きが深いため食器などがたっぷり入って、出し入れもラク。「おしゃれなことも大事ですが、掃除がしやすいことも大事。タイルはキッチンの背面にするなど、使う場所にもこだわりました」(妻)。
念願のミーレの食洗機も導入。「以前は極力洗い物が増えないようにしていましたが、今は気にせず使えます(笑)」(妻)
レンジフードには不燃の木製カバーを採用。木と漆喰を基調とし、洗練された雰囲気のオープンなLDKに違和感なく溶け込んでいます。
キッチンの腰壁と洗面カウンターは、「ぜひ使ってみたかった。独特の質感がいいですね」(夫)というモールテックスで仕上げました。
テレビは壁掛けにして、空間をすっきり見せる
LDKのテレビは壁掛けにすることで、空間をすっきり見せています。
リビングの一角に収納を設置。正面の扉の向こうは、現在は予備室になっている寝室。
ルーバー扉を採用したリビングの棚には、ファイルボックスを使って取扱説明書や書類などを分類して収納。プリンターやルーターなどのパソコン関係の機器やオムツなども収納しています。
家族4人が子ども室で一緒に寝ているため、今は使われていない寝室は、既存のクローゼットの扉を塗装し直し、取っ手を交換して使用。床と壁の仕上げ以外には手を加えず、遊び心が感じられる個性的なデザインのクロスを採用してイメージチェンジしました。リビンングにも近いので便利です。
ソファ代わりに使っている「ニーチェア」は、折り畳んで持ち運べるので空間をフレキシブルに使えます。シートは限定カラー。
漆喰の壁は、アネストワンの定番。手仕事ならではの自然な仕上がりが温もりを感じさせ、上質な空間をつくり出しています。
小屋裏収納は子どもたちに大人気
最上階の部屋のみに付いていた小屋裏収納は、本好きの夫の蔵書の収納に。棚は夫がDIY。子どもたちに大人気の空間で、折りたたみ式のはしごを引き下ろすと真っ先に上り、なかなか下りてこないとか。
玄関ホールから子ども室を見たところ。北側の2つの窓から入る、やわらかな光に包まれています。将来は2室に分ける予定。右手の引き戸は子ども室につながるウォークインクロゼット。身支度もスムーズにできます。
家族4人の衣類をまとめて収納するウォークインクロゼット
「家族の衣類は1か所にまとめたかった」と妻。IKEAのシステム収納を利用して、家族全員の大量の衣類を整然と収納しているのが印象的です。収納場所を1か所にまとめておけば、衣類があちこちに散らかる心配もなく、片付けるのも洗濯物をしまうのもラクチン。
「家に帰ったら、寝室に行かずにウォークインクロゼットで着替えればOK。動線もシンプルになって、暮らしやすくなりました」(夫)と、使いやすさも抜群のよう。出窓のある明るい空間で、子ども室へも行き来が可能です。
両サイドに収納を備えた玄関。左手にコートなどを掛けられるクロークを設置し、「帰ってきたらコートなどをサッと掛けられるようにしました」と妻。虫よけスプレーやヘルメットなども収納されています。
反対側の下駄箱は、扉付きの棚の下にオープンな棚を2段設置。「扉があると誰も片付けてくれませんが(笑)、下の棚なら子どもも自分でしまいます。習慣になったようで、外食したときなども、ちゃんと自分で靴をしまっていますよ」と妻。よく履く靴は下部のオープン棚に。正面はウォークインクロゼットのドア。
カウンターをモールテックスで仕上げたオリジナルの洗面台。下部のオープンな棚には、出し入れしやすいカゴを使ってドライヤーなどを収納しています。真鍮の照明器具は、家具金物などの製作を手掛ける「千」にオーダー。
洗面の壁に用いられたタイルは、ミナ ペルホネンの「タンバリン」とボーダータイルの組み合わせ。配置のバランスも絶妙です。
浴室脇にはお風呂上りに使うタオルをサッと取り出せる棚を設置。スティック型掃除機の置き場所も確保されています。
ショールームで見て、Mさん夫妻がひと目で気に入ったという便器が浮いているトイレ。「タンクレスに見えるのですが、後ろの収納がセットになっていて、中にタンクが入っています」(妻)。床の照明も浮遊感を演出します。
部屋のトーンに合わせて建具や家具をオーダー
玄関を入って正面に見えるウォークインクロゼットのドアは、「シンボリックなものを、と提案されました」(夫)というナラの突き板を使用。真鍮の照明との相性も抜群です。
リビングの建具はアネストワンのオリジナル。ヴィンテージ感漂うデザインが魅力で、温かみと味わいのある雰囲気に満ちています。
アンティークの家具や雑貨を扱う福岡の「クランク・マルチェロ」でオーダーした照明器具。届くまでに3か月ほどかかったそう。
アトリエの椅子は、北欧家具や雑貨を扱う「haluta」でオーダー。アンティークの椅子にミナ ペルホネンの張り地を組み合わせました。
リノベを振り返って「アネストワンさんがリノベーションしたお宅を訪問する『リノベ見学会』で実際に住んでいるお宅を見学できたのは大きかったですね。物件の下見も一緒に来てくださったので、いろいろ確認しながら検討できました」と夫妻は話してくれました。
間取り(リノベーション前後)
リノベーション前
リノベーション後
※情報は「リライフプラス vol.32」掲載時のものです。
設計・施工/アネストワン 撮影/水谷綾子




























