人気インテリアショップ「journal standard Funiture」の家具やインテリアが似合う空間にしたい、という強い思いを持ってリノベした空間に、こだわって選んだ家具や雑貨がよくマッチしています。journal standard Funitureとリノベーション会社「リノベる。」がコラボしたリノベーションサービスを利用し、おしゃれで心地いい空間に仕上げた住まいをご紹介します。
すべての画像を見る(全14枚)リノベで大好きな家具が映えるハコづくりを
ルーフバルコニーが2か所にあり風通しと陽当たりがよいこのマンションに一目ぼれした林さん。「家を買ったらこの家具を買い揃えよう」と心に決めていたアイテムたちが主役になるよう、間取りや内装の素材のバランスを3Dシミュレーターを使いながら探っていきました。
リビングに置かれたソファやローテーブル、チェストなどの大型家具はもちろん、サーキュレーターやフロアランプまで、すべてjournal standard Funitureで揃えています。
リビングの一角で圧倒的な存在感を放つのは、アンティーク加工が施され、アイアンとラフなペイントの組み合わせが絶妙な「GUIDEL DRAWERS CHEST(ギデル ドロワー チェスト)」。
その上に置かれているのはセメントのボディに粗いリネンのシェードを組み合わせた、ヴィンテージ感のある「LE HAVRE TABLE LAMP(ル アーブル テーブルランプ)」。
【この住まいのデータ】
▼家族構成
本人 40歳
▼リノベを選んだ理由
以前から好きだったjournal standard Funitureとリノベる。がコラボしたリノベーションサービスがあることを知り、長年思い描いていた家の購入に合わせ、journal standard Funitureの家具が似合う家をつくりたかった。
▼住宅の面積
専有面積/66.61㎡
本物のタイルを壁に貼ったワークスペース
リビングの一角に設けたワークスペースはの背面は、横浜の赤レンガ倉庫を思わせるタイル貼りにしました。「家具とタイルの組み合わせが気に入っている空間です。タイルはフェイクではなく、予算をかけてでも本物にこだわりたかった」と林さん。
その壁に合わせたのは、メッシュ扉が付いた武骨な「GUIDEL MESH LOCKER LOW(ギデル メッシュ ロッカー ロー)」。
上に置かれたスチールボックスをはじめ、林邸の雑貨は個性的な雑貨ブランド・PUEBCO(プエブコ)のものが多く、journal standard Funitureの家具ともマッチしています。
個室は割り切ってコストダウン&省スペースに
リビングと室内窓でゆるいつながりをもたせた寝室は、寝るだけの場所と割り切ってコンパクトに。室内窓のおかげで光や視線が抜けるので圧迫感は感じないそう。奥の仕事着がきれいに並ぶクローゼットには扉を設けず、オープンに。
もうひとつの個室はゲスト用。家具は以前の家で使っていたものを配置し、シンプルなインテリアに。
玄関や水まわりの世界観もしっかり統一
広々とした玄関はルーフバルコニーに面した窓があるので、明るく開放的。足場板を使ったオープンシェルフには、靴を入れたPUEBCOのシューズケースやボックスが整然と並びます。
廊下にはPUEBCOのカーテンで仕切られたウォークインクロゼットがあります。もともとは洗濯室だったスペースを活用しているので、奥にはパイプがちらり。
洗面台はリノベる。のショールームで気に入ったという雰囲気を再現。ディティールにこだわり、インダストリアルな世界観を再現しています。
トイレは壁を白いサブウェイタイルで仕上げました。ハニカムタイル模様のマットがアクセント。
journal standard Funitureとリノベる。のコラボによるトータルコーディネートだからこそ実現した空間は、思い描いていた「journal standard Funitureの家具が似合う家」そのもの。
「質のいい空間に身を置くことで、もっと頑張ろうという気持ちになれます。そのおかげか、ここに越してきてから仕事も調子がいいんです」と林さんは満足そうに話してくれました。
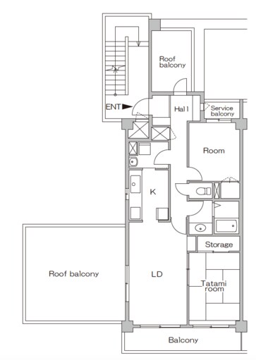
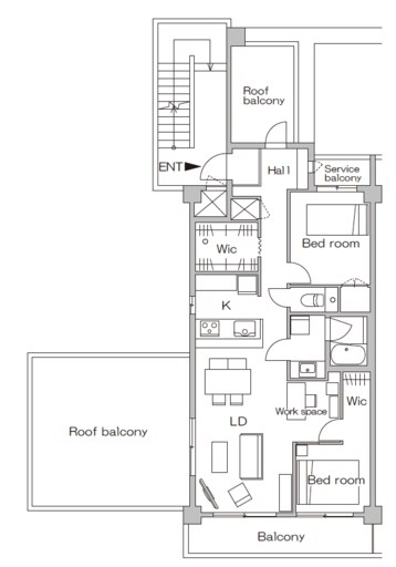
間取り(リノベーション前後)
リノベーション前
リノベーション後
※情報は「リライフプラスvol.36」取材時のものです
家具コーディネート/journal standard Funiture コーディネート・設計・施工/リノベる。 撮影/臼田直史













