74㎡の中古マンションを購入した共働きのSさん。キッチンをはじめ、「共働きだからこそ、家事全般がしやすいスッキリした家」をテーマにリノベーションをしました。ふたりで立ってもゆとりあるキッチン、LDKがスッキリ片付く大容量のウォークインクロゼット、理想の家事動線を実現。家事のストレスゼロの心地よい空間を維持できています。
すべての画像を見る(全15枚)料理も掃除もしやすいオープンキッチン
以前の住まいのキッチンは、「誰かが立っていると後ろを通れなくてストレスだった」というSさん夫妻。それを解消すべく、キッチンは広々と開放的に。ふたりが並んで立ってもゆったり料理ができるようになりました。
キッチン背面のバックカウンターはものを置くことも作業スペースとして活用することもできて、スムーズな調理や配膳には欠かせません。また、キッチンで最もこだわったのは、ステンレスのバイブレーション仕上げの天板。
オプションメニューだったので予算はかかりましたが、「マットな質感と、少々手荒に扱ってもキズが目立ちにくいのがいい」と妻は大満足しています。
そしてキッチン奥には広いパントリーを新設。パントリーの右側には冷蔵庫を収め、使いやすさは維持しながらも、存在感と生活感のあるアイテムをLDから見えにくくするひと工夫を施しました。
また、アメリカンダイナーの雰囲気が好きという夫のこだわりで、キッチンの腰壁はイメージに近い人気ハンバーガーショップの写真を見せてオーダー。テーマカラーであるネイビーで塗装しました。
【この住まいのデータ】
▼家族構成
夫妻+子ども1人
▼リノベを選んだ理由
長男誕生によりそれまで住んでいた賃貸の家が手狭になった。「家賃をずっと払い続けるのも無駄な気がして…」(夫)と、妻がマンション派なこともあり中古マンションのリノベーションを決意。
▼住宅の面積やコスト
74.37㎡(2LDK)、工事費は1300万円(税・設計料込み・施主支給品含む)
大容量のウォークインクロゼットのおかげでLDKがスッキリ
キッチンからダイニング、リビングと縦につながるS邸。LDとキッチンのオープン棚の高さを揃えることで縦長ラインを強調し、より広々とした空間に感じられます。
棚に加え、造作のテレビボードも圧迫感がないようにオープンに仕上げました。
そんなLDの一角には3枚の引き戸があります。
光を視線をほどよく通すすりガラスのその先には、小上がりを備えた洋室が。普段は引き戸を開放して、セカンドリビングとして使っています。また、バルコニー側の塩ビシートを敷いた部分は「内庭」と名付け、腰かけると縁側のように使えます。
その隣にはウォークインクロゼットを設置しました。ものをひとまとめにできる大容量の収納は夫の強い希望から実現したもので、LDKをスッキリ見せるのに一役買っています。
玄関と水回りの広さを優先し、快適な家事動線に
「個室が少なくてもいいから、玄関と洗面・脱衣所を広くしたい」と希望し、玄関にはベビーカーもラクラク置けるほどの広々とした土間スペースを設けました。
洗面スペースも広さをしっかり確保したうえで、柄の大きなタイル調の床材を敷いて華やかな印象に。実験用シンクなどを用いて造作しています。
その隣の窓際は、脱衣所兼物干しスペースに。洗濯機から直接干せたり出窓でアイロンがけができたりと、洗濯系の家事が一気に終わるので、部屋干し派の夫妻の期待を超えて大活躍中。
LDKを通らずに寝室、寝室側のバルコニー、ウォークインクロゼットまで行き来できる家事動線も快適。
家事効率や家事動線を考え抜いてプランされたS邸は、イメージ通り掃除も料理もしやすい住まいに仕上がりました。「家事をしていて全然ストレスがないのが本当にうれしい!」(妻)と、リノベによって暮らしの質は格段に上がったようです。
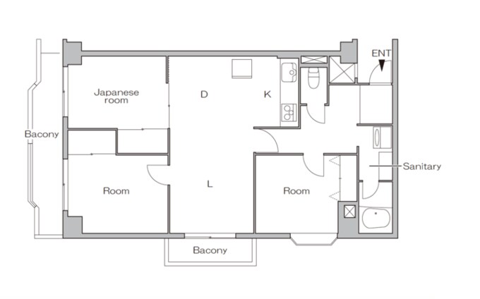
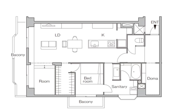
間取り(リノベーション前後)
リノベーション前
リノベーション後
※情報は「リライフプラスvol.33」取材時のものです
設計・施工/リノベ不動産 撮影/臼田直史














