Tさんが購入したのは都内有数のヴィンテージマンションで、広さは100㎡超。リノベでは動線に合わせて寝室や大型のウォークインクロゼット、水回りを配置。忙しい朝の身支度もスムーズになりました。50㎡あるLDKは、ゆったりとしたつくり。東向きのダイニングには奥行きの深い出窓もあり、4匹が猫がのびのび過ごせるスペースに。
すべての画像を見る(全18枚)目次:
十分な広さと回遊できる動線を確保会話しながら料理が楽しめる広いカウンター忙しい朝の身支度の動線をスムーズに海外のサニタリーのようなオープンスタイルに回遊できる間取りは、猫にも人にも快適間取り(リノベーション前後)十分な広さと回遊できる動線を確保
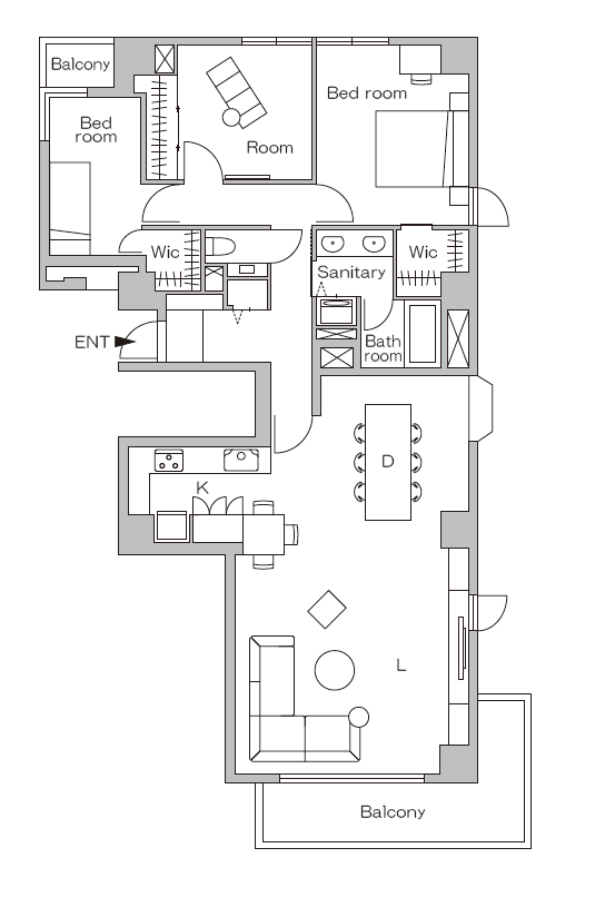
間取りは、LDKをほぼ既存のまま引き継ぎ、プライベートエリアをTさん仕様にリノベ。以前の住まいでは物を分散して収納せざるをえず、朝の身支度の動線が複雑だったため、リノベではTさんの動線に合わせて寝室や大型のウォークインクロゼット、水回りを配置。エリア内は南北にも東西にも通り抜けられ、回遊が可能になりました。
4匹の猫たちが安心できる場所や運動量の確保も課題のひとつでしたが、十分な広さと回遊できる動線は猫たちの快適さにもつながっています。
リビング東面は柱が2本出ていて空間に凹凸がありましたが、2本の柱をつなぐ形で壁面収納を造作。ニッチにテレビや本を収めることで、空間をすっきりと見せています。
4匹の愛猫たちとくつろぐTさん。室内がより明るく、温かく感じられる黄色のクロスが印象的です。白い框(かまち)扉のキッチンや天井のモールディングを引き立たせ、カーペットの色味ともマッチ。レザーソファのハードさも和らげています。
会話しながら料理が楽しめる広いカウンター
白でまとめたオーダーキッチン。会話しながら料理ができるよう、既存では奥まった位置にあったキッチンを少し手前に移動。広いカウンターを設けてオープンなスタイルに。
キッチンを手前に出したことで生まれた空間を利用して、冷蔵庫も収まるパントリーを設けました。猫が入らないように引き戸で仕切りながら、なるべく間口が広くなるように3枚引き戸とし、戸袋にすっきりと収める形にしました。
T邸の居室出入り口の建具は、すべて引き戸。LDKの入り口も天井の高さまでの引き戸になっていて、開ければ空間全体が一体化できるつくり。
忙しい朝の身支度の動線をスムーズに
気持ちよく目覚められるよう、ベッドを置く位置は太陽の動きを考えてプランニング。寝室からは洗面所やウォークインクロゼットに直行でき、動線がスムーズです。
寝室の西側は書斎と納戸になっており、建具で仕切られていないため、行き来がしやすいそう。
ウォークインクロゼットの中は東から西へ向かってトップス、ボトムス、アウター、バッグなど、身に着ける順番に配置して収納。ウォークインクロゼットを抜ければすぐに玄関です。
洗面所とトイレの間に見える室内窓は、ウォークインクロゼットの側面に設置されたもの。南北に風や光を通す役割を果たしています。
海外のサニタリーのようなオープンスタイルに
既存では壁に囲まれ狭く感じるつくりだった洗面所。位置は変えず、リノベではオープンなスタイルとすることで、海外のサニタリーのような雰囲気に。
多頭飼いの悩みどころになるのが複数必要となる猫用トイレ。T邸では薄暗さが猫にとってちょうどいいという洗面台の下に収め、換気扇を設置してにおい対策も万全。自身も猫を飼っているSデザインファームの鹿内健さんによる提案だそう。
3つセットされたトイレから砂が散らばるのを防ぐため、側面に設けた開口から入るスタイルに。砂の取り替えや掃除は、正面の開き戸側からできるので快適です。
回遊できる間取りは、猫にも人にも快適
玄関から北側はプライベート空間。プライベート空間内は引き戸でエリア分けされてはいますが、開けておくと西の廊下→寝室→東の廊下→洗面脱衣室→玄関ホールと回遊できます。回遊できるつくりは、追いかけっこが大好きな猫にはうってつけ。適度な運動は猫のストレス発散にもなると考えられています。
床はマンションの規定でカーペット敷きに。フローリングよりも足腰にやさしいため猫にとってはプラス条件となりました。南向きのベランダ付近は猫の健康維持に欠かせない日光浴に最適で、敷物がなくても気に入った場所で寝転がっているそう。ただ、毛玉を吐くこともあるため、カーペットの上にはラグを敷き、お手入れしやすくしています。
仕事で多忙なTさんにとって、マンションを囲む緑をめで、猫たちと触れ合う時間が何よりも大切な癒やしになっているようです。
間取り(リノベーション前後)
リノベーション前
リノベーション後
プロデュース/リビタ
設計/Sデザインファーム
撮影/遠藤 宏
※情報は「リライフプラス vol.35」掲載時のものです。

















