造園家の本田浩さんが自分の庭をつくりたい、と生まれ育った鎌倉から移住した先は長野県。雄大で緑豊かな田園風景に溶け込み、地元の木材やエネルギーをムダなく利用できて、人が自然のリズムで暮らせる穏やかな住まいが実現しました。 「家のリビングからごろごろ寝転んで出られるデッキが欲しい」という妻の要望で実現したのは、北側の屋根つきデッキ。庭を見下ろす最高の場所あり、自然を家の中に取り込みます。家族のくつろぎの場であることはもちろん、本田さんが庭づくりの構想をまとめる場にも。
すべての画像を見る(全26枚)エネルギーの地産地消も目指した、フレキシブルな住まい
本田さんの家 長野県 家族構成/夫45歳 妻43歳 長男9歳
設計/田邉雄之建築設計事務所
この家のこだわりポイント
- ・自然環境を取り込む暮らし
- ・風景に溶け込む家の姿
- ・産材をあますところなく使う
- ・家族の変化に対応する間取り
- ・エネルギーの地産地消も見据える
自然の一部として営む人間らしい暮らし
自生する野草を生かして庭づくり中の本田さん。
「種をまき散らして繁殖する草や、背が高くなるものは刈り取っています。庭づくりの構想はつねに変わっているので、終わりがないですね」と笑います。
ナチュラルな雰囲気のキッチン。手前の作業台は「ペッタンコハウス」(後述)の建主である江戸指物師(さしものし)の知人につくってもらったもの。
国産メーカーで唯一の鋳鉄(ちゅうてつ)製薪ストーブ、AGNIをチョイス。これ1台で家じゅうを暖め、冬には家族が集まる家の中心となります。仕事柄、焚きつけに使う木っ端などに困ることはないそう。
エネルギーをムダ使いせず、環境負荷を抑えた暮らし
開け放した窓から風が吹き抜け、真夏だというのに家の中では暑さを感じることがない暮らし。冬はリビングにある薪ストーブが活躍し、家じゅうを暖めてくれます。
「ものもエネルギーもムダづかいせず、環境負荷を抑えた暮らしを心がけています。水は敷地内に掘った井戸から引いていて、排水は浸透枡(しんとうます)なので、土を汚すものは流さないようにしていますね」
そう語るのは、生まれ育った鎌倉から八ヶ岳を望む豊かな田園風景の長野に移住した造園家の本田浩さんです。
「造園家として自分の庭がつくりたくて、以前から住みたいと思い続けてきた長野に家を建てました。長野に暮らし始めていちばん変わったのは、生活の時間。早寝早起きが進んで、日が昇ったら目覚め、日が落ちると眠くなるようになってしまいました」
そんな本田さんのお気に入りの場所が北側のデッキ。屋根がかかった奥行き3mの空間はまさにアウトドアリビングです。
「玄関がある南側のデッキは作業用、庭が望める北側はうちの『メインリビング』。家族と食事をとるのはもちろん、ひとりで庭の構想を練りながら、ぼーっとするのに最高な場所です。キジや鹿、キツネが庭を横切っていくこともあるんですよ」
視線の先に広がる野趣豊かで美しい庭は、この先も変わり続け、造園家の理想を表現していくのでしょう。
高い断熱性と風の抜けのよさが気持ちいい暮らしの秘密
玄関から北側の開口部を見通すと、目の前に階段が位置しています。蹴込みがなく向こう側が見えるので、階段の圧迫感はありません。また、ドーマーからの光がスリット状の床を通して1階を照らしている様子がわかります。
2階から見下ろしたLD。引き込み式の大きな開口部は特注の木製建具。ここは本田さんの家の第二の玄関といえそうです。
光と風を取り込む南向きのドーマー。ここから北側の大きな開口部に向かって風が吹き抜け、家の中に熱気がこもりません。
Low-eガラスを用いた断熱サッシなのはもちろん、屋根や壁などの断熱材も高性能な製品を用いていて、住宅全体で断熱等級4を取得しています。
2階通路の床はスリット状なので圧迫感がなく、光が階下に届きます。
木材の使い方を工夫して県産材のカラ松を徹底的にムダなく使う
本田さんの住まいでは構造だけでなく外壁や床などにもカラ松材が使われています。
その理由は、長野県産のカラ松材をできるだけムダく使うために、一般的な規格だけでなく、さまざまな太さ、幅、長さに製材して、適材適所で用いたため。
一般的なフローリング材は幅のそろった材を使いますが、ここでは3種類の幅に製材してムダなく使っています。
将来的にはオフグリッドも視野に入れた暮らし
家の北東部分に位置するリビングの一角には薪ストーブが設置されています。一室大空間の本田さんの住まいでは、暖まるのに少し時間がかかるところが難点ですが、一度暖まればこれ1台で家じゅうが暖かいのだとか。
ウッドデッキや柵などをつくる際に出た木っ端もきちんと保管してあり、冬になると焚きつけとして利用しています。
庭の小屋では3羽の鶏を飼っています。「近所の人からひよこを分けてもらって、大きくなりました。毎日新鮮な卵をいただいています」。
鶏を放すのにも十分な広さがある庭。北側に事務所を兼ねた小屋を計画中で、屋根にソーラーパネルをつけることも考えているのだそう。
「蓄電池と連携させれば、オフグリッドな生活(電気や水道などインフラに頼らない生活)も可能かもしれません」
美しい田園風景に溶け込むナチュラルな家の姿
「こういうところで暮らすなら、家の姿に気を配ることも大切」。周囲の地形から突出するような高さがあってはいけないし、奇抜な外観も不要。ここでは自然に溶け込むような、シンプルでナチュラルな家の姿が大切なのです。
天井高が高く、開放感あふれる一室空間で、家族の距離も縮まります
「閉じられるのは、浴室と和室くらい。あとはひとつながりの空間です」と本田さんが言うとおり、境界がない大きな空間を、家具や機能で区切ったフレキシブルなプランニング。
屋根がかかったデッキは外でありながら、LDの延長になっていることがよくわかります。「天気がよければもちろん、雨が降っていても屋根があるので快適に過ごせるデッキです」。朝に晩に家族そろってデッキが、食卓になることも多いのだそう。
オリジナルのキッチンは建物の西側にあって、開口部からはゆったりと下る田園の絶景が楽しめます。「晴れた日には西日がキツイので、妻はキャップをかぶって台所に立ってますよ」。
キッチンに隣接したパントリー。奥は玄関収納とつながっています。
地元の材をムダなく使ったフレキシブルな空間
造園家として建築家と協働することも多い本田さんが、住まいの設計を依頼したのは、同じ鎌倉在住で気心の知れた田邉雄之さんでした。
「田邉さんが松本に建てた『ペッタンコハウス』が気に入ったんです。地元の木材をムダなく使うというコンセプトと、なにより一室空間のフレキシビリティにひかれました。道具として家を考えたときに、完成された家より、自分の自由にできる余地が残されているほうが楽しいし、使いやすいと思うんです」
勾配のゆるい切妻屋根やドーマー窓、開放的な一室空間などペッタンコハウスの基本コンセプトは受け継ぎ、本田邸のオリジナルとして、南北のデッキとそれを覆う張り出し屋根を加えました。
「このデッキがあることで、屋外の環境が自然と屋内に入ってくる気がします」
とくに北側のデッキに隣接するLDの高い天井が開放感をもたらし、内と外の境界を曖昧にしているようです。
また、間取りに関しては以前から個室に対する抵抗感があったそうで、寝室も子ども部屋も壁を立てず、家じゅう風通しがいい現在の間取りは、まさに本田さんの理想どおり。
「子どもの成長や家族構成の変化にも対応できるし、キッチンには知人に頼んで作業台をつくってもらったり…。庭と一緒でこの家もずっとカスタマイズし続けるんだと思います」
そのときの家族の求めに応じて変えられるフレキシブルなプラン
こちらは2階の子ども部屋。
寝室は子ども部屋と通路を挟んで配置されています。どちらの部屋も間仕切りとは呼べないような腰壁で緩やかに仕切られていることが特徴。「息子が成長して個室を欲しがったら、ちゃんと壁を立てればいいかなと思っています」。ドーマーの窓を開ければ煙突効果で熱気が抜け、2階も暑くなりません。
キッチンの反対側、建物の東側にトイレと浴室があります。壁と天井にレッドシダーが張られたウッディな空間。ホール側の壁には小さな開口部があり、ホースを使って風呂の残り湯を洗濯に使えるようになっています。
玄関を入ると向かって右にあるのが、ゲストルームを兼ねた和室。縁なし畳が敷かれた、建具で閉じられる唯一の個室です。
トタンの波板を張った屋根。役物を省いて破風に折り込んだだけの簡単な仕上げですが、シンプルでモダンな印象です。
道路に面した南側にも大きな屋根が渡されたデッキがあります。こちらはウッドデッキではなく、コンクリート敷き。家や仕事に関する作業をするための工作スペースになっています。
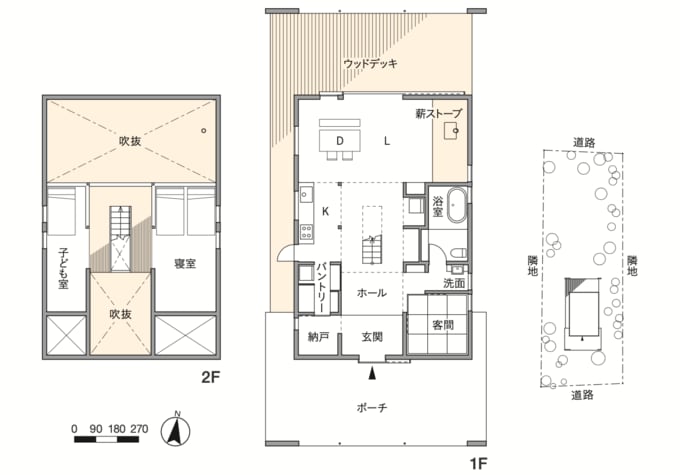
間取り図
DATA
敷地面積/1217.38㎡(368.90坪) 延床面積/130.94㎡(39.68坪)
1階/96.16㎡(29.14坪) 2階/34.78㎡(10.54坪)
用途地域/無指定 建ぺい率/60% 容積率/200%
構造/木造軸組工法
竣工/2018年10月
素材
[外部仕上げ]
屋根/ガルバリウム鋼板
外壁/カラ松
[内部仕上げ]
1階 床/カラ松
壁/石膏ボード塗装
天井/石膏ボード塗装
2階 床/構造用合板
壁/石膏ボード塗装
天井/石膏ボード塗装
設備
厨房機器:オリジナル
衛生機器:サンワ、パナソニック
窓・サッシ:オリジナル、LIXIL
施工/牛山工務店
造園/honda GREEN
設計/田邉雄之(田邉雄之建築設計事務所)
※情報は「住まいの設計2021年10月号」取材時のものです

























