マイホームとして、増え続ける空き家を購入し、リフォームする人が増えています。実際、快適な家にするには、どれくらいの費用や工事期間を要するのか気になるところ。築45年の古い空き家を譲り受けた日刊住まいライターは、約2500万円かけてスケルトンリフォーム。希望の間取りや性能を実現しました。工事期間4か月で、理想の家を手に入れた詳細をレポートします。
すべての画像を見る(全7枚)家屋診断で問題なし。スケルトンリフォームを選択!
筆者は夫と2歳の子どもと暮らしています。今回スケルトンリフォームを行ったのは、筆者自身も小学生のころまで住んでいた祖父母の家。10年以上空き家になっていた家を、昨年譲り受けました。
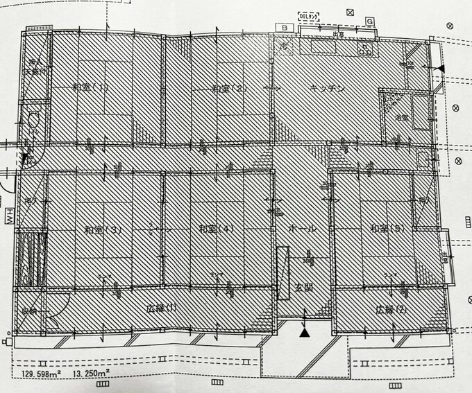
もともとは、築45年の39坪の平屋。その後、平屋の隣に20坪程度の2階建て部分を増築しています(リフォームしたのは平屋の部分のみ)。いわゆる昔ながらの間取りで、安全面含めてそのまま住むのは難しい状況でした。
古い家の場合、建て替えも選択肢のひとつになります。今回建て替えではなく、スケルトンリフォームを選んだ最大の理由は、家屋の保存状態が良好だったこと。
空き家になってからも5年に1度は防蟻(ぼうぎ)処理を行っていたので、シロアリによる腐食がなく、家の骨組み自体はとてもしっかりしていました。リフォーム前の家屋診断では、瓦屋根も状態がよいため、このまま屋根として使い続けられると判明。
また、空き家になってしまったけれど、かつては自分も生活し何度も遊びに来た家。可能ならその名残は残しておきたいという気持ちがありました。リフォームでも安心できるレベルの耐震補強や断熱工事が可能だとわかり、リフォームを選択することに。
スケルトンリフォームの費用は約2500万!その内訳は?
家全体のリフォーム費用はおよそ2500万円。そのうちの費用の内訳をレポートします。
●解体工事と産廃費用で約580万円
まず、畳や建具を取り払いスケルトンの状態にしなければなりません。ここで、解体費用と、産業廃棄物としての処理費用が発生しました。
39坪とそこそこ広さがあることから、解体と産廃処理費用だけで570万円。さらに、2021年4月からの法改正により、石綿含有建材の撤去費用について差額が発生し追加で14万円かかりました。よって、スケルトンにするだけで総額584万円です
●耐震補強、断熱工事…家の性能アップで約245万円
スケルトンになったら次は、家屋全体の性能工事として耐震補強、防蟻処理、床下防湿。約100万かかりました。1か所床下の木材が傷んでいる部分があったので、新しい木材に交換しています。
このような、事前に確認できなかった腐食やトラブルについては、追加料金なしで施工業者に対応してもらえたので安心でした。
断熱性能の面では、H28年省エネ基準のグラスウール断熱材を希望し、115万円で天井・床・外壁に取り入れています。そのほか、24時間換気システムの導入などで性能工事の総額は245万円ほどです。
●外回りの修理で350万円
外観は昔の面影を残しておきたかったので、モルタル塗装をそのまま生かしつつ修復・塗装。そのほか雨樋の交換など、外回り全体で350万ほどかかっています。
●間取り変更の木工事や設備費用で約1200万円
LDKは南にあった8畳の和室2部屋分と縁側部分を使用。2間と縁側は襖(ふすま)で仕切るタイプだったため壁部分が少なく、25畳の広い空間を確保できました。
どうしても取れなかった柱は、スイッチ類やコントロールパネルを集合させるニッチに変身。北側にあったキッチンを移動させたため給排水の工事もあり、約200万かかっています。
また、東面にあった浴室を家の中央寄りに移し、洗面所と脱衣所を別部屋にした間取りの変更は、150万でした。子ども部屋や客間など各部屋はおおよそ30万前後の費用でリフォームできました。
●追加でかかった費用と削減できた費用
もとの家は南玄関なのに昼間も暗い印象…。玄関は広く明るくしたいと希望しました。当初は引き戸で片面が壁仕様でしたが、追加8万円で壁を曇りガラスに変更。
また、浴室はメーカー標準で選択できるブランドではないものをお願いしたので、本来の金額より30万の追加費用が発生しました。こうしたい、ああしたいと理想の機能をリクエストしていくと、いつの間にか少し予算オーバーに…。
夫婦で改めて話し合い、本当に必要なものだけを厳選した結果、以下の部分で金額調整できました。
・収納の扉を2か所なくす:マイナス8万円
・浴室をダウンライトではなくシーリングに変更:マイナス6万円
・脱衣所の暖房はなし:マイナス10万
・トイレ内の手洗い器はなし:マイナス3万円
そのほか、浴室、脱衣所、トイレの窓を小さくしたことで、アルミサッシの金額も安くなりました。





