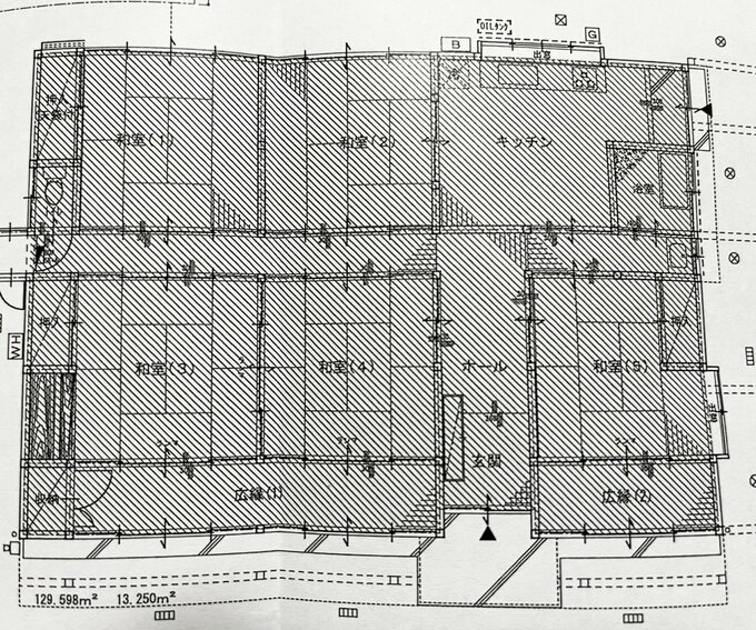
2500万円で空き家をスケルトンリフォーム。内訳と気持ちよい住まいの様子を紹介 記事に戻る スクロールで次の画像 (画像 1/7) この記事を読む 築45年の古びた家が、スケルトンリフォームで大変身! (画像 2/7) この記事を読む (画像 3/7) この記事を読む (画像 4/7) この記事を読む (画像 5/7) この記事を読む (画像 6/7) この記事を読む (画像 7/7) この記事を読む