結婚や出産を機に、実家を二世帯住宅にリノベする人が増えています。今回は、インテリアコーディネーターで整理収納アドバイザーの長岡里枝さんが関わった事例を紹介します。8畳の和室が、間接照明を効果的に使った、心落ち着く寝室に大変身。いずれはホームシアターも楽しめる空間が生まれました。さっそく解説してもらいます。
すべての画像を見る(全8枚)寝室にリノベする和室は、専用玄関と水回りつきの特殊な間取り
依頼者は、30代後半の夫婦と小学生の娘さんとの3人家族。仕事と子育ての両立、いずれは訪れる親の介護も考え、親との同居を決意。夫の実家を二世帯住宅にリノベーションすることにしました。
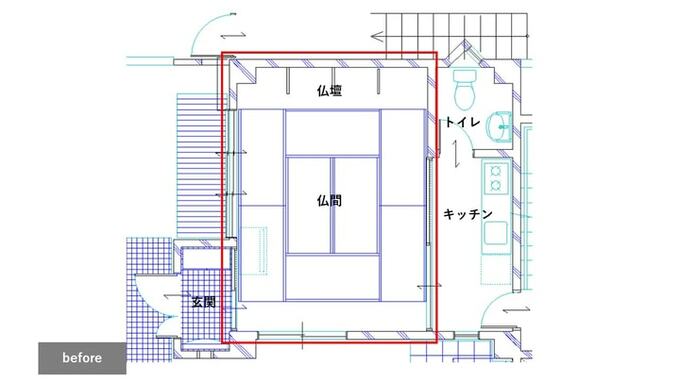
こちらは、リノベ前の状況です。8畳の和室は、仏間として法事などで人が集まることもあり、ミニキッチンとトイレが併設され、専用の出入り口もありました。
こちらがリノベーション後のプランです。ミニキッチンとトイレは洗面スペースに。8畳の和室をクローゼットつきの寝室に変更。専用の出入り口は、寝室とは切り離し、子世帯の玄関にしました。
こちらは3Dに起こした既存の和室です。
左手に、部屋に直接上がることができる専用の玄関、奥の障子を開けると、ミニキッチンとトイレがあるプランでした。
床はフローリングに。木目のアクセントクロスも使用し、くつろげる空間に
寝室の照明は、依頼者の希望でリラックスできる造作の間接照明に。寝室で趣味の映画鑑賞を楽しめるよう、壁かけテレビを設置しました。その壁の奥は、幅2500㎜もある大きなクローゼットです。床は、畳からアイボリーアッシュのフローリングに替えて、明るい雰囲気に。
ベッドをつけた側の壁には、腰上のアクセントクロスを貼っています。黒の木目のような柄の壁紙(サンゲツFE6444)を縦に貼りました。巾木(はばき)はホワイトアッシュ、カウンターはソフトウォールナットを使用。このことで、寝ているときも木に包まれているような気分に。おだやかな時間が流れる空間になりました。
照明は、横になったときに直接視線に入らない位置に
寝室の場合、横になったときに、照明の明かりが直接視線に入らないように配慮が必要。おすすめは間接照明です。
生まれ変わった寝室では、間接照明は、天井から20cm下の位置に、天井を照らすように上向きに取りつけました。長さ1171×奥行38×高さ40㎜(重さ1.3kg)の照明を2台並べて設置しています。
照明の色は温かみのある、電球色(暖色)を使用。色温度は3000K(ケルビン)。白熱電球に近い赤みをおびた色は、リラックス効果があるため、寝室の照明に適しています。
調光機能があるため、明るさの好みも100~1%まで自分で調節もできます。
この写真は工事中のものですが、間接照明の光がよくわかると思います。この間接照明を採用した寝室にしたことで、夫婦の趣味である、映画を観ながら、暖かみのある優しい光で、自然な眠りにつくことができる部屋になりました。
●教えてくれた人/長岡里枝さん
2014年5月に家族4人で沖縄に移住。慣れない土地での仕事、子育てに悪戦苦闘しながら、南国ライフを楽しんでいる。インテリアコーディネーター、整理収納アドバイザー準1級。照明コンサルタントの資格も持っている







