自然が感じられる家づくりが、いっそう求められています。そこで、戸外の緑を巧みに窓から取り入れた注文住宅の事例をご紹介。こちらは、もとは別荘地だったという閑静な住宅地に建つKさんの家。旗竿地のため奥まっていますが、おかげで周りの敷地の樹木を借景として存分に取り込むことができ、さまざまな緑を楽しめる開放的な住まいになりました。写真は、庭の樹木を眺めるための正方形の窓が印象的な2階LDの様子。正面には室内とつながるバルコニーがあり、高い天井も開放感をもたらしています。
すべての画像を見る(全27枚)目次:
窓からの眺めと風が心地よい住まいができた街に開き、周囲の環境とつながる旗竿地の家緑をより満喫するためにこだわったポイントそれぞれの窓から異なる景色を楽しめますコンパクトな子ども部屋もつなげると楽しい空間に間取図窓からの眺めと風が心地よい住まいができた
Kさんの家 神奈川県 家族構成/夫40代 妻40代 長女中学生 二女小学生 三女幼稚園児
設計/山縣洋(山縣洋建築設計事務所)
この家のこだわりポイント
- 周辺の自然を感じながら暮らす
- 大型スクリーンで映画鑑賞ができる
- 手持ちのクラシックな家具が似合う空間
- イベントもできる広い玄関と階段
旗竿地の竿部分をアプローチとし、パーゴラを設置。隣地はあき地になっていることから、そちらの既存樹木も借景として楽しんでいます。
窓の向こうに神社の森が広がる2階ホール。「子どもたちが出かけたあと、外を眺めながらここでコーヒーを飲む時間が気に入っています」(妻)。
街に開き、周囲の環境とつながる旗竿地の家
パーゴラが設置された長さ13mものアプローチは、旗竿地の竿部分を有効活用した楽しい空間。隣地の樹木や近くの神社の森の緑が感じられ、子どもたちの遊び場にもなっているそう。その先のガラス張りの玄関も印象的です。
「将来的には、お店とかカフェとか、いろいろなイベントができれば」(夫)
地域に開かれた場所にしたいとの思いから、玄関は吹き抜けの階段室と一体化し、さまざまな方向に窓が設けられたオープンな空間に。ミニキッチンとトイレも備えています。
「ご自宅が緑に囲まれた美術館みたいなので、こういう敷地もうまく設計してくれるはず」とKさん夫妻から設計を依頼された山縣洋さんは、既存のカクレミノの木を生かすために、2階LDに緑を切り取る正方形の窓を設置。直接緑に触れられるバルコニーもあり、窓を開けると風が流れ、鳥の鳴き声も聞こえてきます。
「お隣の庭が見える窓からは、鳥が木に巣をつくり、ひなが巣立っていくのを家族みんなで見守りました」と妻。一方、バルコニーの下には庭に面した寝室が配されており、「カクレミノの木の形が面白くて、寝室から眺めるのも好きです」と夫。同じ樹木でも、2階からの眺めとはまた違う雰囲気が楽しめるそうです。
「今後はパーゴラを白いつるバラのアーチにしたいと思っているんです」と話す妻。少しずつ地域の人たちにも親しまれる場所になっていきそうです。
緑をより満喫するためにこだわったポイント
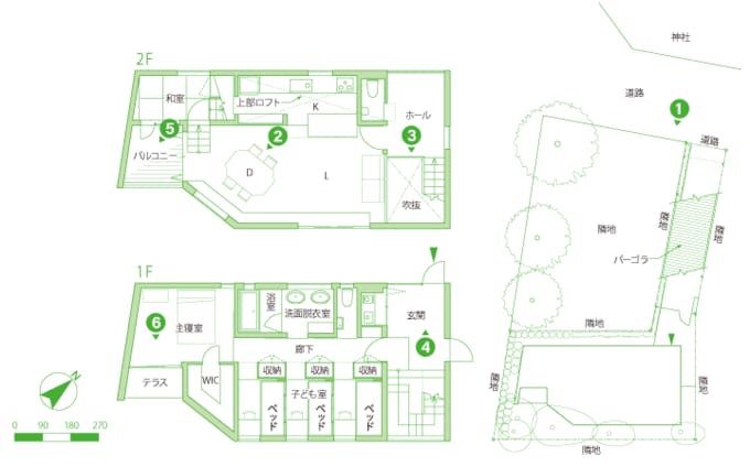
POINT 1 旗竿地の竿部分を生かしたパーゴラのアプローチ
あき地に向かって開くようにデザインされたパーゴラのアプローチ。子どもたちの遊び場にもなっており、つる植物のジャスミンが配されていますが、将来はつるバラのアーチになる予定。
POINT 2 借景を切り取るさまざまなサイズの窓
さまざまな方向の緑を楽しめるK邸。こちらの窓から見えるのは、庭の樹木。
この窓の先は、神社の緑と空。切り取りたい景色に合わせて窓の位置やサイズが決められ、余計なものは見えないように配慮されています。
POINT 3 屋外のような雰囲気を持つ広い階段室
階段を降りる際に目の前に広がるのは、南側隣地の庭を眺める窓。
こちらは、北側のあき地の樹木や神社の緑を眺める窓。2つの窓に囲まれ、階段室はとてもオープン。光も降り注ぎ、内部でありながら屋外のような開放感があります。
POINT 4 街に開いたオープンな玄関
玄関からアプローチを見たところ。オープンな玄関ですが、奥まったところに位置しているため道路側からの視線は気になりません。左手にミニキッチンとトイレを備えています。
POINT 5 樹木に直接触れられるテラス
2階LDの奥には、サッシをフルオープンにすると室内と一体化するバルコニーを設置。緑がより身近に感じられ、「庭の木には実がなるので、リスが食べに来るんですよ」と妻。
POINT 6 既存の樹木を生かした庭
1階の寝室から眺められる庭は、敷地に残されていた既存の樹木を生かしたもの。広くはありませんが、やや暗くて落ち着いた雰囲気があり、夫はこの眺めが気に入っているそう。
POINT 7 緑が映えるシックな外壁
周囲の街並みに溶け込み、木々の緑が美しく映えるシックな外観も印象的なK邸。外壁は、塗料を2回に分けて塗ることで表面に凹凸ができ、独特の陰影が生まれています。
キッチン上部にロフトを備えたLDKは、テレビの代わりに南側壁面に大型のスクリーンを設置。キッチンカウンターやリビングの収納カウンターは、ダイニングテーブルと高さを合わせています。
それぞれの窓から異なる景色を楽しめます
ダイニングの目線と合わせるために、床レベルを1段下げたキッチン。正面の窓からは、借景の緑のほか、子どもたちがバスに乗るところも見えるそう。オリジナルキッチンには洗濯機も組み込んでいます。
LD側の作業カウンターや間仕切りの内側に収納を確保。さらに、正面の扉の向こうはパントリーになっています。
テーブルなどのクラシックな家具に合わせて、天井や床、作業台の天板などをシックなトーンにまとめています。
LDを見下ろすキッチン上部のロフトから和室側を見たところ。高窓を設けたロフトは風通しもよく、室内干しにも便利。
LDから1m上がったところに設けられた和室からの眺め。畳に座ったときに緑を楽しめるよう、バルコニーに面した地窓が設けられています。3畳とコンパクトですが、茶道を習っている長女と二女がお稽古をしたり、三女がおもちゃを広げて遊んだり、来客時には客間になったりと、大活躍のスペース。さらに、畳の下は収納になっています。
ロフトへの階段の扉は、右手のLD側の扉と兼用。
コンパクトな子ども部屋もつなげると楽しい空間に
アーチ型の出入り口がかわいい1階の子ども部屋。内部には勉強机とベッドがつくりつけられており、廊下側にはクロゼットを装備。三姉妹のために同じ形の部屋が3つ並べられています。
それぞれの個室はコンパクトですが、間仕切り戸を開けると3部屋がつながり、広々とした楽しい雰囲気の空間に。ピンク色の壁は、子どもたちが選んだものだそう。壁面にはつり戸棚が設置され、ベッド下部も収納に活用。
子ども部屋が3部屋並ぶ廊下の奥には寝室を配置。右側には洗面・浴室が配されています。
ガラスの間仕切りにより洗面・浴室をつなげることで、開放的で広がりが感じられる空間に。
壁一面の鏡が広がりを演出する洗面室。2つ並んだエレガントな洗面台は、妻が平田タイルのショールームで見つけたイタリアのブランド、チエロの「カティーノ」シリーズ。高窓からの眺めも楽しめるよう、手前の壁が斜めにカットされています。
樹木が木陰をつくり、落ち着いた雰囲気をもたらす寝室。床には音が静かで肌触りもいいカーペットを採用。
玄関からの眺め。緑を眺めながら長いアプローチを通って玄関を入った先に、また異なる緑の景色が広がります。ゆったりとした吹き抜けの階段室は、イベントなどでも使えそうです。
間取図
DATA
敷地面積/155.69㎡(47.18坪)
延床面積/121.94㎡(36.95坪)
1階/60.97㎡(18.48坪)
2階/60.97㎡(18.48坪)
用途地域/第1種低層住居専用地域
建ぺい率/40%
容積率/80%
構造/木造軸組工法
竣工/2019年8月
素材
[外部仕上げ]
屋根/ガルバリウム鋼板縦ハゼ葺き
外壁/水性アクリル弾性樹脂吹き付け
[内部仕上げ]
1階 床/ウォールナット、ロールカーペット、タイル
壁・天井/塗装
2階 床/ビニール床タイル
壁・天井/塗装
設備
厨房機器/オリジナル
衛生機器/LIXIL、チエロ
窓・サッシ/LIXIL
施工/喜立建設
設計/山縣洋建築設計事務所
撮影/松井 進 ※情報は「住まいの設計2021年8月号」取材時のものです


























