3方向に窓があるため、マンションの1階でありながら明るさは抜群。採光性の高さを生かすため、水回り以外にはドアを付けず、家全体に光が届く大きなワンルームにリノベしました。暮らしの中心はレトロ感のあるインテリアでまとめたダイニングキッチン。ダイニングキッチンからは、土間仕上げのワークスペースやリビングをが見渡すことができ、どこにいても家族の存在をさりげなく感じられます。
すべての画像を見る(全13枚)ワンルームの中心はレトロなダイニングキッチン
「間仕切りのない空間でオープンに暮らしたい」という夫妻の要望から、間取りはダイニングキッチンを中心としたワンルームに。キッチンはL字型を採用し、白いタイルにネイビーのボーダーをアクセント的に取り入れたり、収納の扉を工夫して家具のように仕上げたりと、とくにこだわりました。
「以前の住まいのキッチンが狭かったので、広々としたキッチンで料理を楽しみたかったんです。L字型のキッチンは空間を広く使えて、ふたりで料理するときもラクラクです」と妻。
収納の扉と扉の間に隙間を設けるなど、細部までレトロな雰囲気にこだわりました。壁のタイルはボーダーの太さや位置を何度も検討したそう。壁だけでなく天板も真っ白なタイル貼りにし、クラッシックな雰囲気をプラス。アメリカンテイストのレトロな雰囲気を演出しました。
キッチンは壁付けでほどよいこもり感がありますが、リビングにいる家族の気配も伝わる距離感です。
【この住まいのデータ】
▼家族構成
夫40歳 妻31歳
▼リノベを選んだ理由
住み替えを検討しているときに、リノベーションで自由に空間をアレンジできる魅力を知り、自分たちの暮らしに合う空間をつくりたいと思ったから。
▼住宅の面積やコスト
専有面積/67.20㎡ 工事費/800万円(税、設計料込み)
リビングと寝室はゆるく仕切って開放感を
スタンダードトレードのソファが置かれたリビングは、南向きの窓からたっぷりの陽が降り注ぎます。白を基調としたシンプルな空間に、端正なシルエットの家具がマッチ。
リビングに隣接した寝室にも扉は付けず、壁で仕切るのみとしました。壁は天井までつくらず、上部をあけてオープンに。
壁を立ててリビングとゆるく仕切っただけなので、開放的で風通しも良好です。「気配どころか、テレビの音などもすべて聞こえますが(笑)、慣れると全然気になりません。それよりも、この開放感を楽しんでいます」と妻。
ダイニングとつながるL字型の土間
L字型の土間でゆとりをもたせた玄関。LDKへは左右どちらからもアクセスでき、ぐるりと一周できる動線です。土間は夫の趣味であるサーフィンのボードやウェットスーツ置き場としても活躍。
土間にはワークスペースを設け、アールを描く壁でダイニングとゆるやかに仕切りました。壁や床にさりげなく飾られている革細工は、ハンドメイドが得意な夫の作品です。
たっぷりの日差しが土間にも届きます。室内のどこにいても家族の気配が感じられるのもワンルームならでは。
「この先も長くここで暮らしていくので、最新の流行を取り入れるより、本当に好きなものに囲まれて暮らせる家にしたかった」と話すHさん夫妻。ふたりの好きなアンティーク家具や雑貨が映える、のびやかなワンルーム空間が実現しました。
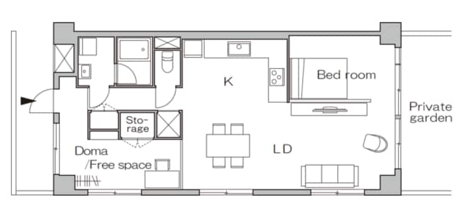
間取り(リノベーション前後)
リノベーション前
リノベーション後
設計/空間社
リノベ向き物件探し、同行内覧、資金計画、設計・施工まで一貫してサポート。「デザイン」「実用性」「コスト」の3要素のバランスに配慮した最良のプランを提案。上質感のあるデザインに定評がある。渋谷区、目黒区、世田谷区を中心とした城南エリアが得意
撮影/飯貝拓司 ※情報は「リライフプラスvol.22」取材時のものです












