広いバルコニーのある最上階の物件。加えて、最上階には一戸のみというプライベート感と、四方を窓に囲まれたオープンな空間は、まるで平屋のよう。専有面積92㎡の半分以上をワンルームLDKにあて、一角を間仕切って客室用の和室にリノベーション。ゾーニングの工夫と適所適量の収納で家事効率のよい暮らしやすさと眺望を獲得した、Sさんこだわりの住まいを見せていただきました。
すべての画像を見る(全31枚)目次:
眺めのいいLDKは思いきりオープンにキッチンを軸に効率よく動ける設計出入りしやすく、ゲストも気兼ねなく使えるサニタリー空間を彩るお気に入りの家具や照明斜めのアプローチで玄関を広く見せる!間取り(リノベーション前後)眺めのいいLDKは思いきりオープンに
「以前住んでいた賃貸マンションも、低層マンションの最上階で四方をバルコニーに囲まれていたのですが、ともかく冬は寒く、夏は熱がこもって暑い! 最上階+広いバルコニーの魅力的な環境はそのまま、基本性能がもっとしっかりした家で快適に暮らしたいと考えたのがリノベのきっかけ」と話すSさん。
リノベでは、水回りを居室の中央に集中させたレイアウトに変更。スクエアなボリュームが回遊性を生みつつ、西に主寝室、東南に客室として使われる和室と、距離を置くことにも成功。眺めのいい北東方向にLDKを配し、思いきりオープンにしたのもポイントです。
リビングの開口の外にはルーフバルコニーが広がり、くつろぎの場として活用。「室内から開口越しに新宿の高層ビル群が眺められ、なかでも夜景は絶景です」とパートナー。正面を左に曲がると玄関にアクセスします。
南向きで明るいダイニング。造作で設置したキッチンカウンターは、ダイニング側に大きく張り出して便利そう。和室の引き戸を開ければ、空間はより広々とします。
主寝室へ続く廊下兼脱衣室とDKの間は大きな引き戸で仕切られ、閉めれば壁のような印象。
南東の和室は、おもに客室として使用。壁一面のクロゼットは大容量を確保しつつ、上部を開けて圧迫感を抑えました。上部はガラス張りで、南からの採光をリビングに届けるのに活躍。
和室の建具には淡いパープルの土佐和紙を採用。土佐和紙は和紙の中でも薄くて強いのが特徴です。
【この住まいのデータ】
▼家族構成
40代男性、パートナー50代男性
▼リノベを選んだ理由
以前住んでいた賃貸マンションが、冬は寒く、夏は熱がこもって暑かったため、基本性能がもっとしっかりした家で快適に暮らしたいと考えた。
▼住宅の面積やコスト
92.26㎡(2LDK+WIC、バルコニー83.00㎡ 工事費 1400万円(税・設計料別)
キッチンを軸に効率よく動ける設計
最終プランが決まるまで長い時間がかかったS邸。暮らしの軸となるキッチンをどこに置き、どこを広く取るかなど、なかなか決まらなかったそう。「断熱工事のために、どのみち解体が必須。だからまず解体し、フルスケルトンにした床に新しい間取りをヒモで張り巡らせて(笑)、間取りや動線、視線の方向などを体感しながら進め、いわば工事と設計は同時進行! 設計の向山さんは大変だったと思いますが、体感することで納得がいきましたね」。
キッチンは家電や食器などの収納部を、本体横と背面に設置。正面奥の引き戸には洗濯機がすっぽりと収められています。
キッチンの奥は寝室へとつながる広めの廊下。仕切ると脱衣室へと早変わり。普段は開けておき、オープンに。
キッチン背面に、ゴミ容器に合わせてジャストサイズの定位置を用意。
玄関からの通路の壁面を収納にフル活用。キッチンから突き当たりの位置には、天井まで届く収納を設置。柱があり奥行きの浅いほうをパントリーに。食材は1列に並べられて見渡しやすく、ルーフバルコニーで収穫したオリーブの実の塩漬けもココに。
奥行きの深いほうは洗濯機置き場に。キッチンと至近距離で、家事も同時進行しやすい。
加熱機器と連動で作動するレンジフード(アリアフィーナ製)。「フード内部に凹凸がなくフラットで、掃除がとてもラク!」(パートナー)
タモ集成材によるキッチンカウンター。集成材なので耐久性が高く、さらに植物系オイル塗装で仕上げているので水染みにも強いそう。
キッチンカウンターの張り出し部分にコンセントを設置。「電気圧力鍋、ミキサー、スマホの充電などに活用。重宝しています」(Sさん)
出入りしやすく、ゲストも気兼ねなく使えるサニタリー
主寝室とキッチンを結ぶ通路の内側にサニタリーがあります。通路は東西の引き戸を閉めると脱衣室になり、どちらからも出入りできるため、ゲストも気兼ねなく入浴を楽しめます。
バスルームはガラス張りで、大きな窓を介して外の緑地を一望。「四方が開け、窓を浴室に生かさない手はないと思いました」とSさん。
主寝室は南西に位置。隣のウォークインクロゼットを設置したので、大開口でも室内は暖かい。
主寝室の壁の一部を張り出し、タモ材で仕上げてベッドヘッドに活用。「くぼみがあるので、飲みかけのグラスなどを置いても安心」(Sさん)
ウォークインクロゼットは既存と位置を変えず、隣り合う主寝室との調整で面積の拡大に成功。以前は南側のドアが1つしかなく熱気がこもりがちでしたが、出入口を玄関側に変更し、扉を隙間の広いルーバー引き戸とすることで通気性も向上しました。
タモ材のルーバーは質感豊かで無垢材の床ともマッチ。ウォークインクロゼットの照明をオフにすれば内部は透けて見えません。
建具のレールは木製を採用。「無垢材の床と好相性。そうした細部への配慮が素晴らしいと思いました」(Sさん)
空間を彩るお気に入りの家具や照明
白い飾り棚は入居してから購入。小さいものたちも居心地がよさそう!
どっしりとして存在感のあるたんすは山形の米沢だんす。リビングの中央に置かれ、アクセントとして機能。上下に分けて使うことも可能です。
パートナーがイギリスで20年前にオーダーし、愛用していたソファ。体に馴染むお気に入りで、思いきって輸送したそう。
8年前、ニトリで買ったダイニングセット。「椅子の背もたれのカーブが腰にやさしくて好き。値段もそれほど高くなく、お買い得でした」(Sさん)
和室とリビング間の壁をやや低く抑え、壁の上面に沿ってLEDの間接照明を搭載。梁も光を当てることで陰影を描いて魅力的に。
斜めのアプローチで玄関を広く見せる!
玄関からリビングへ続く通路。左側の収納には手前から納戸、パントリー、洗濯機がスッキリと収められています。通路右側の壁は手前から下駄箱、トイレ、キッチン収納が収まり、玄関部分が広くなるよう斜めになっています。
握り心地のいい玄関の手すりはウォールナット。床材だけでなく、トイレや収納の引き手なども合わせることで統一感も得られました。
床はウォールナットの無垢材を選択。幅が狭く、色みは濃淡取り混ぜた製品なので、採用面積は広くてもコストを抑えられたそう。
ちなみに、断熱性に関しては壁・天井への断熱材の新装とすべての窓にインナーサッシをプラスしたことで、エコポイントも最大額取得できたそう。
また夏は四方の窓を開け放して風を行き渡らせ、昨夏もエアコンはほとんど使わなかったとか。「以前住んだ家の住み心地をはるかに超えることができました。思いきってマンションを買い、リノベしたかいがありました」。
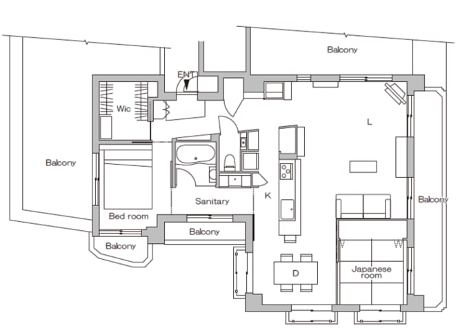
間取り(リノベーション前後)
リノベーション前
リノベーション後
設計/向山建築設計事務所
1995年生まれ。東京理科大学工学部建築学科卒業。鹿島建設建築設計部、シーラカンスK&Hなどを経て、2003年向山建築設計事務所を設立。住宅を中心に医療施設や保育園、商業施設など幅広く手掛ける。趣味はキャンプや山登りなど
撮影/松井 進 ※情報は「リライフプラスvol.32」掲載時のものです






























