様々なジャンルで活躍する方をゲストに迎えて、“すまい”にまつわるお話を伺うこのシリーズ。それぞれのライフスタイルの中で、「家に求めるもの」や「大切にしているもの」を深掘りしていきます。第13回目は、数多くのバラエティ番組に出演しているお笑いコンビ・ずんの飯尾和樹さんが登場。間取り図を見るのが趣味という、自他ともに認める「家好き」の飯尾さんの理想の家について聞いてみました。
「リビングは1階がいい!」とタモリさんからアドバイスされました!
すべての画像を見る(全6枚)「住宅雑誌をよく買うので『あ、この家また載ってる』と、分かるほどの家好きです(笑)。
街をぶらぶらするロケでは、見かけたモデルハウスにいきなり入ったりすることも。
渡辺篤史さんの『建もの探訪』も欠かさず録画してるし、家を見ること自体、一種の娯楽になってるんです」
このように話すのは、独自な世界観の芸風でバラエティに引っ張りだこの芸人・飯尾和樹さん。
現在、自他ともに認める「家好き」だが、子どもの頃にはすでにその傾向が表れていたという。
「子どもの頃、夏休みに親にコテージに連れていってもらっても、遊ぶことより、吹き抜けを見て『なんで、2階をつくらないんだろう? もったいないなぁ』なんて思ってました。
僕らが子どもの頃って、変わった外観の家が多かった。丸い窓や、階段のように段差をつけて配置された窓を見て、『家の中はどうなってるんだろう?』って、不思議でしたね」
大人になっても、家への想いは増すばかりという飯尾さん。
「今でも、建設中のマンションの前を通りかかると、間取り図を見て『あー、3LDKのうち、2部屋は死んでるな』とか、『強引な2Lだなぁ』とか、厳しめに査定したり(苦笑)、家への興味は衰えませんね」
そして芸能界の大先輩のアドバイスもあり、至った結論はシンプルなものだった。
「L字とかいろいろな形の家があるけど、やっぱり四角形の家が住みやすい。タモリさんから言われたのは、リビングは1階がいいということ。宅配便が届くたび階段を上り下りするのはキツいって(苦笑)。動線が大事なんですね」
セキュリティーの甘い家!? 実家は世田谷のシンプルな一軒家
飯尾さんの実家は、東京・世田谷。シンプルな一軒家だったという。
「子どもの頃の自分の部屋は10畳を弟とシェアして、ソファを仕切りにしてました。
階段の手すりを滑り下りる“ターザンごっこ”をよくやっては、『柱が壊れる』と父親から怒られたものです(苦笑)」
今考えるとセキュリティが甘い家だったと振り返る飯尾さん。屋根に段差があり、いかにも空き巣が入りやすそうだった!?
「高校生の頃、夜まで遊んで帰宅が遅くなったとき、そこから家に入っていたくらいですから(笑)。
ある夜、いつものように家に忍び込もうとしていたら、下から光が差してきて、目をやるとお巡りさんがいた。
『自分の家です!』って言っても、『いいから下りてこい』って……そりゃ、信用しませんよね(苦笑)」
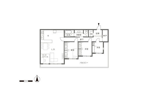
飯尾さんの理想の間取り図とは?
飯尾さんの理想の間取り図はどんなもなのでしょうか?
そこで、実際に「理想の家」の間取り図を、本人に描いてもらいました。
それがこちら。
「家は四角形がいちばん、と言ったわりに、四角じゃないんですが」といきなり計画変更!?
ただ、外壁が階段状なのは「各部屋に多くの日光を採り入れるため」と、機能と日当たりを重視する飯尾さんらしい考えが。さすが「家好き」!
飯尾さんが将来住みたい理想の場所とは?
最後に、飯尾さんの住みたい場所について聞いてみました。
すると、仕事場への移動が大変そうだけど、と前置きしたうえで、海も山もある鎌倉に住みたいんだとか。
じつは芸能界では湘南あたりに住んでいる人が多いそう。
「藤沢に暮らす友人の芸人は、『引っ越して1年は東京への移動が大変だったけど、慣れた今は最高!』って言うんですよ。歩いてすぐに海だし、自然はいっぱいで、環境のよさが移動の苦労を上回るらしい。まぁ、羽田空港に朝6時集合だと、前乗り(前泊)決定ですけどね(苦笑)」
建物について聞くと、「平屋がいい!」と即答した飯尾さん。
「料理しながら家族の顔が見えたほうがいいし、ほかの部屋に行くにもリビングを通るようにしたい。子どもが反抗期になったら嫌がられたりして(苦笑)。あと、窓も大事。人間は日光を浴びないと、脳がネガティブになるんです。それと、畳を敷きたい。今、畳の楽屋って少ないけど、横になりたいじゃないですか。平屋に20畳ほどの広いリビングをつくって、畳を敷きつめたいですね。ほとんど『道場』ですけど……」
このように、最後まで家についての話が尽きない、家が大好きな飯尾さんでした。
飯尾和樹さん お笑い芸人 1968年、東京都世田谷区生まれ。お笑いコンビ・ずんのボケ担当。バラエティ番組の雛壇トーク、ロケでは、あらゆる材料を笑いに変える独自の芸風、一発ギャグが芸人から高い評価を受ける。テレビ、ラジオで活躍する一方、映画やドラマでも活躍。2018 年には、『アンナチュラル』(TBS)、朝ドラ『半分、青い。』(NHK)など話題作に出演
撮影/山田耕司(扶桑社)





