間取り図と外観について
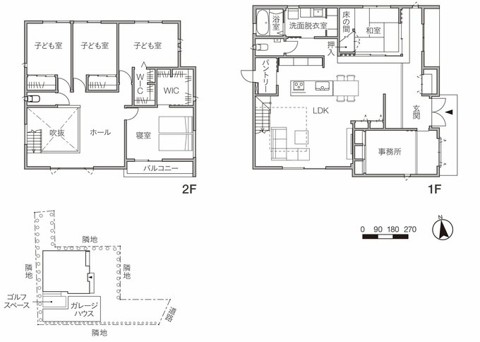
●間取り図
すべての画像を見る(全26枚)
●外観
ベージュトーンの外壁と寄棟屋根の外観。左側はガレージハウス。事務所も兼ねているため、手前に広い駐車スペースを設けています。
アプローチから坪庭を見たところ。
右側が住居用玄関で、左側が事務所。
水回りへの動線も仕切りがなく家事もはかどります
リビングの吹き抜けとオープン階段により一体化された2階には、個室を配置。子ども部屋は最小限の広さとし、テレビを置くのもスマホの持ち込みも禁止。代わりに広めのホールを設けてスクリーンを設置し、家族や友達と一緒に映画を観たりゲームをしたりできるようにしています。
リビングからDKとオープンな和室を見たところ。キッチンの裏には水回りが配されており、洗面室やトイレへの動線もスムーズ。
テレビを設置した壁面はダークグレーのタイルで空間を引き締め、間接照明を設置。奥の白い壁は、玄関との間仕切り。半分隠すことで、開放感を保ちながらLDKが丸見えになるのを防いでいます。
ワンフロアを見渡せるオープンなキッチンは、アイランド型を採用。ゆったりとした作業スペースが魅力で、妻は3口が横に並んだIH調理器がお気に入り。「コンロの奥行きが狭いので、周りにお皿などを置けて便利です」。
Yさんの家は女性が多いため、広めのカウンターを設けた洗面脱衣室。ゆったり座ってメイクができるようになっています。洗面台の横にはオープンな棚を設けており、収納量もたっぷり!
壁の一面をタイル調クロスで仕上げてアクセントとしたトイレ。奥行きの深さを生かし、手前に収納を備えた手洗い器も設置。
壁面にスクリーンとプロジェクターを設置し、ホームシアターを楽しめる2階ホール。物干しポールも設置されており、日当たりがよいので洗濯物もよく乾くそう。
2階北側に配された子ども部屋のひとつ。アクセントクロスは、各自が好きな色を選んだそうです。
朝の光を取り込む横長の2つの窓がアクセントになった寝室。デニム柄のアクセントクロスが落ち着いた雰囲気を演出しています。左手にはウォークインクローゼットを配置。
この家のデータ&使われている素材と設備
敷地面積/392.51㎡(118.94坪)
延床面積/176.58㎡(53.51坪)
1階/102.37㎡(31.02坪)
2階/74.21㎡(22.49坪)
用途地域/市街化調整区域
建ぺい率/60%
容積率/200%
構造/テクノストラクチャー工法
素材
[外部仕上げ]
屋根/陶器瓦
外壁/サイディング
[内部仕上げ]
1・2階
床/フロアシート 壁・天井/ビニールクロス
設備
厨房機器/パナソニック
衛生機器/パナソニック
窓・サッシ/YKK AP
設計/パナソニック ビルダーズ グループ(興永建設)











