建築家の事務所と自宅を兼ねた建物だったという、築25年、RC造3階建ての一戸建てを購入した林さん夫妻。家族5人がのびのび暮らせる住まいへ変えるべく、リノベーションをおこないました。RC造ならではの大空間には、つくりつけのベンチソファなど、楽しい仕掛けがいっぱい。3人の子どもがいるにぎやかな林邸におじゃましました。
すべての画像を見る(全24枚)目次:
住まいの中心はLDKのある2階。広い空間を階段でゆるく間仕切りL字型のベンチソファがある広々リビング。同フロアには回遊式の玄関も1階にはケヤキの木が伸びるインナーガーデンが!大きなケヤキが住まいと一体になった外観間取り(リノベーション前後)住まいの中心はLDKのある2階。広い空間を階段でゆるく間仕切り
傾斜地に建つ林邸は、道路の高さに合わせた2階に玄関があります。2階にはLDKも配置して住まいの中心に。木とスチールの黒のコントラストが印象的な階段を中心に、手前のリビングと奥のダイニングキッチンがゆるく分けられた開放的な住まいです。
無垢のオークフローリングと、モールテックス仕上げのキッチンが調和するダイニングキッチン。東向きの窓から朝のすがすがしい光がたっぷり入ります。
対面式キッチンは「子どもとコミュニケーションしやすいです」と妻。ペニンシュラ型のスタイリッシュなキッチンはオリジナル。
ラワン材で造作した背面収納。扉を閉めると壁のように空間に溶け込みます。大容量のこの収納のおかげで、キッチンはいつもスッキリ。
背面収納は、子どもを抱っこしていても開閉がラクにできるように扉の開き方にもこだわったとか。
【この住まいのデータ】
▼家族構成
夫(30代)妻(30代)長女(幼稚園児)長男(幼児)次男(乳児)
▼リノベを選んだ理由
家族5人でゆったり暮らせる家を探していたときに、元・設計事務所兼住居という戸建て住宅と出会い、夫がRC造の建物が好きだったこともあって即決。リノベで自分たち仕様の住まいに変えるべく、納谷建築設計事務所に設計を依頼した。
▼住宅の面積やコスト
延床面積/146.28㎡(1階:61.79㎡ 2階:61.79㎡ 3階:22.70㎡) 工事費/3600万円(税込み・設計料別)
L字型のベンチソファがある広々リビング。同フロアには回遊式の玄関も
こちらは、L字型にベンチソファをつくりつけたリビング。ソファは座面が広く、大人数でもゆったり過ごせます。床は肌触りのいいカーペットに。子どもたちが走り回っても安心です。
ベンチソファは床の段差を活用したもので、下部に間接照明も仕込みました。窓のアールと対になるように、ソファにもゆるくアールをつけて。冬も快適に過ごせるように、床暖房も設置しています。
LDKに隣接する回遊式の玄関土間。ラワン材仕上げの壁の内側はトイレで、ぐるっと回遊できるつくりになっています。ふだんは奥のシューズクローゼット側から室内にアクセス。
収納たっぷりで、多目的に使える玄関土間。北側からの安定した光が取り込めるように、壁と玄関ドアにはガラスを採用しています。
1階にはケヤキの木が伸びるインナーガーデンが!
1階には、前オーナーが植えたケヤキを生かしたインナーガーデンが! デッキを張ってベンチをつくりつけ、アウトドアリビングとして使えるようにしました。
室内とフラットにつながり、気軽に出入りできるインナーガーデン。もとは庭だったスペースで、ウッドデッキにしたことで裸足でのびのび遊べます。「夏は子ども用のプールを出したり、バーベキューをしたり、いろいろな形で楽しみたい」と夫。
1階に2部屋ある寝室のうち、北側のほうの寝室。手前のユーティリティとの間は大きなガラスの引き戸で仕切り、開放的な空間に。
寝室にはインナーガーデンに面した窓からたっぷり光が入ります。内装は、ボルドーパイン材の床と白の塗装壁で仕上げてごくシンプルに。
南側の主寝室もシンプルな内装に。インナーテラスを眺めながらリラックスして過ごせます。
各階をつなぐ、勾配をゆるやかにしたスチール階段。広くとった階段のある空間はユーティリティスペースで、衣類の収納や子どもたちのプレイスペースとして活用しています。階段の奥は主寝室。
寝室のほか、水回りにも隣接するユーティリティ。水回りの白い引き戸を閉めると壁のように溶け込みます。
2人同時に使えるように、造作の洗面台には水栓を2つ設置。浴室の間仕切りにガラスを採用したので、奥まで見通せて実際の面積よりも広く感じられます。トイレは洗濯機の奥に設置しました。
大きなケヤキが住まいと一体になった外観
ケヤキを生かしたインナーガーデンのある建物の南側。いずれはワイヤーの根元に植えたアイビー(ヘデラ)が成長し、グリーンカーテンになる予定。
傾斜地に立つモダンな外観。3階バルコニーにも小さな庭があり、前オーナーが植えた植物が生い茂っています。
北側の道路に面した2階に設けたエントランス。1台分の駐車スペースも確保できました。RC造のモダンな外観も購入を決めた理由のひとつだったそう。
家じゅうからインナーテラスのケヤキが眺められ、心地いい光と風も取り込める林邸。建物の個性と立地をうまく生かして、家族5人が楽しく快適に暮らせる住まいになりました。
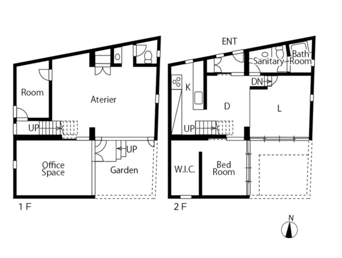
間取り(リノベーション前後)
リノベーション前
リノベーション後
設計/納谷建築設計事務所
1993年設立。住宅を中心に店舗、集合住宅、保育園まで幅広く手掛ける。兄の学さんは1961年秋田県生まれ。黒川雅之建築設計事務所、野沢正光建築工房勤務を経て独立。弟の新さんは1966年秋田県生まれ。山本理顕設計工場勤務を経て独立
撮影/小川 聡 ※情報は「リライフプラスvol.41」取材時のものです























