都心エリアを一望できるマンションの8階に住む井関さん一家。約100㎡、3LDKだった妻の実家をリノベーションして、窓に囲まれた開放的な1LDKの住まいに変身させました。窓を分断していた仕切り壁を取り除くことで、LDKからは大パノラマが。季節や景色の移ろいを存分に楽しむことができます。好みのテイストを反映したインテリアも実現できた、という住まいを訪問しました。
すべての画像を見る(全14枚)LDKの大きな窓から都心を一望!
妻が生まれ育った実家を見た夫が「リビングを広くするといいのでは」と感じたことをきっかけに、細かく仕切られた3LDKの空間を大胆にも1LDKにするリノベーションを行った井関邸。大空間へと生まれ変わったLDKは、各スペースが広くなったうえ、窓がワイドにつながり、分断されていた景色を大パノラマで楽しめるようになりました。
そんな井関邸の中でもいちばん眺めがいい窓際のコーナーには、家族の憩いの場となるダイニングスペースを配置。その隣には、子どもたちと寝転んだり遊んだりするのにぴったりな畳の小上がりをつくりました。
ダイニングスペースからは、窓越しに気持ちのいい景色を楽しめます。ルーフバルコニーにもテーブルセットを設置し、カフェ気分を味わえるように。
小上がりから見ると、よりLDKの開放感を感じられます。
「ドアがなくて室内全体がつながっているので、隅っこが少なくて掃除がしやすいです」(妻)
小上がりの天井を見上げてみると、ぽっかりとあいたブルーの円が。小上がりは天井を下げて、中央に大きな円をデザインしました。
「畳に寝て、この円を見上げるのが好きなんです」(夫)
壁づけでクローズドだったキッチンは、オープンなアイランドキッチンにしてリビングダイニングとつながりを持たせました。
「子どもたちと一緒に料理がしたい」という要望をかなえた大きなカウンターは、妻のお気に入り。キッチンとダイニングスペースが離れているため、簡単な食事がとれるようにカウンターチェアを置いています。
【この住まいのデータ】
▼家族構成
夫30代 妻30代 長女6歳 二女1歳
▼リノベを選んだ理由
長女が小学校に入学するタイミングで、妻が結婚するまで暮らしていた実家に住むことになったため。
▼住宅の面積やコスト
専有面積/102.95㎡
サニタリーはブルーのタイルで鮮やかに
二面に窓を備えた開放感あふれるサニタリー。浴室の扉をガラスにして、お風呂に入りながら窓の外の景色を眺められるよう工夫を施しました。洗面はダブルシンクに。脱衣所と洗面スペースの間にはカーテンを設置しています。
「小上がりとつながっているので最初は不安でしたが、お風呂に入るときはカーテンを閉めれば問題なし。小上がりの収納で適度に隠れるので、テレワークのときはサニタリーに机を持ち込んで仕事をしています」(夫)
サニタリーの床は個性的なブルーの六角形タイルに。手焼きで凹凸感があり、色も1枚1枚微妙に異なっているため味わいがあります。
また、サニタリーには懸垂用のバーも設置しました。「目に入るとついついやってしまう」という夫が窓の外を眺めながらトレーニング中。
身支度がスムーズ。ゆったりとした玄関ホール
ゆったりとした玄関ホールには、出掛けるときの身支度に便利なベンチを備えました。
さらに、拡張した玄関土間には、ベビーカーや自転車などを置くためのスペースを確保。靴箱の下部にはハンガーバーを取りつけているので、アウターや傘をつるして収納ができます。
一家がカナダに住んでいたときに購入したというパドルと海の絵をキッチンの壁にディスレイ。
「ほかとは全然違って、想像を超えるワクワク感があった」(夫)というプランを提案してくれたブルースタジオとともにつくり上げた井関邸。随所に夫妻が好きな海をイメージした絵も配され、空や海、風を感じながら心地よく暮らせる住まいになりました。
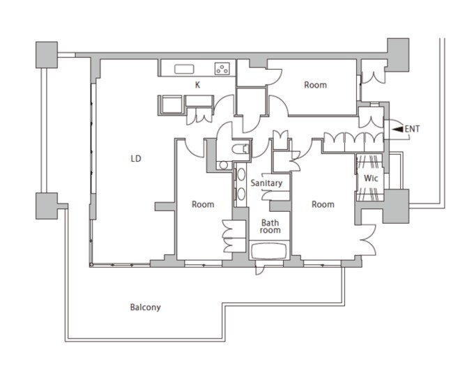
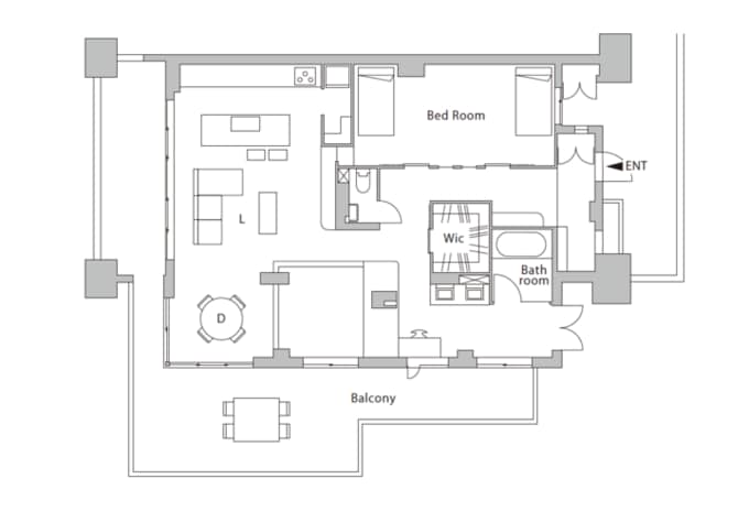
間取り(リノベーション前後)
リノベーション前
リノベーション後
設計・ブルースタジオ
中古購入+リノベーションのパイオニア的存在。不動産と設計のプロが組み、街探しから始まるリノベーションをワンストップでサポートする。アパートや団地、公共施設の再生、街のブランディングなど手掛ける分野は幅広く、実績も豊富。定額制セレクトオーダーの「TOKYO*STANDARD」も好評
撮影/山田耕司 ※情報は「リライフプラスvol.41」取材時のものです













