Hさん夫妻が住むのは築40年、約53㎡のマンション。妻はぬいぐるみ作家、夫はデザイナーという仕事柄、自宅で快適に仕事ができるよう職住一体の住まいにリノベーション。内窓に囲まれたアトリエスペースは、LDKとも玄関ともつながりを感じられるふたりのクリエイティブな仕事場です。
すべての画像を見る(全15枚)目次:
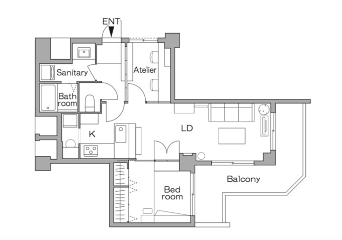
ガラス入りの内窓で仕切り、暮らしと仕事を両立できる間取りにヴィンテージな男前×カワイイのミックステイスト寝室まわりはクロスとディスプレイでチャーミングにタイルと色づかいで雰囲気をがらりと変えた玄関&サニタリー間取り(リノベーション前後)ガラス入りの内窓で仕切り、暮らしと仕事を両立できる間取りに
LDKに隣接したアトリエスペースを設けることで、クリエイティブな仕事をするふたりがスムーズに暮らしと仕事を両立できるようになりました。
ガラス入りの内窓にすることで、アトリエスペースに抜け感と明るさを与え、快適な空間を演出しています。
アトリエスペースは隣接する玄関との間にも、壁ではなくガラス入りの内窓を採用。それにより、以前は暗かった玄関にまで光が届くようになりました。
足場板を使うなど、ラフな仕上げをベースにしていますが、そこにアクセントクロスの温かみある色が調和しています。
アトリエスペースのデスクはパイン材で造作。妻の作業スペースの上部には、ひとつずつ愛情をこめて丁寧に生み出したかわいいクマたちが並びます。
【この住まいのデータ】
▼家族構成
夫39歳 妻34歳
▼リノベを選んだ理由
夫はデザイナー、妻はぬいぐるみ作家として自宅で仕事をするため、ふたりがスムーズに暮らしと仕事を両立できアトリエスペースのある職住一体の住まいにしたかった。
▼住宅の面積やコスト
専有面積/53.68㎡(2LDK)、工事費800万円(税・設計料込み)
ヴィンテージな男前×カワイイのミックステイスト
2面を窓に囲まれたLDKは光があふれています。天井は躯体コンクリートを現しにして白く塗装。足場板を使ったフローリングとともに、ざっくりとした素材の魅力が際立つ空間に仕上がっています。
キッチンは木とステンレスを組み合わせたオリジナル。壁の一部には名古屋モザイクのタイル「マシア」を採用して、ふたりの好きな世界観を表現しています。
キッチン奥にあるアール状の入り口の先に、収納量のあるパントリーを備えました。
寝室まわりはクロスとディスプレイでチャーミングに
LDKに隣接している寝室も、仕切りはガラスの内窓に。黒い十字のアクセント枠を用いて、個性的な演出を施しています。
また、左側の壁にはニッチを設け、妻コレクションのぬいぐるみ専用ディスプレイスペースにしました。
イエローの壁が印象的な寝室。お気に入りのクマたちや愛らしいアイテムで埋め尽くされ、可愛い雰囲気に。
タイルと色づかいで雰囲気をがらりと変えた玄関&サニタリー
玄関の床には平田タイルの「キャリエールアンティーク」、ホールの床には足場板を用いてラフな素材感を楽しめるように仕上げました。LDKにつながる正面のドアは、ブルーグレーに塗装しています。
左側はアトリエスペース、右側には水まわりが並びます。
パイン材で作ったオリジナルの洗面カウンターは、扉を付けずオープンに。モノの出し入れをスムーズにするとともに、コストダウンにも貢献しました。また、壁の一部に名古屋モザイクのカラフルなコラベルタイルを取り入れて彩りに。
トイレにはウィリアム・モリスのモスグリーンのクロスをチョイス。シックな雰囲気を演出しています。
素材と色にこだわってつくり上げたクリエイティブ空間。「ともするとメルヘンになりがちなところを、リノベーション会社の持ち味である男前なインテリアとうまくミックスできたと思います」と妻。感性を刺激し合い、創作活動に励む夫妻にとって、この魅力的な住まいはインスピレーションの源となっているようです。
間取り(リノベーション前後)
リノベーション前
リノベーション後
※情報は「リライフプラスvol.36」取材時のものです
設計・施工/フィールドガレージ 撮影/松井 進














