間取り(リノベーション前後)
すべての画像を見る(全20枚)リノベーション前
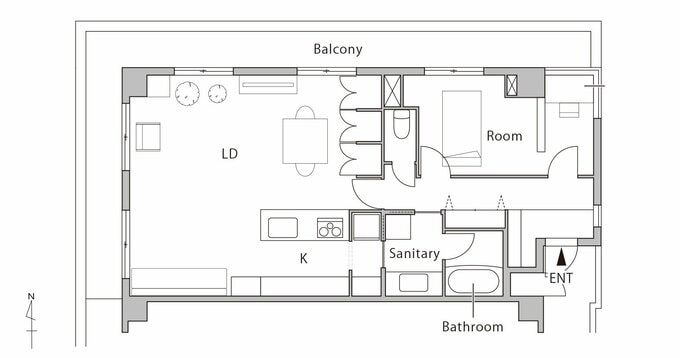
リノベーション後
西側の個室を撤去して広いリビングのある1LDKに。浴室と洗面室の配置を入れ替え、キッチンの隣にパントリーを新設して回遊動線を確保しました。洗面室から物干し場となるバルコニーに直行できるので、洗濯などの家事もラクです。
天井はコンクリート現し。フレキシブルに使える間取りに
ソファを置いた一角に配されていた個室を撤去し、開放感を高めたリビング。天井はコンクリートの素材感を味わえるように現しにし、白く塗っています。窓からの眺めもよく「夕焼けがきれいなので、子どもと一緒によく眺めています」と妻。
寝室のコーナーは書斎に。間仕切り代わりにしているのは、施工で余ったフローリング材。
寝室を2室に区切れるように、室内ドアは2か所に設置。写真左側に見える間仕切りの向こう側が書斎コーナー。
造作した洗面台は、掃除のしやすさに配慮して、人造大理石のカウンターや壁づけタイプの水栓を選択。ゆったり使えるように、間口いっぱいにカウンターを配してスペースを確保しました。
下部は出し入れしやすいオープン収納に。上段には化粧品などをしまい、下段は洗剤などのストック置き場に活用しています。
トイレは便器や内装を刷新。写真や花を飾る棚や、真ちゅう製のペーパーホルダーを取りつけ、清潔感と上品さを両立。
住まい手に聞きたいこと、リアルにインタビュー
●リノベのきっかけと物件探しは?
1LDKの賃貸マンション暮らしだったJさん夫妻。妊娠を機に、子どもが生まれると手狭になると思い、フルリノベーションありきで中古マンションを購入することに決めました。
物件探しの条件は、家族3人がゆったり暮らせる70㎡以上の広さ。さらに見晴らしがよく、かつ最上階以外のフロアであること、広いルーフバルコニーがあることも条件に。
「庭感覚で使えますし、食事しながら家族でくつろげたら楽しいだろうなと思って」と妻。
幸いにもこれらの要望を満たす現在の物件をリノベ不動産から紹介され、眺望のよさや開放感が気に入って購入を決めたそう。
●リノベーション会社はどう選んた?
「物件探しから依頼できる会社がいいなと思い、リノベ不動産に相談してみることに。ローンなどのサポートをしてもらえる点にも安心感を感じました」(夫)。
また担当デザイナーの高橋大さんと夫が、学生時代の先輩や仕事を介してつながりがあるとわかり、巡り合わせを感じて依頼することに決めたそう。
購入後は、商業系のインテリアデザイナーである夫がつくった基本プランをもとに、高橋さんが納まりよく図面に落とし込み、内装・設備選びなどをサポート。「アイデアをうまく生かしてよい形にまとめてもらって、満足しています」と振り返ります。
●住んでみて感じたこと、よかったことは?
家族構成や暮らしの変化に対応するため、フレキシブルに使える間取りに注力したJさんの住まい。寝室を2室に区切れるようにしたり、LDKにあった個室を撤去してワンルーム感覚で使えるようにしています。
妻は「広いリビングにしてよかったです。息子も走ったり寝転んだりと楽しそうに遊んでいます。広いルーフバルコニーでは、ときどきバーベキューも楽しんでいます」と、充実した日々を過ごしているそう。
夫はといえば、「ルーフバルコニーに子ども用のブランコやハンモックを置いたりして、もっと楽しいスペースにしていきたい」と計画中です。
「小さな光がポツンと浮かび上がるデザインにひかれて購入しました」と夫が話す、真ちゅうのブラケット照明は、職人の手でひとつひとつていねいに仕上げられたもの。廊下にリズミカルに取りつけて、光の演出でゲストの目を楽しませる工夫をしています。
この家のデータ&使われている素材と設備
建物規模:地上8階建ての6階
素材
玄関
床:タイル 壁、天井:クロス
玄関ホール、主寝室
床:3層オークフローリング 壁、天井:クロス
LDK
床:3層オークフローリング 壁:クロス、一部躯体壁+塗装 天井:躯体現し+塗装
洗面脱衣室、トイレ
床:フロアタイル 壁、天井:クロス
設備
キッチン
オリジナル
コンロ:ノーリツ
レンジフード:HEJ
水栓:クリンスイ
サニタリー
ユニットバス:パナソニック
洗面ボウル、洗面水栓:カクダイ
トイレ:TOTO
設計・施工:リノベ不動産
恵比寿に本部を置き、全国に200拠点を超える加盟店を持つ国内最大級の中古購入+リノベーションネットワーク。物件探し、設計・施工、ローンをまとめてコーディネートする「ワンストップリノベ」を得意とする。2020年度「中古仲介+リノベーション」ワンストップサービス市場シェア1位。イベントや完成見学会、セミナーなどを随時開催










 
     
     
     
     
     
     
     
     
     
     
     
     
     
     
     
     
     
     
     
     
           
           
           
           
          