キャットウォークにネコ用階段&トイレと工夫が各所に
すべての画像を見る(全17枚)コンクリート板の化粧材をアクセントウォールにしたリビング。テレビを観ていてもネコの姿が目に入るように、キャットウォークを配置しました。
オリジナルのローテーブルは、天板の穴からネコが跳び出したり、足跡モチーフの透かし彫りから脚を出したりでき、テレビを観ながら一緒に遊ぶのにちょうどいい感じ。
ネコ用トイレはカウンター収納内に。
オープンスペースの左右にあり、ネコは側面の出入り口から行き来できます。トイレ掃除のしやすさに配慮して正面の扉は開閉式にしてます。
LDKの間仕切り戸は、虎の透かし彫りが入った欄間がアクセント。夫が選んだ年代物の欄間を扉に仕立て直したもので、間口1600㎜の一枚扉でも開閉が軽やかです。
キッチンはオープンなカウンタータイプに。ダイニングテーブルやベンチもオリジナル。家具も含めて家づくりを設計士に依頼していたことから、設計士のサプライズでベンチにネコの足跡が彫られていたそう。「かわいくて気に入りました」と妻。
調理中もネコの様子がわかるキッチンは、食洗器などを備えて機能性をアップ。
ネコ用階段を兼ねたオープン棚もオリジナル。
キッチンやサニタリーにもさりげないこだわりが
調味料が取り出しやすいように、スライドできるオープンなスパイスラックを造作。ラックの向こう側にはバルコニーに出られる勝手口があるため、ネコの飛び出し防止も兼ねています。
洗面脱衣室は、一新した浴室と並べて配し、スペースを広げてゆったりとした使い心地に。自然素材の温もりが味わえるように、洗面台も木製カウンターを用いたデザインに変更しました。
玄関土間にはネコのキャリーバッグもしまえる大きな収納を造作。収納の引き手は、カツラの木にネコの足跡を彫り込んだ、木工芸家のオリジナルを採用。角の出隅部分にも彫刻が!
トイレからも欄間の虎が見えるように、遊び心からガラス窓を設置。LDKの引き戸が開くたびに虎が登場する仕掛け。床の近くには美しい組み子の欄間も取りつけて和の演出。
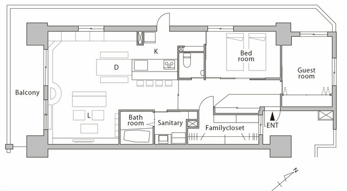
間取り(リノベーション前後)
リノベーション前
リノベーション後
室内ドアを開ければ家がひとつながりに。玄関、LDK、寝室に回遊性を持たせたので、ネコも人も移動しやすく暮らしやすくなりました。抜け毛対策のため、玄関を入ってすぐ左手にあるファミリークロゼットだけは立ち入り禁止に
DATA
建物規模:地上14階建ての12階
専有面積:88.85㎡
設計期間:2020年2月~3月 工事期間:2020年4月~6月
素材
玄関
床:大谷石 壁:オガファーザー 天井:クロス
玄関ホール、LDK、主寝室、ゲストルーム、ファミリークロゼット
床:オーク無垢フローリング 壁:オガファーザー 天井:クロス
洗面脱衣室、トイレ
床:オーク無垢フローリング 壁、天井:クロス
設備
キッチン
ekrea
サニタリー
ユニットバス:LIXIL
洗面ボウル、洗面水栓:セラトレーディング
便器:LIXIL
手洗いボウル、手洗い水栓:TOTO
設計・施工:増木工業
2022年で150周年を迎える老舗企業。住み手に寄り添い、要望より上を目指す提案に定評がある。断熱性の向上による優れた温熱環境や、経年美化を促す自然素材を生かした、機能美とデザインを融合させた家づくりが得意。マンションリノベ、戸建ての新築・リフォームの設計・施工を数多く手がける












