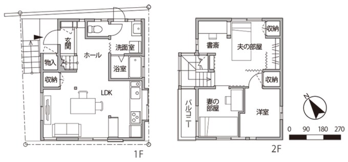
富士山も見える2階リビングは家事もはかどります。子が独立、シニアの戸建てリノベ 記事に戻る スクロールで次の画像 (画像 1/19) この記事を読む (画像 2/19) この記事を読む (画像 3/19) この記事を読む (画像 4/19) この記事を読む (画像 5/19) この記事を読む (画像 6/19) この記事を読む (画像 7/19) この記事を読む (画像 8/19) この記事を読む (画像 9/19) この記事を読む (画像 10/19) この記事を読む (画像 11/19) この記事を読む (画像 12/19) この記事を読む (画像 13/19) この記事を読む (画像 14/19) この記事を読む (画像 15/19) この記事を読む (画像 16/19) この記事を読む (画像 17/19) この記事を読む (画像 18/19) この記事を読む (画像 19/19) この記事を読む