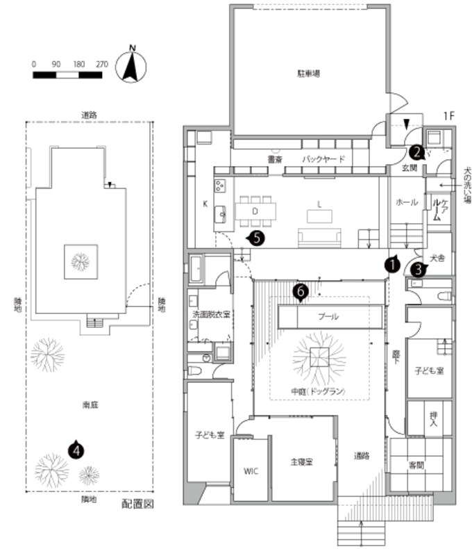
愛犬と幸せに暮らせる、中庭プランの平屋の家。ケアルームや専用プールも 記事に戻る スクロールで次の画像 (画像 1/21) この記事を読む 中庭のプールで愛犬とくつろぐTさん (画像 2/21) この記事を読む (画像 3/21) この記事を読む (画像 4/21) この記事を読む (画像 5/21) この記事を読む (画像 6/21) この記事を読む (画像 7/21) この記事を読む (画像 8/21) この記事を読む (画像 9/21) この記事を読む (画像 10/21) この記事を読む (画像 11/21) この記事を読む (画像 12/21) この記事を読む (画像 13/21) この記事を読む (画像 14/21) この記事を読む (画像 15/21) この記事を読む (画像 16/21) この記事を読む (画像 17/21) この記事を読む (画像 18/21) この記事を読む (画像 19/21) この記事を読む (画像 20/21) この記事を読む (画像 21/21) この記事を読む