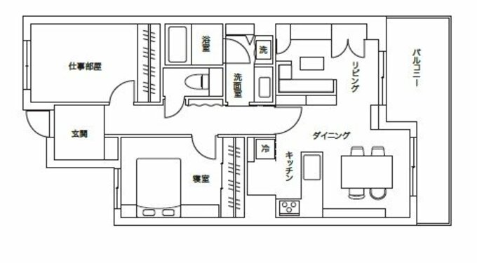
デンマークの暮らしを取り入れた家づくり。苦手な家事は手放し、家族や友人との時間を優先 記事に戻る スクロールで次の画像 (画像 1/14) この記事を読む アートをたくさん飾っているデンマークの親族や友人の家に触発され、リビングの壁をギャラリーウォールに (画像 2/14) この記事を読む 間取り図 (画像 3/14) この記事を読む (画像 4/14) この記事を読む (画像 5/14) この記事を読む 近所の友人が昼食を食べに来たり、おかずを持ち寄ったり (画像 6/14) この記事を読む (画像 7/14) この記事を読む (画像 8/14) この記事を読む (画像 9/14) この記事を読む (画像 10/14) この記事を読む (画像 11/14) この記事を読む (画像 12/14) この記事を読む (画像 13/14) この記事を読む (画像 14/14) この記事を読む