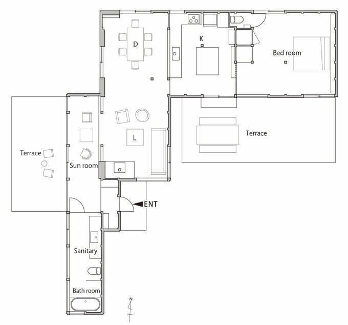
築約75年の平屋リノベーション。増築したサンルームからは相模湾を一望できます 記事に戻る スクロールで次の画像 (画像 1/16) この記事を読む 相模湾を一望するサンルーム。さえぎるもののないオーシャンビューを眺めながら、ゆったりとした時間を過ごすことができる (画像 2/16) この記事を読む (画像 3/16) この記事を読む 増築したサンルームの先にあるテラスでは、天候や時間によって刻々と表情を変える自然との一体感が味わえる (画像 4/16) この記事を読む 「どうしても設置したかった」と、フィリップさんが熱望したリビングの薪ストーブ。エアコンと違って輻射熱の効果がとても大きく、体をしっかり温めてくれる (画像 5/16) この記事を読む 既存の梁や柱を生かすことで、木の温もりや懐かしさを感じられる住まいに (画像 6/16) この記事を読む (画像 7/16) この記事を読む (画像 8/16) この記事を読む (画像 9/16) この記事を読む (画像 10/16) この記事を読む (画像 11/16) この記事を読む (画像 12/16) この記事を読む (画像 13/16) この記事を読む (画像 14/16) この記事を読む (画像 15/16) この記事を読む (画像 16/16) この記事を読む