子が独立したあと、住まいの見直しを強いられるというのはよくある話です。今回紹介するケースは、家の老朽化をきっかけに、夫妻ふたりの住まいにぴったりなリノベーションを行ったというもの。長年温めていた夢のプランをかなえるチャンスと感じ、築43年の家を耐震補強。光と風があふれる空間へと生まれ変えました。
すべての画像を見る(全19枚)目次:
LDKを1階から2階へ。空を身近に感じる開放的な住まいへとリノベ区の耐震改修支援制度を利用し、助成金も水回りと家事室、物干し場を2階に。階段移動なしでラク1階は引き込み戸を使ってオープンに。家の端から端まで見通せて、広々!間取図(リノベ前後)LDKを1階から2階へ。空を身近に感じる開放的な住まいへとリノベ
坂本さんの家 東京都 家族構成/夫61歳 妻59歳
設計/水石浩太建築設計室
工事費 1200万円
《この家のこだわりポイント》
- LDKを2階に移して富士山の眺めを楽しむ
- 耐震補強して梁を表した天井の高いLDK
- 家事がすべてワンフロアでできる
- 風通しがよく視線が抜けて開放感がある
西側のベランダから気軽に富士山の眺めが楽しめるようになったLDK。空が見える窓辺のソファは妻のお気に入りの居場所。
2階の既存の柱を取り払い、直交させた新しい梁で補強して、広がりのある無柱のワンルームに。キッチンには食器棚をつくらず、オープンな棚やキッチン本体の収納を活用。
表しにした梁の下には、照明器具を自由に設置できるダクトレールを取りつけました。梁上の間接照明は勾配天井をより高く見せる効果が。
キッチンを明るくさわやかに照らすトップライト。開けると天井付近の熱気が排出され、家中に風が流れます。
区の耐震改修支援制度を利用し、助成金も
家が傾き始めている!これが築43年の建て売り住宅を坂本さんがリノベーションしたきっかけでした。
「床に置いたボールが転がるようになり、雨漏りもひどかったんです」(妻)
早速工事を検討しましたが、じつは今回が20年ぶり2度目の改築。子どもたちもすでに独立し、これを機に夫妻の夢をかなえることに決めました。
要望は1階LDKと2階の個室プランを入れ替え、2階LDKのベランダから富士山を眺めること。妻は当初、眺望を楽しむ2階ロフトを考えていましたが、区の耐震改修支援制度を利用して助成金を受けるには、規定の基準を満たす必要があり、最終的に予算面を優先させたといいます。
実際に外壁だけを残して建物を解体したところ、構造材の腐りなどが見つかり、工事は部材の交換をともなう大がかりなものに。2階LDKでは天井と柱を取り払い、既存の梁と新しく補強した梁を表しにして、のびやかで広がりのある居場所に仕上げています。
「浴室・洗面室をLDKと同じ2階にしたのは大正解でした。朝日が当たって風通しもいいので、以前のようにカビが生えないし、家事がワンフロアで完結します」と共働きの妻は大喜び。
夫妻の個室がある1階も、必要最小限の間仕切り壁と建具の工夫で、風が流れる見通しのいい空間になりました。「大好きな空が近くなってうれしい」と妻。2階LDKプランは大成功です。
水回りと家事室、物干し場を2階に。階段移動なしでラク
道路に面する西側に向かって開いたLDKのバルコニーと階段室。視線が空へ向かい、開放的になりました。右奥は家事・洗面室。
天井に青森ヒバを張ったハーフユニットの浴室。
キッチン裏は家事スペースと洗面室。妻が勤務するパン屋さんのポップづくりやパソコン作業、アイロンがけなどもここで。
階段室のトップライト(既製品)は、初回リノベーションで設置したお気に入り。「2階LDKのデメリットは重い買い物を持って上がること。でも、これなら空が見えて移動が楽しくなります」(妻)。
階段下スペースを活用したトイレ。階段の蹴上げを半透明にしてトップライトの間接光を取り入れ、明るい空間に。
1階は引き込み戸を使ってオープンに。家の端から端まで見通せて、広々!
アートとパンづくりが好きな妻の部屋。
かつてはプロを目指して野球一筋、現在は地域の少年野球の監督を務める夫の部屋。奥の納戸との間仕切りは設けずオープンに。
玄関から正面奥に見える妻の部屋の窓まで見通せる1階。壁や間仕切りは必要最小限にとどめ、開け放せる引き込み戸やガラス欄間を使って視線の行き止まりをなくしています。左側は夫の部屋。
外観はタイル貼りだった玄関ドア回りを木製ドアが映える白い壁に変更。雑然とした庇も外壁になじむようにつくり替えました。2階バルコニーには経年変化の味わいが出る金属+木製の素材を使用。
以前の倍以上の広さになった玄関。階段室と連続させて、ゆったりとした印象に。
ポーチの一段下に新設した花壇。造園は妻が担当。
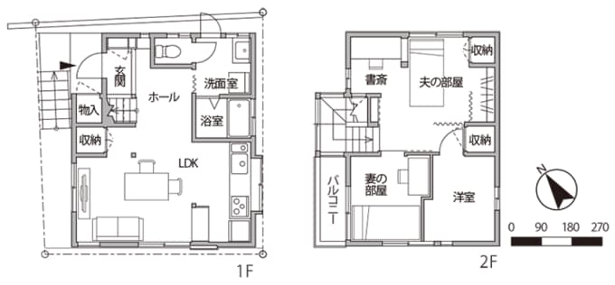
間取図(リノベ前後)
リノベーション前
リノベーション後
戸建てリノベーションの注意点は、解体してみないと構造材の不具合がわからないところ。外壁だけを残した状態で、水回りや窓回りの5か所で雨漏りが原因と思われる構造材の腐りが見つかり(写真左)、交換しました。
DATA
敷地面積/55.81㎡(16.91坪)
延床面積/80.32㎡(24.34坪)
地階/16.56㎡(5.02坪)
1階/33.12㎡(10.04坪)
2階/30.64㎡(9.28坪)
用途地域/第1種住居専用地域
建ぺい率/60%
容積率/200%
構造/木造軸組工法
リノベーション竣工/2019年2月
素材
[外部仕上げ]
屋根/ガルバリウム鋼板縦ハゼ葺き
外壁/吹き付け再塗装
[内部仕上げ]
1階・2階 床/カバ桜
壁・天井/塗装
設備
厨房機器:TOTO
衛生機器:LIXIL
窓・サッシ:LIXIL
施工/北陸建設
照明設計/中島龍興照明デザイン研究所
設計/水石浩太(水石浩太建築設計室)
撮影/大槻 茂


















