まるでベーカリーショップのようなIさん宅のキッチン。「作業に集中したい」という料理好きの妻の希望でクローズドキッチンを選択しましたが、黒いフレームのガラス建具のおかげで閉塞感はありません。I邸では、部屋の間仕切りに「建具」を採用することで、臨機応変に使える開放感な住まいを実現しました。さっそく工夫の詰まった住まいを見せていただきましょう。
すべての画像を見る(全19枚)キッチンに採用した黒い建具が空間の引き締め役に
黒と白のガラス建具が並んだI邸のリビングダイニング。黒い建具の奥はキッチン、白い建具の奥は寝室です。東西に長いリビングダイニングは、南面からの光がたっぷり入り、建具を介してキッチンと寝室まで光を導きます。
キッチンは施主支給した本格仕様のステンレス製。石積みのような雰囲気のタイル貼りの壁が雰囲気満点です。コンロの奥には妻愛用の卓上型のガスオーブンが。
棚を取り付けたキッチン内部の壁面。タイル仕上げの壁と相まって、外国のカントリーハウスのような雰囲気です。愛用の道具が並ぶ様子も美しいディスプレイのよう。
既存の収納スペースを生かしてつくったニッチ。アーチの開口や色をつけた壁の効果で、並べたものがよく映えます。
キッチンにいても、ガラス建具を介して外の緑が目に入ります。「建具は臨機応変に開けておくことも多いです」と妻。
【この住まいのデータ】
▼家族構成
夫44歳 妻46歳
▼リノベを選んだ理由
自分たちの思うような住まいにしたいと、中古物件購入×リノベを選択。以前に都内のUR賃貸住宅に暮らした経験があり、管理体制や環境のよさを気に入っていたため、住宅・都市整備公団(当時)が建てた現在の物件を購入した。
▼住宅の面積やコスト
専有面積/98.70㎡
リビング隣接の寝室は白い建具で間仕切り
リビングダイニングの床はアンティーク仕上げを施したオーク材のフローリング。壁と天井は漆喰仕上げ。室内にナチュラルで味わい深い雰囲気が漂います。ソファ横の白い建具の奥が寝室。
寝室の間仕切りに使ったのは上吊り式の建具。床面にレールが出ないため、開放したときの一体感がアップします。寝室の奥には、廊下側へ抜けられるウォークインクローゼットが。
寝室の奥に設けたウォークインクローゼット。廊下側からもアクセスできる回遊動線のおかげで身支度がスムーズにできます。
フィックス窓を組み合わせて親子ドア風に仕上げたリビングダイニングのドア。ドアを入ってすぐ左手にウォークインクローゼットの入り口があります。
浴室もガラスの間仕切りで開放感たっぷりに
管理規約で浴室を在来工法でつくることはNGでしたが、デザインや仕上げにこだわりたかったので、オーダーユニットバスを採用。洗面室との間をガラスで仕切り、開放感のある空間に。洗面台は、壁付けの水栓と実験用シンクを組み合わせて造作しました。
洗面台の背面側の洗濯機横にはオープン棚を設置。出し入れがしやすく、通気性にも優れています。
トイレはタンクレスを選んで壁面をすっきりさせ、上部を有効活用しています。床はシックなタイル、壁と天井は漆喰で仕上げました。左手には手洗いカウンターも造作して使いやすく。
居心地のいい夫婦それぞれの個室も確保
玄関を入った左右にある個室は夫婦それぞれの部屋。白でまとめた妻の部屋は、コーナー窓から敷地の緑が眺められます。パソコンデスクにしているのはアンティークのミシンの脚部。
壁一面に本棚を造作した夫の部屋。出窓のカウンター部分には既存の上からフローリング材を張ってリフレッシュしました。
玄関のたたき部分のタイルはドアの色とそろえました。照明の光が漆喰仕上げの壁と天井にニュアンスをプラスし、心地いい雰囲気を醸し出します。
ガラスの建具を上手に生かしたリノベで、明るく開放的な住まいを手に入れたIさん夫妻。約98㎡の広い空間をゆるやかに間仕切ることで、居心地のよさと機能性ももたらされました。
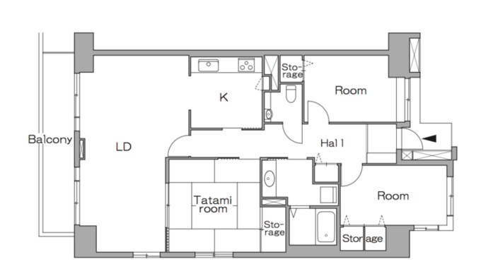
間取り(リノベーション前後)
リノベーション前
リノベーション後
設計・施工/空間社
設計・施工、物件探し、希望すれば物件購入前の同行内覧、さらにライフプランニングまで、家づくり全体をサポート。シンプルかつ上品なデザインに定評がある。とくに東京の世田谷区、目黒区、渋谷区などの城南エリアを得意とする
撮影/水谷綾子 ※情報は「リライフプラスvol.21」取材時のものです


















