猫と一緒に暮らすなら、運動ができて、安全で、さらにくつろげる居場所をつくってあげることが大切です。では、どんなふうすれば、猫が快適に過ごせる家になるのでしょうか。猫を愛してやまない日刊住まいライターは、飼っている4匹が伸び伸びと暮らせるよう、様々な工夫を凝らした家を建てました。お互いの気配が感じられる吹き抜け、キャットウォークやキャティオなど、猫が快適に過ごすプランを盛り込んだそう。こだわりのアイデアを紹介。
すべての画像を見る(全9枚)目次:
人と猫、お互いの様子がすぐに分かる吹き抜け構造の間取りに事故防止のためリビングと切り離したキッチン脱走防止のため、キッチンや玄関に続く扉は重ための引き戸外の空気を楽しめて防犯にも役立つキャティオ猫の運動不足とストレスを解消するキャットウォークと猫専用窓くつろげるように設置した猫ちぐらやクッション人と猫、お互いの様子がすぐに分かる吹き抜け構造の間取りに
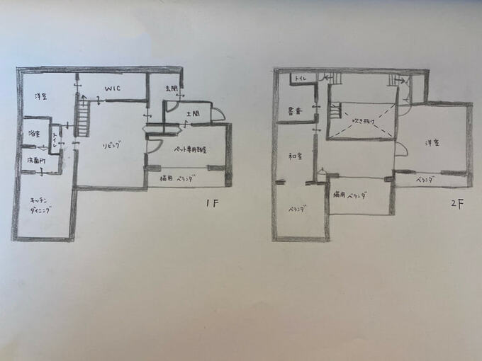
こちらが筆者宅の間取りです。猫は1階のリビングとペット専用部屋、中間フロア、そして2階の廊下を自由に行き来しています。上の階にいる猫の様子が見えるように、また聞こえるようにしたいという思いから、吹き抜け構造にしました。
しかし、住み始めてすぐのころに中間フロアの手すりから猫が落ちたことがあります。そのときはケガもなく大事には至らなかったのですが、猫はとにかく高いところが好き。現在は中間フロアの手すりから2階の床にかけて網を張っています。
事故防止のためリビングと切り離したキッチン
キッチンは、事故や誤食など猫にとって危険がたくさんある場所。賃貸に住んでいたときは、事故につながらないかヒヤヒヤしながら料理をしていました。
猫がキッチンに侵入しないようにすることが、家を建てるときの筆者宅の重要課題でした。家を建てるときにキッチンをリビングと切り離したことで心配事が減り、料理中のストレスもなくなりました。
脱走防止のため、キッチンや玄関に続く扉は重ための引き戸
猫はドアノブに飛びついて開き戸を開けてしまいます。また、軽い引き戸も、隙間があればツメで簡単に開けられます。せっかくキッチンを切り離しても扉を開けられてしまったら意味がないため、リビングからキッチンに続く扉を重ための引き戸にしました。
また、帰宅して扉を開けたときに猫が脱走するのを防ぐため、玄関に続く扉も同様に重ためのタイプにしたので安心です。
外の空気を楽しめて防犯にも役立つキャティオ
筆者宅の猫は完全室内飼いなのですが、4匹とも子猫のときは野良猫でした。そのため、「たまには外の空気を感じさせてあげたい!」と考えてつくったのが、細かい格子つきのベランダ。家の外観はやや重々しい雰囲気になりますが、外からの侵入を防げて防犯にも役立っています。
1階のペット専用部屋と2階の2か所にあり、天気がよい週末は持ち運び用のゲージを置いてキャティオ(猫のための屋外空間)として活用しています。
猫の運動不足とストレスを解消するキャットウォークと猫専用窓
猫をもっと楽しませてあげたいと考えてつくったのが、キャットウォークと猫専用窓です。キャットウォークを2か所、猫専用窓を3か所につくりました。
写真は中間フロアへのキャットウォークと猫専用窓。猫にとって楽しいようで、頻繁に使ってくれています。猫専用窓はプラスチックのガタンという音が怖いのか、使っているのを目撃したのは5年間で数回のみ。そろそろプラスチックを外して使うことを検討中です。
くつろげるように設置した猫ちぐらやクッション
猫が好きなところでくつろげるように、猫ちぐら(ワラを編んでつくったペットハウス)を2か所、クッションを4か所に設置しています。猫ちぐらは猫が好む適度な狭さでできており、猫がお気に入りの場所です。
家を建てたときに購入したソファは、猫が気に入って寝たりツメを研いだりするため、今では完全に猫専用です。
猫好きなら「猫も快適に暮らせる家づくりがしたい」と思う人も多いはず。猫にどう過ごして欲しいかを思い描いて、家づくりに取り入れてみてくださいね。








