家好き芸人・アンガールズ田中卓志さんが、個性豊かな建築家の自邸を突撃取材!田中さんは広島大学工学部第四類建築学部卒業。大学では建築の構造を研究し、得意分野は日本建築だそう。今回訪れたのはスキップフロアで家全体をゆるやかにつなげた、建築家・野上真太郎さんの住まい。土地の大きさや容積率を加味し、あえて吹き抜けは設けず、階層をずらすことで一体感を持たせています。田中さんは「アスレチック的で面白い」と感じたようです。どんな住まいなのか、さっそく見せていただきましょう。
すべての画像を見る(全16枚)高い天井とスクエア窓で開放感たっぷりのLDK
大きな切妻屋根をもつ住まいにお邪魔すると、家の中にもうひとつの家があるようなユニークな形状のLDKが。
「共働きのため、限られた時間を子どもたちと一緒に楽しく過ごせるように設計したんです」という野上さんの話を聞いて、「それで個室が階段の途中にあるような形になったんですね!」と納得の田中さん。
キッチンの床を約40㎝下げたことで、リビングダイニングは掘りごたつのように床でくつろぐこともできるように。ダイニングテーブルは、以前から使っていたものの脚を取って、天板を再利用しました。
正面の階段上の空間は子ども部屋。この子ども部屋からはリビングを一望できます。リビングの一番高いところは4mほどの高さがあり、とっても開放的。
「この正方形の出窓、外から見たときはアクセントになっているし、ちょうど向かいの家と家の間の位置にあって、視線が遠くまで抜けるんです。居場所としても快適で、ずっとこうしていられる(笑)」と、窓辺にちょこんと座る田中さん。
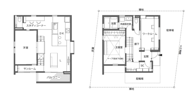
【この住まいのデータ】
▼家族構成
40代夫婦 長女小学生 次女保育園児
▼住宅の面積やコスト
延床面積/100.90m²(1階47.71m² 、2階53.19m²)
スキップフロアならではの遊び心がちらり
子ども部屋の右側にはスタディコーナー、左側にはサンルームを配置しました。田中さんがいるのは子ども部屋。小窓からスタディコーナーを見下ろせます。
反対側の小窓をのぞくと、明るいサンルームが。子ども部屋は将来2部屋に分けられるようになっています。
半階下りると、1.5階部分に位置する寝室があります。
「ズレによっていろんな場所が見えてアスレチック的で面白いし、コミュニケーションが図れるのもいいですね」(田中さん)
また、寝室には容積率に含まれない床下収納を設けました。「寝室と同じ広さだから、かなり物が入りますね。しかも、収納だとわからないところがいい!」と田中さんは感心。
あちこちに視線が届くオープキッチン
スタディコーナーとキッチンはひとつながりになっているので、キッチンからはスタディコーナーで勉強する子どもたちにも目が届きます。キッチンはオープンタイプですが、手元を隠しているので見た目はスッキリ。垂木を表しにした天井がダイナミックな空間です。
キッチンからはリビングダイニングも一望。リビングの床下も段差を利用して収納にしています。
玄関から土間でつながるアトリエと収納スペース
玄関を入ると正面に階段、その先に寝室があります。引き戸付きなので、来客時などには閉じることもできます。
玄関左側には家族用の内玄関を兼ねるシューズクローゼットがあり、コートなどの外着を掛けるスペースも。さらにその奥は、寝室の床下収納の出入り口につながっています。
玄関右側は、土間でつながる野上さんのアトリエスぺース。
「家で仕事をするときは普通にテーブルでやっているから、こういう部屋が欲しいです。黒い土間もカッコいい」(田中さん)
現しにした垂木と高い天井が印象的な、木のぬくもり溢れる野上邸。
「子ども部屋や寝室の外側の壁には濃い色の木が使われていますが、着色ではなく、ポプラの板材を炭化処理したものだそう。フローリングメーカーに頼んでつくったそうです。こだわりが感じられるし、存在感があってカッコよかったです!」(田中さん)
間取図と断面図
【取材協力】アトリエn.o. 一級建築士事務所2013年設立。住宅を中心に設計を行っており、住まい手のライフスタイルに合わせた空間を提案。土地が決まっていない場合は、土地探しから相談も可能
撮影/山田耕司 ヘアメイク/石川真里
※情報は「住まいの設計2021年4月号」取材時のものです















