歯ブラシやスキンケアグッズ、ドライヤー…さまざまなものが雑多になりがちな洗面台。この事態を避けるため、昨年に家づくりをしたライターは、メーカー製ではなく、造作の洗面台を採用しました。収納力と機能性を上げるためにこだわったことを語ります。
すべての画像を見る(全5枚)使いやすさのカギは収納の配置と動線設計
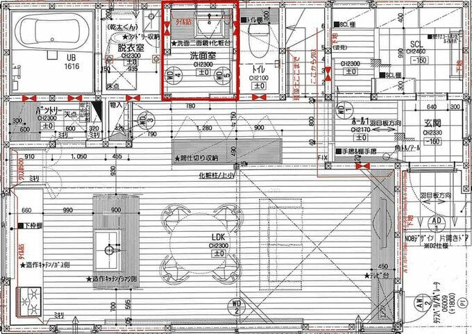
筆者は、2024年、地場の工務店に依頼して、延べ床面積29坪の2階建ての家を建てました。この家で妻と1歳になる息子の3人で暮らしています。1階にはLDK、パントリー、洗面所、浴室、トイレがあります(1階平面図参照)。
トイレと脱衣室の間にある洗面室の広さは2畳。リビングとの間には建具がないので、できるだけ整理された状態を維持できるように、洗面台には多くの収納スペースをつくりました。
洗面室というものは、滞在時間そのものは短いですが、一日の使用頻度はけっこうあるものです。ここが雑然としていると、小さなストレスが積み重なります。いちいち歯ブラシやシェーバーを探したり、掃除をするにもいったんものを片付けないといけなかったり…。
洗面台で使うものはいろいろあります。ほとんどは飾っておくようなものではなく、実用品。できるだけ隠したいものが多いですし、なるべく片付けを簡単にできるようにしておかないと、すぐに散らかってしまいます。
決して広くはないわが家の洗面室を十分に生かすために、洗面台には機能的な収納が必要でした。わが家の使い勝手に合わせるため、既製の洗面台ではなく、オーダーで造作しようと考えたのです。
計画の際に気をつけていたことは、「収納を増やすこと」「そしてその収納にアクセスしやすくすること」。最終的には、とにかく洗面台まわりの掃除をラクにしたいというのが、目標でした。
鏡の内側には多様な形状のものをしまう棚を設置
わが家が洗面台で使用するものは、容器の形もデザインもバラバラ。さらに、歯ブラシ、シェーバー、コスメ…と家族みんな使うものが違います。
もしも洗面室で「見せる収納」を採用してしまうと、かなりの頻度で掃除や整理をするハメに。ズボラな私にはとうてい無理な話です。
そこで筆者は、洗面台の収納は基本的には隠すタイプにしました。わが家の洗面台では2枚の鏡が両開きの形で開くようになっており、中に可動棚とコンセント口を仕込んでいます。
設計段階からよく使う家電(ドライヤー、シェーバーなど)のサイズやコードの長さを確認し、コンセントの配置を調整しました。
深さのある引き出しにはコスメボックスを収納
カウンター下部の左側には、引き出しを2段、設けました。深さは23cmあるので、コスメボックスやボトル型のスキンケア用品などもすっぽりと収まります。
メイクグッズやヘアケア用品、スキンケアグッズなどは、形状がバラバラで、こまごまとしたサイズのものも多いので、どうしても雑然としてしまいがち。
でも、こうした引き出しにまとめることで、見た目がスッキリ。それに、ものの「居場所」が決まるから、あちこちに出しっぱなしということが少なくなります。
カウンター下はオープンな収納部に活用
カウンターの下は大きく開けた棚にしました。ここには子どものオムツなど、サッと取り出したいものをカゴに放り込んで収納しています。
子どもの踏み台も、ここに入るサイズのものを買いました。使いたいときだけ引き出して使えます。
オープンな収納にしたので、息子も手洗いの際にここから踏み台を引っ張り出すように。自分でさっさと手を洗ってくれるのは本当にありがたいです。
わが家の洗面台では、収納を重視しましたが、子どもの自立にも役立つという思わぬメリットもありました(笑)。夫婦で喜んでいます。




