間取り(リノベーション前後)
すべての画像を見る(全16枚)リノベーション前
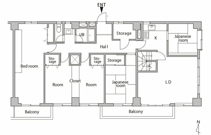
リノベーション後
キッチンの脇に和室があり、LDと分断されていたため、和室だった場所にキッチンを移動して対面式に。コミュニケーションがしやすいLDKを実現しました。LDの隣の和室は趣味室に変更。建具をつけずオープンなスペースに。水回りも再構築して暮らしやすくなりました。
それぞれが趣味や勉強に集中できる個室も実現!
Mさんのお宅でひときわ目を引くのが、玄関を入ってすぐの場所にあるオープンな趣味室。ドラムセットやギター、アンプなどが並ぶ様子はまるで音楽スタジオのよう。
趣味室は玄関を入ってすぐの場所にあり、オープンな雰囲気です。ゲーム専用のスペースなどもつくりました。
床を縞鋼板にしたのは夫のアイデア。梁は躯体現しではなくコンクリート柄のクロスで仕上げています。玄関脇には回遊できるシューズインクローゼットも設けました。
また、水回りを移動したことで生まれたスペースには、妻のためのコンパクトな書斎も。パソコン作業をしたり、趣味を楽しんだりしているそうです。壁には鮮やかなブルーのクロスを。
Mさん家族は、みんなで集える場所と、それぞれが趣味や勉強に集中できる個室、両方を実現した住まいでの暮らしを楽しんでいるようです。
壁をコンクリート柄のクロスで、床を趣味室と同じ縞鋼板で仕上げたトイレはインダストリアル感満点!
位置を移動して夫の念願だった窓のある浴室を実現。ゆったりサイズの浴槽もお気に入り。
朝の混雑緩和のため、洗面所には2人並んで使えるように、ワイドな洗面ボウルと2つの水栓を備えて身支度を快適に。洗面台の下はオープンな収納にして、出し入れしやすくしました。
昆虫をはじめ、生き物が好きな二女の個室。壁には、姉妹そろって大好きというキャラクターがモチーフのクロスを選びました。
「部屋にこもりすぎないように」という妻のリクエストを受けて、子ども部屋の手前にミニライブラリーを設けました。
本棚柄のクロスで遊び心をプラス。部屋の手前の床は、一部を足触りのよいコルクタイルに。ここも家族のコミュニケーションの場にもなっているそう。奥は二女の個室。通路の先に主寝室があります。









