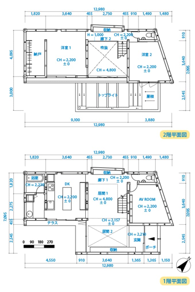
図面の見方と種類を家づくり初心者に解説。成功のカギはここにあり 記事に戻る スクロールで次の画像 (画像 1/5) この記事を読む (画像 2/5) この記事を読む (画像 3/5) この記事を読む (画像 4/5) この記事を読む (画像 5/5) この記事を読む