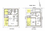
中庭プランを解説。狭い敷地でも住宅密集地でも、明るい開放的な家に 記事に戻る スクロールで次の画像 (画像 1/16) この記事を読む 中庭をつくれば、一日の光の移り変わりや、自然を身近に感じることができる (画像 2/16) この記事を読む (画像 3/16) この記事を読む (画像 4/16) この記事を読む (画像 5/16) この記事を読む (画像 6/16) この記事を読む (画像 7/16) この記事を読む (画像 8/16) この記事を読む (画像 9/16) この記事を読む (画像 10/16) この記事を読む (画像 11/16) この記事を読む (画像 12/16) この記事を読む (画像 13/16) この記事を読む (画像 14/16) この記事を読む (画像 15/16) この記事を読む (画像 16/16) この記事を読む