敷地面積が26.1坪という、コンパクトな敷地に建つ、ワンルームのような注文住宅の実例を紹介します。暮らすのは30代の夫婦ふたり。設計者に相談をしながら、シンプルな内装とプランで工事費を削減しました。今回は家の様子とともに、コストダウンのためのアイデアや工夫を合わせてレポートします。上の写真は、お気に入りの食器や土鍋が並ぶオープン棚が印象的なキッチン。妻の要望に合わせて大工工事で造作しました。
すべての画像を見る(全21枚)南北の窓と吹き抜けがのびやかな空間を実現
三菅さんの家 神奈川県 家族構成/夫30代 妻30代
設計/青木律典(デザインライフ設計室)
本体工事費 2235万円
ほぼ中央に位置する階段により緩やかに仕切られたリビングからDKを見たところ。傾斜天井と連続する高窓が、オープンなLDKに開放感をもたらしています。正面のキッチンの壁には、裏手の山に視線が抜ける位置に窓が切り取られています。
細長い吹き抜けにより1階と2階が一体化。柱と梁に取りつけた三角形の部材は、構造材として建物を補強しつつデザイン上のアクセントになっています。
この家のこだわりポイント
- 平屋のように暮らす
- カーテンをつけない
- 夜、ゆっくりくつろげる空間
- 掃除がしやすい水回り
建築面積を抑え、ラワン合板を巧みに使ってコストダウン
26坪と小さな敷地に建つ三菅さんの家は、シンプルな形の2階建て。2階は柱のないワンルームのLDKで、南面には高窓、北側には低い位置に窓が連続し、視線を遮りつつ室内に光を取り入れています。「夜はリビングから月や星が見えて、すごくきれいです」と、高窓の効果を実感している夫。
「基礎のコンクリートを打った状態を見たときは、あまりの狭さにとても不安になりました(笑)」という妻も、でき上がった空間の開放感に驚いたといいます。
中古住宅を買ってリノベーションするつもりだった夫妻は、リノベサイトで見て、木と障子を使った「和」を感じさせるデザインにひかれたデザインライフ設計室の青木律典さんに、物件探しから相談。希望する物件が見つからず、限られた予算内でコンパクトな敷地を購入して家を建てることにした夫妻のために、青木さんは面積を抑えてコストダウンを図りつつ、広がりのあるプランを提案しました。
寝室と水回りを配した1階は窓を最小限に抑え、床・壁・天井を安価なラワン合板で仕上げています。「吹き抜けから光が伝わるので、1階も昼間は明るく、夜は真っ暗でゆっくり休めます」と夫。開放的な2階と落ち着いた雰囲気の1階のコントラストも気に入っているそう。「1、2階が吹き抜けでつながり、希望していた平屋のような住まいが実現しました。コンパクトだけれど、ふたり暮らしの私たちにはちょうどいい」(妻)と、暮らしやすさを実感しているそうです。
コストダウンのためのポイントを解説
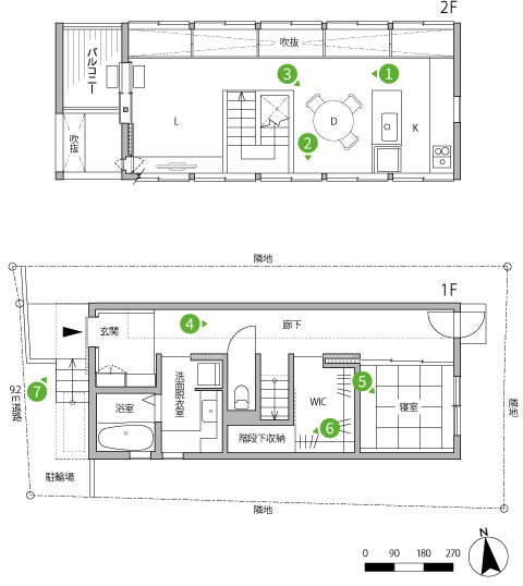
POINT 1 壁や柱を省いた仕切りのないワンルームに(※POINTの数字は下の間取り図と連動)
建物を小さくすることでコストを抑えつつ、内部も仕切りを省いてコストダウン。柱や壁がないことで、空間に広がりを生み出しています。片流れのシンプルな屋根もポイント。
POINT 2 連続する窓はサッシの大きさ・形を統一
この家のデザインの特徴となっている連続する窓は、同じ大きさ・形の既製品の引き違い窓を使用。デザイン的に統一感を出しつつ、コストダウンにもつなげています。
POINT 3 扉のないキッチンを大工工事で造作
キッチンは妻の要望により扉をなくしてコストダウン。大工工事でつくることができ、家具工事に比べてコストを抑えられます。棚は引き出せるので、使い勝手も抜群。
POINT 4 1階の床・壁・天井をラワン合板に
1階と階段の床・壁・天井の仕上げにはラワン合板を採用。安い材料でも丁寧に扱うことで、安っぽく見えない仕上がりになっています。手が触れない天井はオイル塗装を省略。
POINT 5 寝室には無印良品の手頃な畳を採用
「畳スペースが欲しい」との夫妻の要望により、1階の寝室を畳仕様に。本畳ではなく、価格が手頃な無印良品の畳マットを使用し、周りを加工して違和感なく収めています。
POINT 6 階段下のデッドスペースを収納に利用
限られた面積をすみずみまでムダなく使い切ることも、大切なポイント。ウォークインクローゼットの奥の扉の向こうは、階段下のデッドスペースを利用した収納になっています。
POINT 7 アプローチは砂利敷きに
玄関アプローチの仕上げには、通常はモルタルや石、タイルなどが使われますが、施工費用が抑えられる砂利敷きとすることで、コストダウンを図っています。
リビングはDKと緩やかに分けたことで、開放的でありながらゆったりくつろげるスペースに。夫妻の要望に応えて2階の壁のみ漆喰仕上げとし、メリハリをつけています。
リビングの西側には洗濯物を干せるバルコニーを設置。視線を遮りつつやわらかな光を伝える障子は、木や漆喰とも好相性です。
多忙な夫妻がゆっくり休めるように、1階の奥に配した寝室。「以前の家では周囲の音が意外と気になりましたが、今はすごく静かで、落ち着いて眠れます」(妻)。
広いメイクスペースが気に入っています
コストダウンのためにユニットバスを採用し、洗面カウンターはラワン合板でつくりつけ。妻の念願だったメイクスペースには、明り取りの窓も設置されています。
トイレもラワン合板で囲まれた落ち着いた雰囲気の空間。正面の壁の向こうは階段下を利用した収納になっています。
美しいフォルムが印象的な洗面ボウルの横の壁には、「濡れたタオルを掛けておくと、壁にカビが生えてくるのが嫌だった」(妻)ため、暖房にもなるタオルウォーマーを設置。
吹き抜けから光が注ぐ廊下は縁側のような空間
廊下の突き当りには勝手口がありますが、普段は木の扉で隠して壁のように見せています。
上部が吹き抜けた1階の廊下は、通常よりも幅を広めに確保。寝室の引き戸を開ければ部屋の延長として感じられる縁側のような空間に。「平屋のような雰囲気を楽しめます」(夫)。
入り口に設置したのれんが、和の雰囲気を演出する玄関。開き戸だとのれんと干渉してしまうので、引き戸を採用。開けたときに通りから中が丸見えになるのを防いでいます。
ラワン合板で下駄箱を造りつけ。統一感があり、コンパクトな玄関もスッキリ見えます。
敷地形状に合わせて長方形を2層重ね、片流れの屋根を架けたシンプルな外観。連続する窓が特徴的で、のれんが掛かった木製の玄関扉もアクセントに。表札にも遊び心が感じられます。
間取図
DATA
敷地面積/86.12㎡(26.10坪)
延床面積/69.97㎡(21.20坪)
1階/40.99㎡(12.42坪)
2階/28.98㎡(8.78坪)
用途地域/第1種低層住居専用地域
建ぺい率/50%
容積率/100%
構造/木造軸組工法
竣工/2019年11月
本体工事費/2235万円
3.3㎡単価/105.4万円
素材
[外部仕上げ]
屋根/ガルバリウム鋼板縦ハゼ葺き
外壁/水系アクリル樹脂塗料吹きつけ
[内部仕上げ]
1階 床/ラワン合板、畳
壁/ラワン合板
天井/ラワン合板
2階 床/タモ複合フローリング
壁/漆喰
天井/ラワン合板
設備
厨房機器/オリジナル
衛生機器/パナソニック、平田タイル、ハンスグローエ
窓・サッシ/LIXIL、オリジナル
施工/幹建設
設計/青木律典(デザインライフ設計室)
1973年生まれ。2010年青木律典建築設計スタジオ設立。2015年デザインライフ設計室に改組。一級建築士のほか、ファイナンシャルプランナー、住宅ローンアドバイザーなどの資格も保有
撮影/水谷綾子 ※情報は「住まいの設計2021年6月号」取材時のものです




















