ガラス入りの建具や障子など、昭和のムードが漂うLDK。ダイニングキッチンにはワイドなベンチを造作したことで、窓際が家族の居場所に変身。ソファを置かずにリビングを広々と使っているので、「ちょっとひと休み」できる場所として、また子どものお手伝いの作業場所として、大活躍しています。約100㎡の中古マンションをリノベしてのびのびと暮らすIさんのお宅を訪ねました。
すべての画像を見る(全13枚)家族が集まる、DK窓際のワイドなベンチ
「できれば中古物件に住みたかった」という古い物好きのIさん夫妻は、アンティークのリビング扉や障子など、和のインテリアをふんだんに取り入れて昭和感を演出しました。ダイニングキッチンをまたいで造作したベンチは、杉の三層パネルを使ってレトロな雰囲気に。さらに、キッチンには長めのデスクを沿わせて、妻が趣味の洋裁もできるスペースにしました。
子どもたちが遊ぶ姿を見渡せるよう、キッチンはオープンなスタイルを希望。ベンチの向こう側はルーフバルコニーになっているので、ベンチは腰かける場所としてだけでなく、ルーフバルコニーに出るためのステップとしても活躍しています。さらに、ダイニング側のベンチの下部には夫が収納をDIYでつくり、子ども用プールなどの収納場所にしました。
キッチンからサニタリーへは通り抜けができて、家事動線がスムーズです。冷蔵庫や食器棚はリビングから見えない位置に収めました。壁面のブルーのタイルでレトロ感がぐっとアップ。
【この住まいのデータ】
▼家族構成
夫38歳 妻31歳 長女3歳 次女3歳
▼リノベを選んだ理由
古民家に住みたかったくらい古いものが好きで、レトロな雰囲気の住まいを実現したかったから。予算的なことも考え、古民家ではなく中古マンションをリノベーションすることに。
▼住宅の面積やコスト
専有面積/98.63㎡ 工事費/1100万円(税、設計料込み)
ソファなし&壁面収納で広々リビングに
二面採光のおかげで、リビングにはたっぷり陽が降り注ぎます。子どもたちがまだ小さいため、リビングにはソファを置かず、広々としたスペースを確保。
壁面にはベンチと同じ杉の三層パネルを使って大容量の収納を造作しました。切り口の断面を生かしたデザインや取っ手など、ディティールにもこだわっています。
壁面収納の向こう側は子ども部屋。現在は大きなひとつの部屋として使っていますが、将来的にはふたつに分ける予定。そのため、扉も壁面収納の左右それぞれに設置してあります。
廊下と水回りにもレトロなディテールを
廊下には棚やバーを取り付けて、見せる収納に。扉を付けた廊下収納も設けています。
ぬくもりのある取手とレトロなタイルをさりげなく取り入れた家具のような洗面台。使い勝手も良好だそうです。
トイレは木製のペーパーホルダーや木目調のフロアタイルでウッディな雰囲気に。室内のレトロな雰囲気とも調和しています。
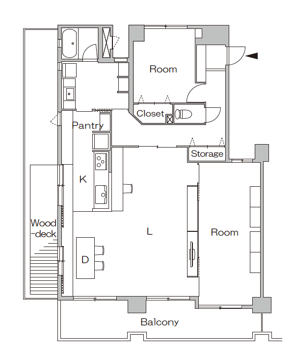
双子の子育てに奮闘する妻が「ラクに家事をできるように」ということを重視してリノベしたI邸。ダイニングからキッチン、パントリー、サニタリーとが一直線に配置されて家事動線はスムーズなうえ、リビングで遊ぶ子どもたちの姿も自然と視界に入ってきます。
レトロ感のある心地よい空間で子育てを楽しみつつ、家事がはかどる住まいが実現しました。
間取り(リノベーション前後)
リノベーション前
リノベーション後
設計・施工/アネストワン
自然素材を多用する家づくりのモットーは、時間とともに味わいを増す「本物で心地よく、温かみのある空間」。オリジナルキッチンや家具のデザインも得意とする。インテリアショップ「トリノス」も運営。今春からは自社家具工房もスタートした
撮影/水谷綾子 ※情報は「リライフプラスvol.22」取材時のものです












