約20年前に新築で購入した72㎡の2LDKのマンションをリノベーションしたM邸。長年湿気に悩んでいたこともあり、湿気がこもりがちな浴室に内窓をつくるなど、風通しのよい間取りに変更。珪藻土や紙クロスのオガファーザー、竹パルプを配合した壁紙「ジョイウォール」などの自然素材を取り入れました。
すべての画像を見る(全15枚)目次:
悩みの湿気は風通しのよい間取りと調湿性のある自然素材で解決ダイニングからの光をキッチン奥の寝室へ玄関や廊下も通気性を考慮したひと工夫を広さをたっぷり確保した寝室は子どもの遊び場にも!間取り(リノベーション前後)悩みの湿気は風通しのよい間取りと調湿性のある自然素材で解決
ヒノキや珪藻土を取り入れてリフォームをした実家に行くと体調がよくなると実感していた妻は、自然素材をふんだんに取り入れたリノベーションを希望しました。メンテナンスやコストの観点から、希望していた珪藻土は塗る場所を限定し、紙クロスのオガファーザーや、調湿・消臭機能に優れた壁紙のジョイウォールを採用。
合板だった床は無垢材に張り替え、木製家具や特注の土佐和紙の照明と調和する、居心地よく快適なLDKになりました。
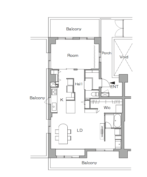
リビングの左側にはウォークインクロゼットの入り口があり、風通しのいいルーバータイプの扉を採用しました。右奥にはサニタリーがありますが、通風と採光を考えて建具はなし。そのため、洗面台はインテリア性の高いものを選びました。
また、壁中央の内窓は、奥にある浴室の湿気対策として新設したものです。
【この住まいのデータ】
▼家族構成
夫50代、妻40代、長男6歳
▼リノベを選んだ理由
住み慣れた家の環境の良さや3面採光の角部屋であることなどを気に入っていたため、住み替えではなくリノベーションに。自然素材を積極的に使った、自分たちの理想に近い住まいにしたかった。
▼住宅の面積やコスト
専有面積/72.00㎡
以前は各部屋のクロゼットに分散して収納していた衣類を、ウォークインクロゼットを設けて1か所にまとめました。湿気対策として、壁には透湿性のあるオガファーザーを採用しています。
リビング奥の洗面スペースの壁には、ブルーグレーのタイルを張り、すっきりと見える大きな鏡を合わせました。リビングから見えるため、居室の雰囲気を損ねないよう、やさしい雰囲気を演出しています。
ダイニングからの光をキッチン奥の寝室へ
キッチンはリビングダイニングと寝室をつなぐ裏動線として便利に使っていますが、ダイニングからの光を寝室に届ける役割も果たしています。
冷蔵庫を含め、キッチン回りの雑多なモノはダイニング側から見えないように壁を立てた場所に収納。オープン棚にすることで使い勝手を向上させました。棚は配置するもののサイズに合わせて可動棚にすることで、空間を無駄なく活用しています。
玄関や廊下も通気性を考慮したひと工夫を
玄関ホールと廊下の間にはオーダーメイドの木製引き戸を入れました。和モダンな雰囲気のデザインで、ガラス越しに廊下の珪藻土の壁やオブジェが見えるように配慮しています。
シューズクロゼットはロールカーテンで仕切れるように。靴だけでなくキャンプ用品なども収納しています。
廊下とLDKの間にあった扉は取り外し、各居室をつなげてワンルームのような空間にしました。
広さをたっぷり確保した寝室は子どもの遊び場にも!
広さをたっぷり確保した寝室にはベッドを置かず、日中は子どもが遊ぶ場所としても活用しています。将来、子ども室が必要になったときは、間仕切りを入れて2部屋に分けられるようにしてあります。
寝室は北側に位置し、結露や寒さ・暑さに悩んでいた場所。今回のリノベーションで二重サッシを取り入れ、さらに床にはコルクタイル、LDK側の壁にはオガファーザー、それ以外の壁には珪藻土を塗るなどし、以前と比べてとても快適になりました。
長年住んだからこそ感じる不満や不便をリノベーションで一気に解決したM邸の窓際には、インコの居場所もしっかり確保。家族全員が居心地よく、快適に暮らせるようになりました。「リノベは間違いなく、やってよかったと思います。早く帰りたい家になりました」と夫は話してくれました。
間取り(リノベーション前後)
リノベーション前
リノベーション後
※情報は「リライフプラスvol.33」取材時のものです
設計・施工/スタイル工房 撮影/遠藤 宏














