中古の戸建を購入し、リノベーションをして住む。家づくりにはそんな選択肢もあります。今回紹介するケースがまさにそれ。デザインにほれ込んだ建築家の空間に暮らしたくて、リノベーション前提で築30年以上の古家を購入したFさん。LDKを真っ白な天井と壁の開放的な大空間に、玄関脇にはまるで煙突のような小さなゲストルームを増築し、楽しい新居を手に入れました。上の写真は、前面道路から見たFさんの家。駐車場と庭を隔てる壁にはプライバシーを確保する役目以外に、外観に手を加えていない建物を隠す意味もあります。
すべての画像を見る(全21枚)目次:
煙突みたいな離れを増築、小さな続き間を大空間のLDKに家族そろって手軽に映画館気分が味わえる傾斜天井のスクリーン面積は小さく抑え、上に広がりを求めたゲストルーム収納物を想定して緻密に設計したキッチン収納日々の暮らしが楽しくなる開放的なLDKとゲストルームバーベキューだけじゃない。日常を過ごすアウトドアリビング家族共用の机があるリビングダイニング間取図(リノベ前後)煙突みたいな離れを増築、小さな続き間を大空間のLDKに
宮崎県 Fさんの家 家族構成/夫40代 妻40代 長男小学生
工事費 1877万円
設計/COGITE
《この家のこだわりポイント》
- LDKの大空間
- リモートワークにも最適なゲストルーム
- 人の目を気にせずに暮らせるコートハウス
- 夜はスクリーンに早変わりの傾斜天井
曲面が目を引く白いついたてのような壁の裏が玄関。レモンイエローにペイントされた壁がLDK空間のアクセントになっています。
アウトドアリビングとして大活躍のデッキテラス。レッドシダー張りのウッドデッキは、Fさん一家にとって、食事の場であり、簡易プールを楽しむプレイグラウンドでもあります。
玄関土間を介して離れのような位置づけとなるゲストルーム。左は玄関扉、右にはデッキテラスへの扉があります。
家族そろって手軽に映画館気分が味わえる傾斜天井のスクリーン
垂れ壁だけがリノベーション前の小割りの居室の面影を残すLDK。既存の天井を撤去して、構造材をよけて湾曲した天井に張り替えました。曲面の天井はスクリーンとして活躍中。
面積は小さく抑え、上に広がりを求めたゲストルーム
(写真左)ゲストルームの中心から天井を見上げると、天窓から差し込む光が周囲の壁にやわらかく反射します。当初は開閉式の窓が計画されましたが、コストがかさむため却下。代わりに換気扇が取りつけられています。
(写真右)一辺が2.3mの空間は10㎡以下という小ささ。既存建物の面積を増やすことが難しかったため、平面は小さく、その代わり縦に延ばしています。
玄関土間側の扉とは別に、テラスデッキに面した扉も。ガーデンパーティではここからの出入りが多そうです。
収納物を想定して緻密に設計したキッチン収納
さまざまなメーカーのショールームに行って、収納の位置や数、デザインとこまやかな仕様が気に入ってパナソニックのシステムキッチンをチョイス。
「背面の収納は、入れるものの寸法をすべて測って、なにをどこに入れるか完全にシミュレーションして寸法を出しています。皿を縦に入れるケースがギリギリ入らなくて、現場で直してもらったのもいい思い出です」(妻)。
キッチンの床は1段下げることも検討されましたが、自動掃除機が使えるようフラットに。
(写真左)建物西側、収納の出入り口として使われているのはリノベーション前の玄関。北側にある物干しにアクセスしたり、駐車場から荷物を運び込んだりと、家事動線の要になっています。
(写真右)ゲストルームを増築する際に必要となる土間を玄関と兼用するため、玄関は東入りに。「面積を抑えるための工夫です」と設計者の蒲牟田さん。
左にゲストルームの塔を見ながらアプローチするFさん宅のエントランス。板張りの壁がおしゃれなカフェのような雰囲気を演出しています。
日々の暮らしが楽しくなる開放的なLDKとゲストルーム
Fさんの新居は、LDKの大空間とテラスデッキがつながる開放的で気持ちのいい住まい。道路から見ると敷地の東側に立ち上がった煙突のような部分が目を引きます。「道行く人からは『パン屋さんですか?』と尋ねられることもあるんですが、じつはゲストルーム。ひとりこもるととても落ち着く小さな空間です」と夫妻は顔をほころばせます。
「長男の入学を機に家づくりを考えたときに、どうしても実現させたかったのが蒲牟田健作さんに設計を頼むこと。中古物件のリノベーションでそれが実現したので感激もひとしおですね」と家づくりのきっかけを語る夫妻。
外観にはほぼ手をつけず、しかし内部は構造以外すべてを改修したフルリノベーション。建物南側は建具を撤去して明るい一室空間にすることで、開放的なLDKを実現しています。
「敷地を囲った壁のおかげで、人目を気にせずにのびのび過ごせるところが気に入っています」(夫)
デッキテラスの東側には、F邸のシンボルのようなゲストルーム。来客の多いFさん宅にはどうしても必要な一間でしたが、既存の建物にその余地はありませんでした。そこで、蒲牟田さんが考えたのが、玄関脇に小さな離れを設けること。
「床面積は大きくできない分、上へ延ばしたと蒲牟田さんから言われて、ひと目で気に入りました」(夫)
日々の暮らしをより楽しくする住まいに、満足げな様子が印象的でした。
バーベキューだけじゃない。日常を過ごすアウトドアリビング
デッキは屋内の床面から少し下げて設置しています。「同じレベルのほうが使いやすいかなと思ったのですが、段差によってリビングの床に腰掛けられるし、雨のハネも抑えられます」(夫)。
家族共用の机があるリビングダイニング
LDKのキッチンに近い壁際には、造り付けのデスクが設置されています。「書斎や家事用の机をそれぞれ設けるのではなく、家族共用のデスクとして使うことで、限られた面積を効率的に使っています」(夫)。「私がキッチンにいて、家族全員の様子に目が届くので、LDKのデスクはとても使い勝手がいいですね」(妻)。
キッチンの北側に位置する収納。リノベ前は玄関ホールとして使われていた空間は、扉を残して収納として生まれ変わっています。
建物の北側には寝室や子ども部屋、水回りが配置されています。建物中央にあるのは子ども部屋。廊下上にロフトが設けられていて、大容量の収納として活躍してくれそう。ロフトは寝室までつながっていて、子ども部屋、寝室両方からアクセス可能。
寝室へはウォークインクローゼットを通って出入りする設計。つくりつけのベッドはマットレスの下に収納が設けられています。ベッドを置くスペースとしてのみ考えられた寝室はコンパクトでシンプル。
玄関から入って正面にはピアノが置かれています。設計段階からピアノの位置が決まっていたので、壁から突き出したペンダント照明もマッチしています。
LDKの開口部にはもともと引き違いのサッシがついていましたが、幅いっぱいに全開できる木製建具に変更されています。
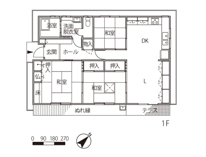
間取図(リノベ前後)
リノベーション前
リノベーション後
最初軸組工法だと思っていた中古物件は木質パネル工法のハウスメーカー製でした。そのため取り除けない耐力壁などを残したままのリノベーションとなりました。
DATA
敷地面積/217.80㎡(66.00坪)
延床面積/87.14㎡(26.41坪)
用途地域/第1種低層住居専用地域
建ぺい率/40%
容積率/60%
構造/木質系パネル構造
リノベーション竣工/2020年6月
工事費/1877万円
3.3㎡単価/71.07万円
素材
[外部仕上げ]
屋根/既存(瓦屋根)、
カラーガルバリウム鋼板平葺き
外壁/弾性リシン吹き付け、STO塗り壁
[内部仕上げ]
床/オーク
壁/塗装
天井/塗装
設備
厨房機器/パナソニック
衛生機器/パナソニック、TOTO
窓・サッシ/オリジナル(木製建具)
施工/thinkbuilder
設計/蒲牟田健作(COGITE)
1975年千葉県生まれ。1996年国立都城工業高等専門学校卒業後、ごとう計画・設計勤務。1997年メイ建築研究所宮崎勤務。2001年COGITE設立。2012年より都城工業高等専門学校非常勤講師
撮影/中村風詩人 ※情報は「住まいの設計2021年6月号」取材時のものです




















