ともに海外赴任が多い職場に勤務するSさん夫妻。所有するマンションのリノベーションに際して、リノベ会社の検討と訪問はアフリカに赴任中だった妻の一時休暇中に進め、設計の打ち合わせはリモートで進めました。妻の帰国に合わせて竣工した住まいは、木の質感をふんだんに生かした空間。国際派の夫妻が心から「帰ろう」と思える住まいは、「和」のテイストにあふれていました。
すべての画像を見る(全17枚)こだわりの家具が映える和モダンのダイニングキッチン
Sさん夫妻の希望は「広いLDK」「回遊性」「和モダンの内装」。リノベの打ち合わせは、アフリカ赴任中の妻、関東圏の実家滞在中の夫、リノベを依頼したスタイル工房の3者で、スカイプを利用して進めました。
キッチンは壁づけから対面式に変更。タモ突き板の腰壁を設けてシステムキッチンを空間になじませました。一枚板を載せたダイニングテーブルは、高さの調整も可能。テーブルの脚とダイニングチェアの座面の黒が、空間の引き締め役になっています。
キッチンの背面側の壁はタイル貼り。直線デザインが生きる通し目地で仕上げました。つり戸棚は既存を活用し、扉だけ腰壁と同じタモ材にチェンジ。
システムキッチンはトクラスの製品を採用。背面のカウンターは、夫がジャストサイズの既製品を通販で見つけました。キッチン奥にはコンパクトなパントリーも新設。
【この住まいのデータ】
▼家族構成
夫34歳 妻34歳
▼リノベを選んだ理由
賃貸物件に暮らしていた当時の周辺環境が気に入り、近隣エリアで持ち家を検討。新築だと予算が合わず、既存の設備が使える築15年前後の物件を選んで内装は自分たちらしく変えよう、と中古マンションのリノベを選択した。
▼住宅の面積やコスト
専有面積/76.70㎡ 工事費/900万円(税、設計料込み)
オリジナルの障子からやわらかな光が入るリビング
対面キッチンにしたことでリビングダイニングはもちろん、隣接する和室まで視線が届き、開放感は満点。来客時もコミュニケーションがスムーズです。
既存の和室はスペースを少し縮小し、縁なし畳を採用したモダンな空間に一新。こちらは1階の物件のため、畳の下にはもともと床下収納があり、そのまま活用しています。
正面の扉はウォークインクローゼットの出入り口。その横には間仕切り用の建具を格納しておける専用スペースもあります。
専用スペースに格納している建具をはめれば、和室を個室のように独立させることも可能。ふだんはオープンな空間を楽しみつつ、必要に応じて客間などとして使うこともできます。
既存のサッシの内側には、空間全体を和モダンな雰囲気に仕立てるオリジナルの障子を設置しました。障子をあけると植栽の緑が目に入ってさわやか。右手の和室はリビングダイニングとフラットにつながっているので、一体感のある広々とした空間に仕上がりました。
LDKの入り口近くにPCコーナーを新設。もとは電話用のカウンターだった場所で、上部に可動式の棚を追加して使いやすくカスタマイズしています。
既存を生かしながら好みやライフスタイルに合わせてリノベ
木材とスクエア形のボウルを組み合わせたオリジナルの洗面台。下部はオープンなつくりで風通しがよさそうです。壁の一部は、長方形のモザイクタイルをタテ貼りにして仕上げました。
トイレは、問題なく利用できた便器は既存を生かし、内装をリフレッシュ。床はフロアタイルに変更し、壁のクロスを貼り替えました。正面の壁は夫がDIYで塗装したものです。
傷みや汚れが少なかったことから、既存のユニットバスをそのまま活用。他の部分に予算を割くことができ、コスト調整に貢献しました。
2室あった個室は間仕切り壁を撤去して広々とした寝室に。シックなブルーのアクセントウォールは、トイレ同様、夫がDIYで塗装しました。将来子ども部屋が必要になったときに、再び壁を立てて2室にできるよう、ドアは位置を変えて2つ設置。
小さめだった既存のウォークインクローゼットは、隣接していた和室の押し入れ部分を取り込んでスペースを広げました。ウォークインクローゼットを経由してリビングダイニング側に抜けられるのも便利です。
玄関は幅を広げ、自転車や台車を置けるスペースを確保。右手の下駄箱は既存を生かし、扉のみ交換して雰囲気よく仕上げました。
「リノベで、ほっと落ち着ける自分たちらしい空間になりました」と微笑む夫。海外赴任の多い仕事柄、離れ離れで暮らした時期もあった夫妻ですが、「和」を感じられる端正なデザインの住まいが予算内で完成し、念願の2人暮らしを満喫中です。
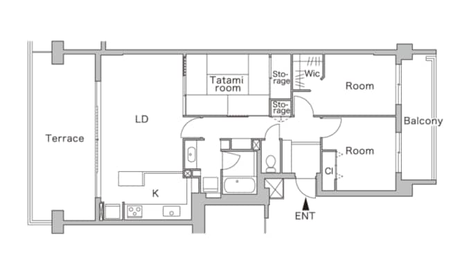
間取り(リノベーション前後)
リノベーション前
リノベーション後
設計・施工/スタイル工房
納得できる自然素材を取り入れ、年月を経ても気持ちよく暮らせるリノベーションを目指す設計・施工会社。価格と工期のバランスを重視し、地球環境を大切に考えたエコな家づくりに定評がある。また物件紹介や資金計画のサービスも充実。浜田山店、南青山店、横浜店がある。
撮影/遠藤 宏 ※情報は「リライフプラスvol.23」取材時のものです
















