夫の両親がコンパクトな住まいに移ることになり、実家である100㎡弱のマンションを譲り受けることになった座間さん夫妻。一見、うらやましいような話ですが、意外にも夫妻は「途方に暮れた」とか。その理由は、実家が南北に極端に長い間取りだったため。細長い空間がさらに細かく間仕切られ、暗くて寒く、風通しもよくなかったといいます。そんな住まいが、リノベで快適空間に大変身!その詳細をご紹介しましょう。
すべての画像を見る(全18枚)目次:
家の中心に、家具のような端正なオリジナルキッチンを光と風を運ぶモルタル仕上げの「通り土間」縦に並んだ個室は間仕切りを減らして開放的に回遊動線を取り入れた機能的な玄関&水回り間取り(リノベーション前後)家の中心に、家具のような端正なオリジナルキッチンを
座間邸の玄関を入ると正面に見える風景がこちら。ナラ材を使って家具職人がつくった、端正なオリジナルキッチンが目に飛び込んできます。
設計を担当した建築家の内田雄介さんの「キッチンをこの家のシンボルのような存在に」という提案に、当初夫は「リビングでなくキッチンがメイン?」と首を傾げたそう。でも、よくよく考えるとリビングで家族がゆったり過ごす時間は意外に少ないことに気づいたといいます。デザイン性の高いキッチンが細長い間取りの中心に配され、まさに座間邸を象徴するような存在に。
「FUTAGAMI」の真鍮製のペンダントランプが下がるアイランドカウンター。キッチンの使い勝手は抜群で「生活感が出ないように気をつけています」と妻。
【この住まいのデータ】
▼家族構成
夫39歳 妻39歳 長男3歳 長女1歳
▼リノベを選んだ理由
夫の実家のマンションを譲り受けることになったのを機に、夫の学生時代の友人でもある建築家の内田雄介さんに相談。リノベで細長くて使いにくい間取りと住宅性能の改善し、安心して子育てができる住まいへ一新することにした。
▼住宅の面積やコスト
専有面積/96.94㎡ 工事費/1460万円(税込み・設計料別)
光と風を運ぶモルタル仕上げの「通り土間」
キッチンの延長線上には家族が集まるダイニングをレイアウト。床は無垢のオーク材を採用し、玄関、水回り、手前側にある和室への動線となる部分はモルタル仕上げに。「通り土間」のようなイメージで光と風を運び、細長い空間を緩やかにつなぎます。
ダイニングの窓際には収納とデスクを兼ねたカウンターを設置。床がタイル貼りのキッチンに対して無垢材を採用したダイニングは、やわらかい雰囲気に仕上がりました。
ダイニングから北側の一番奥に配された和室を見たところ。手前の壁面は収納に活用しました。モルタル仕上げの「通り土間」が和室の内部まで続いています。
縁なしの畳や吊り押し入れで軽やかに仕上げた和室。以前は床の間のある本格的な和室でしたが、この家に似合う雰囲気に一新しました。
ベンチを造り付けた和室の窓辺からは借景を楽しめます。転落防止用の木製の手すりのおかげで、既存のサッシの味気ない雰囲気がやわらぎました。
縦に並んだ個室は間仕切りを減らして開放的に
座間邸の間取りの特徴的な部分である南面の細長いエリア。旗竿敷地の竿の部分で、以前は手前から奥に個室が3つ並んでいました。「一番手前が自分の部屋で、兄弟が自分の部屋を通ることが嫌だった(笑)」と夫。可動式の家具で緩く仕切り、リビング兼ファミリールームとして活用しています。
南端に設けた子ども室。壁は、独特の質感が楽しめるポーターズペイントの塗料を使ってDIYで仕上げました。
回遊動線を取り入れた機能的な玄関&水回り
玄関と居室を仕切るワイドなガラス入りの建具。玄関ドアを開けると、このドア越しにキッチンが目に入って来るため、まるでカフェのよう。アーチの開口部分は土間収納で、その先に水回りが続いています。
土間収納のアーチ壁越しに玄関を見たところ。たっぷりしまえる白い靴収納を設置しました。上下が空いたデザインなので圧迫感がありません。
玄関(奥)と水回り(背面)は、土間収納を介してつながり、左手にはDKに抜けられる動線も。帰宅時に土間収納にアウターを掛けて、そのまま洗面室やトイレに行ける便利な回遊動線が採用されています。
白で統一した清潔感あふれる洗面室。壁面の一部にモザイクタイルを貼ってアクセントにしました。ユニットバスはガラス入りのドアを選んだので、視線が伸びて広々と感じられます。
トイレも白を基調にしたシンプルなイメージで。回遊動線のおかげで玄関からもDKからもアクセスできます。
住宅性能をアップさせるために断熱材を補強し、漆喰の壁や無垢材の床など、自然素材にもこだわってリノベーションした座間邸。暗くて寒く「変わった間取り」だった実家は、夫が「本当に気持ちよく住まいになりました」と絶賛する快適空間に生まれ変わりました。
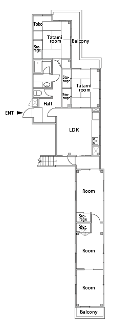
間取り(リノベーション前後)
リノベーション前
リノベーション後
設計/内田雄介設計室
1977年生まれ。工学院大学建築学科卒業後、建築設計事務所を経て、2013年に内田雄介設計室を設立。光と風を感じられる心地の良い空間づくりを得意とする。
撮影/中村風詩人 ※情報は「リライフプラスvol.23」取材時のものです

















